查看完整案例

收藏

下载
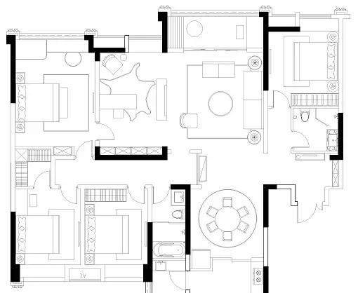
1.户型很大,但是离业主的大气,还有一些差距。
2.玄关狭窄,无法满足一家人的鞋子收纳。
3.入户后正对过道,观感不雅。
1.开放式书房的空间布局
2.入户墙体往移,留出摆放储物柜的空间
3.改变过道的入口方向,同时预留出摆放斗柜的空间。
4.拆改女儿房布局,满足需要衣帽间的需求
满足收纳的同时,兼具美观性。进入过道区域做了垭口门套,中间夹丝玻璃,隔而不断。
挂画特写
半开放式的书房,更具独特感,以电视背景墙为“界限”,分割出不同场景、不同功能的区块,界而未界,给空间带来更多的层次感。线条浪漫柔和,奠定了整体空间优雅、温馨的基调。
整体的设计中我们希望可以达到每个空间之间的流动感,会客区、书房、餐厅之间让材料延伸、光线穿透、摒弃传统的定式,放大空间的体验。
沙发背景墙艺术漆跳色,pu线条,让墙面层次感满满。
沙发背景墙面做了石膏线条+艺术漆跳色的处理,提升了空间的复古气质。
沙发和抱枕是动物皮毛的图案。
拆除客厅和书房之间的墙体,利用电视背景墙作为两个空间的分割线,半开放式的书房空间,让整体空间通透,也把采光最大化利用,平时在工作的同时也可以和家人互动。蒸汽壁炉增加空间的氛围感,还有加湿的功能。
优雅与野性相融,温柔而不失感性。
整屋利用红色、奶咖色局部黑白色,空间过度自然过渡,协调统一,利用一些出色的单品,抽象画、设计感单人沙发等来丰富空间的元素,森绿色沙发搭配黑色小边几,呼之欲出的角落复古范儿。
中国人讲究团团圆圆,圆桌就有这样的寓意,且实用性强,线条柔和,一家人坐在一起的时候,更加亲近。餐桌的选择按照父母的习惯,选择了圆桌,没想到和空间非常搭配,而且还非常节省空间。
家里每个灯光选用合适的色温,这里的壁灯选用了暖色。
顶天立地的餐边柜,储物力强大,和墙体融为一体,摆放屋主自己收藏的装饰画,整体美观大方。顶天立地的餐边柜收纳功能更强,既可以摆放一些挂画摆件,还能顺手放一些东西很方便了,可谓是一举两得。
展示一下超可爱的恐龙挂画,好可爱啊啊啊……
书桌和书柜选用黑色,让整体空间更冷静沉稳,在这个空间里我可以安心工作,业主书没有那么多,满墙的柜子实用性不高,太浪费空间了,所以柜子空间空出来的区域,选用了装饰画,打破配色带来的沉闷。
男主人工作繁忙,经常需要在家完成一部分工作,开放式的书房就派上用场了,除了可以拥有独立的工作空间,更多时候还可以和家人互动交流。对于整体空间而言,更能彰显空间的维度。在工作阅读的同时,两个空间采光相互配合,白天不开灯办公都完全没问题。地毯的颜色和墙面的红也好搭配呀!
简洁的黑色墙面搭配金属灯具,营造出高级又奢华的氛围。
这个特写爱了爱了,这个小吊灯是我自己在网上淘到的,和我的背景墙好配啊。
床头顶部的的隐藏背景墙选用木饰面,舒适简约为主,没有做太复杂的装饰,隐藏灯带可以用做氛围灯,也可以充当夜灯。灯能够充当夜灯。。
脏粉色墙面,自带慵懒滤镜。
客服
消息
收藏
下载
最近








































