查看完整案例


收藏

下载
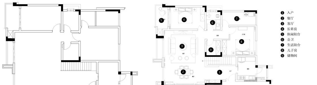
户型分析: 1-楼梯位置既定,可改动区间较小.主要让空间使用更舒适合理. 户型改造: 1-将生活区搭建,扩大生活阳台的使用面积. 2-将儿子房门洞移动,避出进生活阳台必须从卧室过,同时改变过道门洞过密的问题.
户型分析: 1-楼梯转折厅过于浪费,光线也不佳. 2-赠送空间必须从主卧过,且作为卧室使用不佳. 3-主卫过小,使用舒适度不佳. 4-单独留出设备间过于浪费. 户型改造: 1-将楼梯转折厅墙体拆除,改善空间. 2-扩大主卫使用舒适度.
从卧室看向二楼转折厅位置 主要问题: 1-原有楼梯转折厅过小,只有楼梯上来后小门去阳台,光线不佳,位置也局促. 主要调整方向: 1-改善光线以及空间感. 2-让转折厅不止于过道功能. 解决方案: 1-拆除楼梯上来正对墙体,改善光线和空间感. 2-将阳台的门扩大,调整了光线同时更好的纳景入室内.
从餐厅看向楼梯位置 主要问题: 1-原有楼梯梯步过高,爬起来费力. 2-入户即是楼梯,美观问题需要考虑. 3-顶面层次太乱. 主要调整方向: 1-改善踏步高度.让楼梯走起来不累. 2-打造景观楼梯. 解决方案: 1-算好踏步,用木作基层一步步去调整到合理高度. 2-楼梯与造景结合处理,美化空间. 3-利用灯源和玻璃栏杆,让楼梯看起来更轻盈.使得空间更通透.
进门正对即是楼梯,设计上就考虑楼梯与景观邂逅的手法.配以柔和的灯光,打造氛围感. 右边的门内是厨房区域,因为是精装房,跟业主沟通后,只更换了门和地砖.其他未作改动.
进门的左手是鞋柜,中间做了分割设计,方便放置钥匙等;顺着柱子过来即是餐厅区域,从客厅看向餐厅:整体柜体和餐桌都是以原木色为主.配以“荷花”为主题,定制的硬包与桌旗的荷花静默呼应.
从楼梯旁过道看向餐厅:迎面而来的都是原木温润质感,同时配以棉麻布料沙发让舒适感倍增.
进门左转换鞋后,即是开放的餐客厅区域.一眼望去可以发现,整个空间是不拘于常规,打破靠墙置放沙发与餐桌的布局,为空间提供了更多可活动动线选择.
餐桌椅细节:原木与棉麻的搭配经久耐看.叠色桌旗上淡雅的荷花与餐厅造型墙面呼应,而随意的插花与餐食也让空间灵动,且充满生活气息.
从餐厅看向客厅:与餐厅造型墙对应的即是电视墙,中间是定制素色硬包,右边是定制的隐形门,与左边护墙板造型呼应.整体空间色调依旧是原木色为主.
基于业主习惯打造围合空间设计,由此打破传统的沙发摆放模式,更多以休闲聊天为主,营造互动性较强的会客区.
围合设计让空间可放置2个大沙发,满足3人同坐亦可休憩;由过道看向阳台,拉上白纱放上音乐,隔绝窗外的嘈杂,来一书一茶甚佳.
采用开放与封闭式结合的收纳设计,为茶几造型增加细节,同时更方便置物.
夜幕降临灯光开起,扑面而来的温馨感与白日里清爽干净的氛围又不一样呢.
酒柜错落的隔板设计,加上凹凸的背景造型,使得整体空间在灯光下,层次更加分明.
从卧室出来看向客餐厅,灯光反射于地面的光影,如照耀在水面波光粼粼般美丽.
上楼即是开放的茶室区域,顶面做坡顶设计拉高层高,正对简单的竹子背景造型墙,与窗外植物进行虚实呼应.
从正对茶室柜的阳台看进来,茶桌后是一组多功能柜设计,原有管道用柜门隐藏,同时结合现场落差,做转角设计.
拣茶为款同心友
茶室出来即是花园,阳光好的时候可以在这里嗮太阳.
茶室左边隐形门后是卧室,延续整体原木的搭配,以休憩为主,无过多装饰.
窗前一丛竹,清翠独言奇,窗外的竹子与茶室的背景遥相呼应.
正对床的视角.延续客厅背景墙的设计,整体简单干净,同样用原木与硬包搭配,只做简单格栅与床背靠呼应.
床尾有屏风隔断,与床头背景呼应,以"窗"借景,圈出的不止圆形画面风景,
屏风后是开放式书房,睡前亦可引墨谱诗,书桌后是一组到顶多功能柜,保证收纳同时为空间增加细节.
从书房出去是另外的小花园,地面铺设简单防腐木,耐潮耐造.
整体花台延至到茶室门外,且在下方做了灯带与小石子,为空间增加细节和氛围,
进卫生间视角,双盆设计更方便.
茂密生长的植物.点缀于墙面,弥漫着自然的芬芳
站在淋浴看过去的视角,墙面与植物达到虚实的呼应.
从浴缸看出去的视角,左边是悬挂马桶,利用现场结构预留了个小平台,方便平时置花或者香薰.
客服
消息
收藏
下载
最近

































