查看完整案例


收藏

下载
原始勘测图
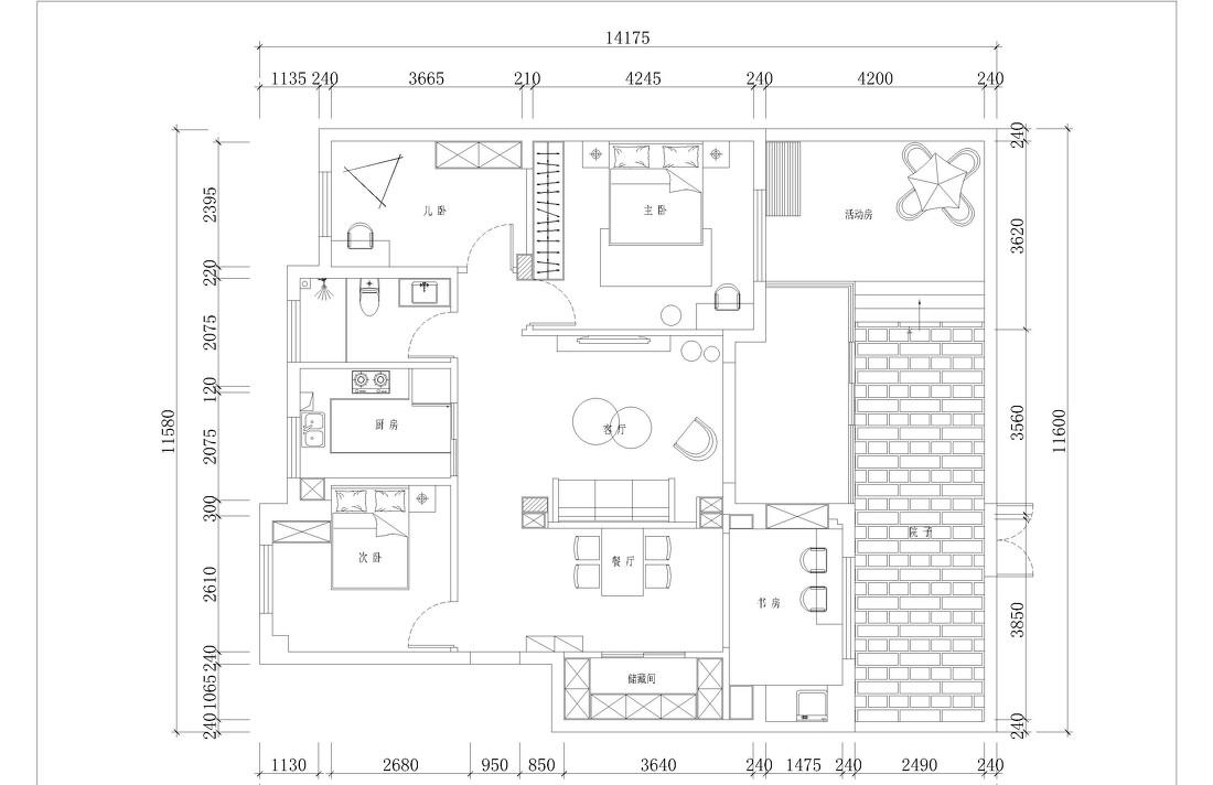
平面布置图
设计说明:
1.案例业主是在一楼,有院子,设计时把原先的阳台改成了书房,生活操作洗衣晾晒都在院子进行。
2.把原先的餐厅区域做了老人房,厨房门改到客厅这边来。另外巧妙的将原先的客厅分出两个区域,一个餐厅区域一个储藏室。
3.借着院子这个良好的先天条件将房间改成客厅并借入院子的空间以扩大客厅视觉感受,在户型改造上大大满足了客户需求。
整个客厅,光线充足,温暖舒服~白色文化砖,深浅不一的凹凸设计,自然逼真的纹理,一道充满艺术特色的文化砖背景墙,给人一种惊艳的视觉冲击。
简约电视柜,自然实木的色彩和质感。灰白圆形茶几,高低错落的造型,清晰明净的设计,给家增添一份时尚感。
灰色布艺沙发让空间产生一种平静之美,当慵懒和放空自我已成一种奢侈,小边几在家中代表着一种美好的慢调生活态度。
客厅地毯融合了基本的几何元素,通过黑白色彩组合,提升客厅空间整体感,明亮的黄色和清新的绿色作点缀,给空间注入活力与生机。
一个幸福的家,需要植物的点缀~一道栅栏墙,后期打造自己的梦想花园。
台阶地面铺上一块地毯,告别空旷冷清,更添闲适情趣~
餐厅与客厅采用半隔断,形断意不断。客餐厅自然过渡,根据功能的需要,餐边柜也能巧妙放置。视觉上感觉分割明确,整体上又和谐统一。
慢享生活每一天,打破食不知味的匆忙打卡日子。一张合适的餐桌,加以桌垫和花瓶的摆设,提升用餐的幸福感~
谷仓门,造型简洁又大方,质朴又够酷~原木色系温馨百搭,barn door后即是储藏室,节省空间又养眼!
通透明净的落地窗带来绝佳的采光,方形办公桌,木色木香。
书房,小屋一间,亦可以是一方几案、捧书一本,清茶两盏,抬头暖阳拂面,发间清风徐来。
简单的木色和白色相映成趣,灰色的窗帘和床的颜色相呼应~
简约、清新的麋鹿风景壁画在卧室很是抢眼哦~“鹿”即禄,是吉祥、美丽、富贵的象征,一段相知,一“鹿”相伴~
主卧里摆放一张婴儿床,方便照顾幼小的宝宝~愿宝宝在全家爱的呵护下,每天沐浴阳光,健康快乐成长~
次卧实木床配以柔美的粉色床品,给人一种厚实的温暖。
柔柔的暖风吹过,无需远行,和你一起就是风景。
小宝宝目前才一岁 ,没有设置正规的房间,所以现在这个空间是宝宝活动玩耍的游戏房,等以后长大了再放床。
清新可爱气息的粉色,给人温馨梦幻的感受。
墙上充满童趣的卡通壁画,各式的玩具、漂亮的娃娃,让温馨陪伴孩子成长旅途的每一天。
吃货横行的年代,一个清爽舒心的厨房是居家必备。
白色的厨房给人的第一印象就是清爽、干净,在清爽的厨房环境里做出来的菜也会更加的美味可口~
客服
消息
收藏
下载
最近






















