查看完整案例


收藏

下载
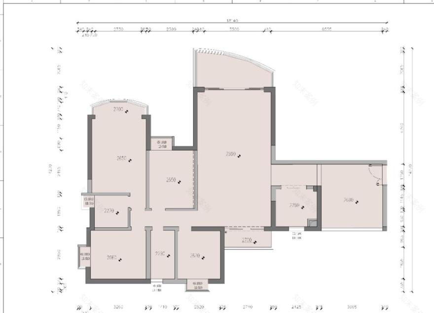
△改造前
原始的结构户型,在这些年的居住中已经积累了很多业主不满意的地方
1、厨房太小 只能一个人在厨房闷头做饭,很拥挤;
2、入户花园没有什么作用,用来堆杂物了。空间利用不充分且混乱;
3、放下一个大衣柜后,一直觉得主卧十分拥挤;
4、家里的收纳空间不足,到处都是堆放了杂物。家里的收纳空间需要扩增。
△改造后:
户型结构上,既要满足以上这些需求,又不能把空间弄的太零碎和杂乱,对设计师来说需要精心布局
1、厨房改造成半开放式厨房,多了一米的操作台;
2、主卧旁边的小卧室改造成了衣帽间,给主卧腾出来更多的空间,给二胎计划预留空间,
收纳也变得井然有序;
3、把入户花园改成多功能房间,平时是书房,来客人的时候,可以展开一张床,作为客房;
4、全屋增加了许多收纳的空间。
△改造前:走廊光线分布不均匀,厨房这一段的走廊白天也是暗暗的。每天都要穿过暗暗的走廊才能抵达其他空间
一进门,左手边,看到的是一个乱糟糟的堆放杂物的空间,这是对这个家第一印象。且在紧凑的有许多需求的空间里,这个空间显得非常浪费。一回来就是乱糟糟的家,心情并不好。
△改造后:厨房改成开放式厨房后,解决了走廊的采光不均的问题。
设计师把入户花园改造成了一个多功能房间,平时是书房,女儿可以在这里学习
来客人的时候,折叠式床拉下来,便成了短暂的客房。
改造前的客厅:零零散散的分布各种杂物,压力比较大,无法放松。
客厅作为一个娱乐休闲会客空间,我们尽量和收纳空间区隔开来,更简洁和舒适的一面呈现出来。
设计师特意选了一个双面沙发, 对着阳台的一面,可以躺在沙发上看海。一切都是为了更美妙的生活在做设计和调整。
△改造前:原本L型的厨房,可用空间真的太小了,备菜十分不便,做个都饭手忙脚乱,更别说容下两个人,真的很憋屈,只能一个人在厨房闷头做饭
我们的改造设计从增大厨房空间着手,把原本L型的厨房改成了半开放式厨房,在三面墙承重墙体都不用变动的情况下,加了一个中岛,就轻松多出了一米的操作台面。
改造之后,女主人跟我们反馈,原本从不下厨房的先生,每天都会主动来厨房帮忙做饭了
先生在厨房备菜的同时,还能和客厅玩耍的小朋友互动,兼顾照看小孩。做饭本就应该是一件这么快乐的事情吧~
原本的卧室,衣柜太大了,其他空间显得比较拥挤,对于即将准备生二胎的家庭,主卧势必需要摆放一个婴儿床。
设计师考虑屋主在为二胎作准备,需要更宽敞的空间来为将来做打算,所以把一个小卧室改成了衣帽间,转移了主卧的收纳压力,主卧空间变得更宽敞轻松。
把衣物收纳的功能转移到衣帽间之后,主卧敞亮整洁。没有之前的压抑感。
如此紧张的130平也能拥有了梦想中的衣帽间,解决了改造前存在的鞋子衣服超多杂物的收纳难题。#收纳
△改造前的主卧配套卫生间:比较拥挤和杂乱,泡澡也难以放松下来。颜色也比较压抑,看起来脏脏的。
改造后:设计师为主卧的卫生间争取了多一点的空间,色调也更为明净和安心,一切变得也井然有序,对于喜欢泡澡的人来说,带浴缸的卫生间一定不能将就。
之前的孩子房的风格实在沉闷传统,女儿一直希望自己有一个粉色公主房。设计师在这里融入了小女孩的美梦和幻想。
客服
消息
收藏
下载
最近





























