查看完整案例


收藏

下载
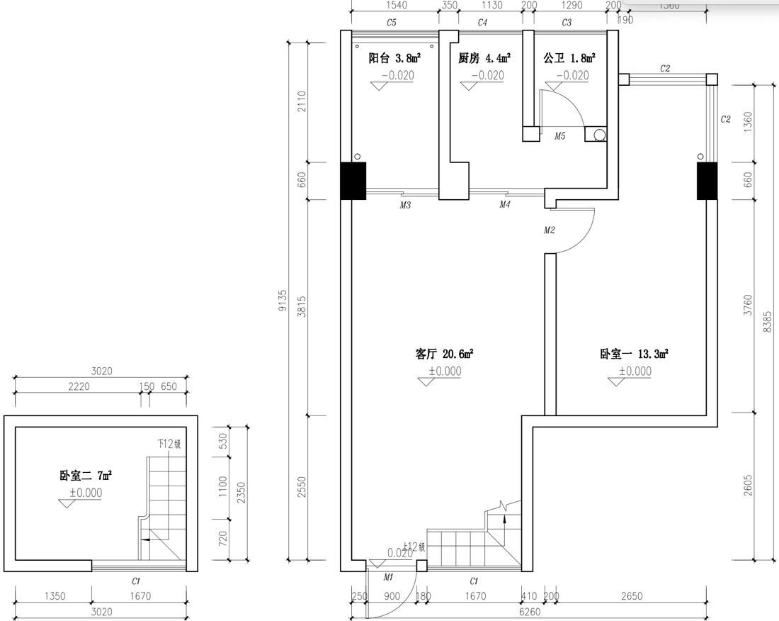
改造前卫生间和厨房都非常小,厨房只有一个窄窄的过道,中间有个比较低的横梁,还有好几根下水管。阳台面积不小,堆了很多杂物有点浪费。卧室出去的阳台没利用好。
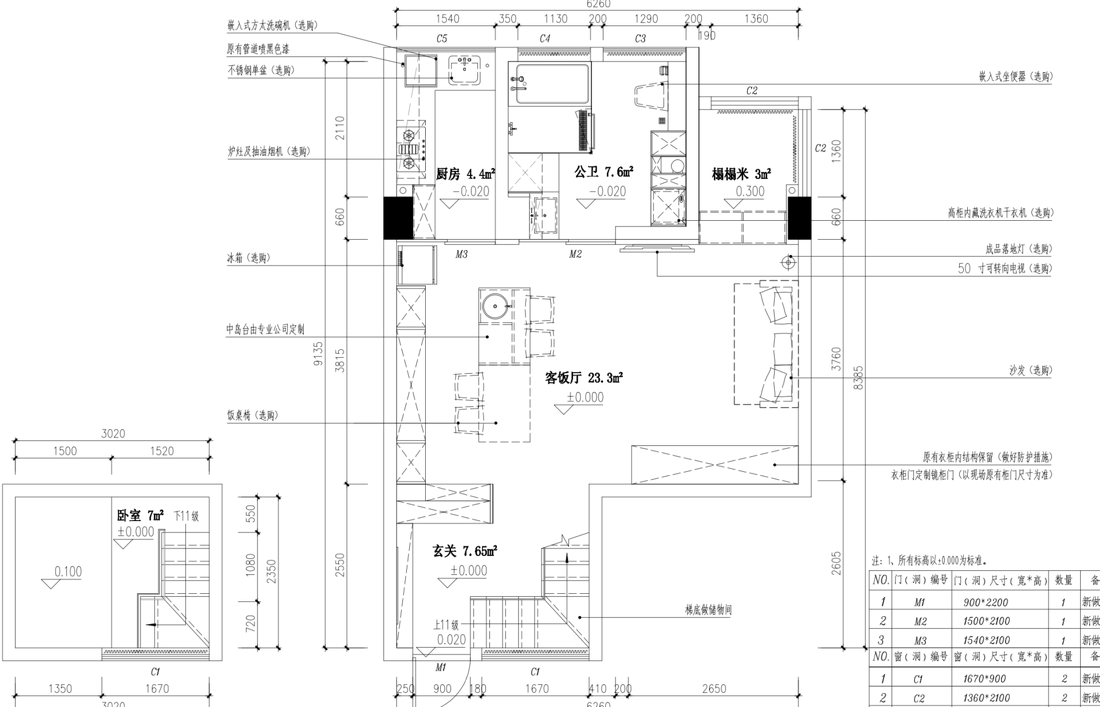
改造后的平面布局图,我们把厨房和卫生间之间的隔墙打掉,做了一个4分离的卫浴,满足了女主人想有个浴缸的愿望。原来的阳台封起来改成了中厨,客厅和卧室之间的隔墙打开做了一个大开间,设了中岛和整墙的餐边柜。玄关区也增加了隔断柜,隐私性更好,也增加了玄关的收纳。原来主卧出去的阳台改成了榻榻米,偶尔客人或者父母来可以临时睡觉用。
改造前
在进门右侧放了超薄翻斗鞋柜,利用墙角的空间,增加鞋子的收纳,顶天立地的玄关柜可以增加储物,屯的猫粮猫砂之类的也可以放这里,也作为一进门的隔断,遮挡一下进门的视线。并且为了避免全屋白墙的单调,在玄关两面墙晒了暖木棕,玄关作为不需要长期停留的地方不会容易看腻。矮柜上的镜子增加了空间的层次。
楼梯下的角落,保留了原有楼梯结构,对楼梯做了翻新,新做了踏步木饰面和玻璃护栏。楼梯下的空间请木工开了一个圆洞,里面放了猫砂盆。
这个角度看过去,客厅感觉很大。岛台和餐桌没有做连在一起的设计,是为了方便以后移动调整下摆放,小空间能灵活的尽量灵活一点。1米2的小岛台虽然不大,但是平时在客厅喝水洗水果、聚会时调饮品非常方便。转身就是冰箱,这款冰箱带自动制冰,女主人超级推荐。沙发也是随时可以移动位置,客厅没有装电视,在大白墙上投影。
从岛台看过去客厅,右侧一整面大衣柜满足了日常2人的储物,没有太多的家具显得空间干净空旷。
岛台正面图,整墙的餐边柜收纳力MAX,开放格里放咖啡机水波炉之类的方便快速早餐和聚会模式。客厅装了风管机,对美观有追求又想节省预算的朋友强烈推荐。
1米2的小岛台,选择安装一个小圆盆,节省空间又好用。
榻榻米角落,只在靠外侧的部分做了抽屉收纳,里面是砖和陶粒砌起来的,节省预算。这里包了一根管道,做了电动窗帘盒,免得每次拉窗帘都还要上台阶。
局部特写,平衡挂件在射灯下光影感很强。
家里有2只猫,还有只比较胆小,这只就是各种凹造型抢镜头,超上镜。
二楼卧室比较小,就放一张床和过道。平时在楼下休闲活动,楼上只睡觉。
厨房只在橱柜中空贴了砖,其他地方都是刷防水漆,漆的哑光质感是瓷砖不可替代的,刷漆也节省了人工成本。原有的下水管用柜板包起来比较节省空间。
卫生间是此次设计里面最满意的,1米4的大洗漱台,右侧台下放了猫咪烘干机,给猫在洗脸池洗完澡以后放到烘干机里烘干,很方便。洗手台上面的镜子一部分是镜柜,一部分是贴在烟道上的银镜。淋浴房和浴缸结合,满足淋浴和泡澡的需求。右侧的柜体包了管道,集合了洗衣机烘干机、清洁用品收纳的功能。淋浴间隔断没有做挡水条,选择了定制一个长条地漏,让地面没有高差,也不会有水流到外面。
乱入一张手机随手拍的细节,壁挂马桶对于增加收纳帮助很大,也减少了清洁死角。
客服
消息
收藏
下载
最近


















