查看完整案例


收藏

下载
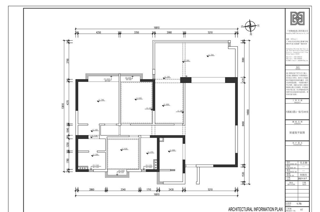
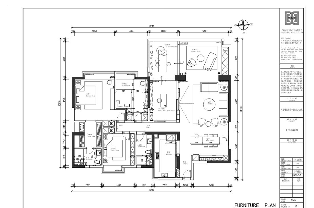
户型结构分析: 1. 入户视距狭长,空间分布不均匀 2. 阳台使用率较低 3. 过道狭长的问题导致采光不均匀,有局部暗区 4. 厨房操作空间不足 5. 收纳分布混乱,功能性较差
解决方案: 1. 打开书房与阳台之间的墙体,让其充分“吸收”采光,考虑到过道狭长有暗位等问题,我们把书房的墙体进行拆分,并做推拉门形式,把光线引入室内,在提升采光的同时也创造更加优质的通风条件 2. 打开生活阳台与厨房连接的墙体,扩大厨房提升使用率(习惯:烘干较多、基本不晾晒,但我们还是预留了晾晒去,放置在休闲阳台最右侧) 3. 左侧阳台用做家庭休闲区域 4. 主卧进门区域右侧偏移,利用凹位来增加主次卧三组收纳,过道尽头也可摆放收藏的饰品,减轻过道狭长带来的视觉“浪费”
改造前现场情况
客厅进入过道视角:很明显基本无采光..
以上是打开后视角,特意挑了个跟量房时差不多的天气去拍摄,怎么样,差距很明显吧!
过道打开后视角
客厅,现代简约设计,
浅灰色的皮沙发,还有圆形的组合茶几,渐变的地毯,现代风的冲击,让人眼前一亮,在软装搭配上,落地灯和沙发也很出挑,多种元素,别样风采。
客厅是生活空间的公共区域,营造豁然开朗,宽敞舒适的体验感,开放式的客餐厅,视觉效果更加明亮,电视背景墙是大理石,电视内嵌,削弱了冷淡色调的清冷之色。
过道是一个家的承中,串联着每个空间,让功能区之间彼此独立而又和谐统一,原木为墙,将将气质融入自然,身轻气轻,心安宁,得自在。
餐厅与客厅是连通的一体化开放格局,餐桌和吧台相结合的格局,后面是一排的展示柜和料理台,空间利用精致而浪漫;餐厅靠厨房,原木长形的餐桌搭配米色餐椅,用一盏艺术的金属吊灯照明。
家的意义无关财富多寡,空间大小,权势地位,更多的是一种精致的生活,空气中的脉脉深情,一种舒适和稳重,一种心安与宁静。
厨房呈一字型布局,长台面与上下收纳柜相结合,让屋主下厨得心应手,收纳所向披靡,大大的厨房,一家人一起做饭聊天也是极好的。
顶部的吊柜是封闭式收纳空间,可以放点小电器与各种调味料,生活就是五味人生,永远充满惊喜,充满饱含热爱。
主卧是休闲放松之所在,在设计初衷,想要通过不同材质的墙面,而让空间富有层次感,超大的窗户让房间宽敞明亮;床头柜、吊灯,简约大方,时尚与艺术气息弥漫在空气中。
卧室,经典黑色硬包,在柔和的灯光之下更显质感;大面积的白色衣柜,收纳强大,旁边是同色系电视柜,但这样设计,能确保空间开阔不显拥挤。
儿童房从配色到元素,从空间结构到材料品质,都强调生活的舒适性,上下床设计,满足生活需求,也解决了卧室面积小的不足,美好和愉悦,天真和洒脱,无忧无虑,是童年的独特色彩。
书房背景墙墙是一面收纳柜,透明玻璃的设计,让取用物品一目了然;空出的活动空间,布置办公书桌,舒适的座椅,无论是工作还是优秀,都让体验感达到极优。
将面积的利用的恰到好处,黑色为主的书房沉静而低调,温暖的灯光,白色座椅点缀,亮色提升气质,增加了生气。
一个大大衣帽间,相信是很多人的梦想,原木打造两排衣柜,顶天立地的设计,收纳功能十分强大,自然优雅兼具,每天早上男女主人一起挑选,一同出门,也是很有情调。
朴素的茶室,展现的是一种宁静,一种静雅,一种在繁忙都市中的一片净土,生活需要一些“断舍离”,需要摒弃繁琐与艳俗,归于单一,归于简单。
卫生间,以白色、黑色做为主色调,水磨石耐磨耐腐蚀,大理石精致而美好,根据空间的结构进行合理分布,干湿分离,功能独立;布局,合理的分布了各个功能区。 空间虽不大,但是在细节上很是用心,台下盆防喷溅,柜下留空易打理,呈现简洁干练的现代感。
客服
消息
收藏
下载
最近


























