查看完整案例


收藏

下载
改造前
改造后:
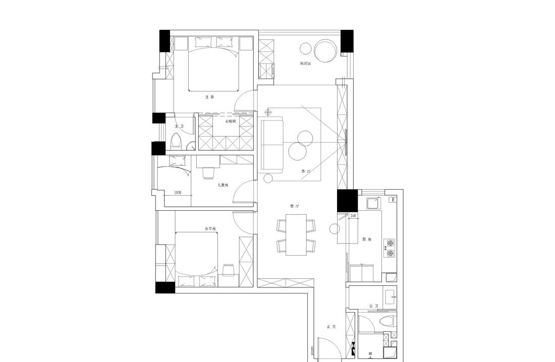
本案居住成員是5人,所以需要保留三個房間,另外公衛洗臉盆設計成外置,這樣使用更合理。廚房增加了吧檯的功能,讓功能區不再單一化,而是多樣化。陽台打通,讓公共空間更大,活動區域更寬,加強家人之間的互動及交流。
玄關設計了大空間的聯排鞋櫃,顯得舒闊而有氣質。白色調使空間清新自然,墻面裝了大試衣鏡,方便出門之前整理着裝。
客廳給人第一感覺就是純淨,設計簡約而又質感,整個空間以暖色系為主,呈現出簡潔大氣的視覺效果。
以台階的設計區分開客廳和陽台,百葉窗將陽光引進,溫潤木質營造一種輕鬆愜意、陽光和煦的生活氛圍。
原木地板和餐桌椅搭配純淨的白色餐邊櫃勾勒出簡約的基調,使用餐氛圍暖意十足。
廚房有着強大的收納功能,白色櫥櫃簡化了廚房的家具色調,讓整個空間看起來有種不食人間煙火的潔淨感。
溫柔的色調營造溫柔的空間,灰色沉靜內斂的氣質能烘托臥室的靜謐的氛圍,更能帶來一種讓人平靜的感覺。
霧霾藍背景墻渲染生活的個性,床左側的一席收納櫃給簡約空間觀賞性美感。這樣的設計乾淨利落,也十分簡潔。
洗手池單獨外置,將廁所和浴室融為一體,把乾濕分離做到位,使用起來更加便利。
客服
消息
收藏
下载
最近














