查看完整案例


收藏

下载
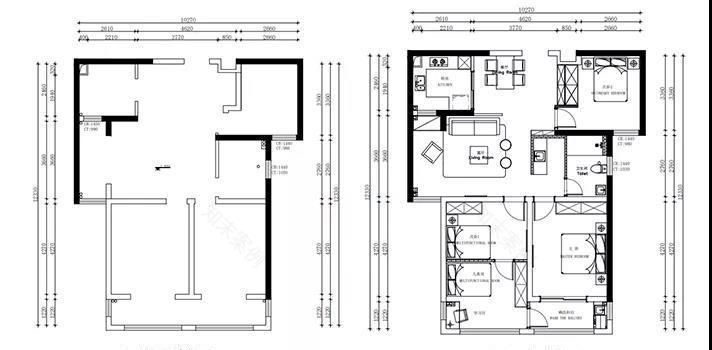
1、考虑到业主人口较多,所以进门口设立了一个通顶的鞋柜,并将原先墙体拆除,增加老人房的空间面积。
2、借用了客厅一些空间建设墙体,增加干区功能。将双阳台一半的面积规划到了女儿房,增加女儿房的面积。
3、在女儿房隔壁隔了一个房间作为储物和客房功能的空间,考虑到这个房间没有采光,所以将客房和女儿房之间设计了固定式玻璃。
本案设计注重空间的笔挺稳重,选用的多是线条硬朗利落,造型简约大方的元素。我们将原本半封闭的客餐厅空间打通,让自然光延伸至厨房跟餐厅,使整个公领域变得宽敞舒适。一侧的单人沙发+多人沙发双重舒适,家人休闲和待客都是非常方便。
配色上,采用了大量的灰白色打底,利用低饱和度蓝色提亮整体空间。相对低饱和度颜色,沙发的灰色与亮黄色呈现的色调自然而温和,给空间注入了,轻快、明媚的活力与生气。
从客厅望向餐厅,可以看到客厅与餐厅空间相互渗透,保持了即分又合的关系,此即空间的透明性。业主平常一家四口都在家吃饭,对于餐厨的规划,集中在光线与油烟的杜绝。在餐厨的相接处使用了玻璃材质,使得光线和空间能够得到更好的发挥。桌椅的配色选择了低调的中性色,耐看耐脏。
主卧延续了客厅的冷色调配色风格,在整体风格设计上,摒弃多余的装饰,化繁为简,线条明朗、造型简洁利落,将家庭最自然的生活状态融合呈现。拒绝一切浮夸的表现形式,要的就是这么简单舒适,足以安放身体和灵魂。
女儿房整体呈现出活泼明朗的气氛,色彩采用橘黄与粉色配合,符合女孩对家的喜好。床头拐角处和家具也使用圆弧设计,不刻意、舒适而灵动,细节之处见到的是美好。
卫浴区要体现出简约、舒适的氛围,就必须在空间的布置上做到张驰有度。设计师将不同的功能区合理划分,尽量避免过于繁杂的物品堆放,灰色瓷砖细腻单薄,一粗一细既产生对比,又营造出十足的自然感。
客服
消息
收藏
下载
最近

























