查看完整案例


收藏

下载
客廳運用了大面積的白色+木色,溫馨感十足,搭配上薄荷綠的半墻漆,讓空間色彩不那麼單調,增添了幾分小清新的感覺,加上綠植的點綴,營造出最貼近自然的舒緩色調。
擴張了走道後改造出來的餐廳區域,延續了客廳的薄荷綠色調,加上帶點復古氣息的吊燈,為空間增添了不少精緻感。
主臥採用了淺藍色背景墻,給人寧靜悠閒的感覺;掛畫直白而簡潔的表達方式,讓人擁有一刻安寧和靜謐的時光。
次臥計劃以後作為兒童房,所以在色調上,選擇了十分柔和的馬卡龍色調,整體給人輕鬆活潑的氛圍。
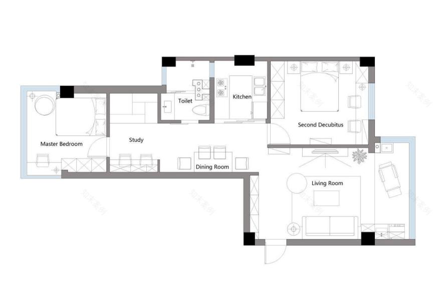
多功能區一邊設置了辦公區,方便業主加班的時候能安靜的工作;一邊則設置了榻榻米休息區,既能收納,來客人的時候放上床鋪又能當成一個房間,十分好用。
簡潔乾淨是廚房給人的第一感覺,黑白+木色的搭配,高級又不單調。U型的設計,滿足了日常的功能需求。
1.兩房的佈局,不能滿足來客人時的居住需求;
2.廚房衛生間相連,使用起來不夠便利;
3.房間沒有書桌,希望有書桌區域。
1.原次臥的墻體往裡挪動,增加功能房的區域,一邊是辦公區,另一邊則是休息區;
2.廚房和衛生間做了格局改動,廚房墻體往主臥移動,改為U字型廚房,利用推拉門增加採光,在與衛生間的隔墻之間再增加採光與通風;衛生間做到了乾濕分離,給業主的生活帶來方便。
3.過道整體往外擴張,預留出餐廳位置,墻體利用墻漆分割,使得整體空間更加開闊。
客服
消息
收藏
下载
最近














