查看完整案例

收藏

下载
©苏圣亮
在这里,城市建筑以当地熟悉的材料被搭建置入乡村场地之中,寻求与环境对话,在矛盾和共生中展开日常。
感谢
米凹工作室
在地图上,东江湖有两部分,一是东江湖风景名胜区,另一个是东江水库。水库就是湖,上世纪中期开始动工,1986 年 8 月蓄水,控制流域面积 4719 平方千米,占耒水流域面积 39.6%。
相比其他人工湖,这里的特殊之处在于水温。东江大坝 157 米以下的地下水流出到湖里,使水温保持在 4-12 摄氏度,在每年 4 月至 10 月间,清晨或傍晚时水温较低而空气温度较高产生温差,水蒸气雾化形成了雾漫小东江的自然景观。
▲梯田望向酒店
©苏圣亮
南北向狭长水域的北部是白廊镇所在,因为风景名胜区在湖的西边,所以一众酒店、民宿、村民自建房都集中在西岸沿湖一带。
东江湖是资兴市的核心旅游资源,资兴市所属湖南省南部,为郴州市代管县级市,地处湖南、广东、江西三省交界处。
从郴州城区到风景区约 30 公里,于是路线中安排了游览郴州的旅行团将东江湖作为一站也是常事。
▲湖面远眺酒店及村庄
©苏圣亮
▲北侧俯视主入口©苏圣亮
村子是跟着湖有的,历史不长,时代的印记却算得上深刻。村里人口繁盛,大家以湖为生,早些年多为渔民,禁渔之后现在经营一些和旅游相关的生意。从 1980 年代村民自建的老房子,到 2000 年左右兴起的农家乐,再到近几年当地所开发的公路、景观公园等基础设施,新旧并存,形成一幅矛盾又生动的景象。
▲分析图
米凹工作室
棠之就建在这里。如果说一间酒店在建造之初,立下了把它做成“旅行人停留地”的目标,也许有人会觉得不信。行程的安排一站接着一站,酒店只是满足一晚睡眠的场所,不是这样吗?棠之选址在白廊镇往南,以此为基点往外辐射,雾漫小东江、东江大坝、兜率灵岩等景点组成“游览圈”,白廊还有“小洱海”之称——这不禁让人想到关于听风看海的种种“大理传说”。一趟旅途,在这里待多久,不是由景点的数目决定的,停留、观看、感受……日子慢下来,坐在走廊的沙发上发呆也能过一天。
▲酒店东立面
©苏圣亮
▲东侧俯瞰©苏圣亮
远观棠之,既能感受到这一建筑体的强烈存在,同时又能看到它和村庄的相互感知正在发生。
酒店整体立面和室内公共空间墙面采用肌理丰富的白色釉面陶砖,尺度与当地民居相近,赋予建筑特别的光影效果。
在原有框架之外,建筑结构上新建了中部空间,以及南侧配合客房的现浇混凝土阳台。以建造手法改变空间特质。
▲湖边公路初见酒店
©苏圣亮
▲南侧望向酒店
©苏圣亮
▲酒店正立面©苏圣亮
棠之酒店原有的建筑框架在一片梯田旁,其实是田地主人切割铲去一半梯田搭起的“房子”,南侧朝向湖面。像这样的“房子”在村里不止一处,通过它们能读出建筑、梯田和村落的关系。
这个框架从东-西、南-北两个方向被划分成 X 轴和 Y 轴,前者展现为公共性,后者涵盖酒店的私密空间。
如果以具体名称描述建筑周围的景观,那无非是梯田、湖面、树、公园等等这些,而且邻居家的房子也不会被认为是在其之列。因而撇去“名称”,在 X 轴上用几乎完全通透的公共空间将有限的景观切碎,展示它的不同特质,同时并不对景观加以过滤,而将其所有——包括村民的住宅展现在眼前,使人在室内能感受到室外的村庄氛围,生活在“城市”而体验在“乡村”。
▲晨间的天台景象
©苏圣亮
▲日出倒影©苏圣亮
无论是村庄还是梯田,以景观的方式从建筑两侧山墙方向进入到室内,同时,发生在建筑内公共空间的行为也为村民所看见。虽然如同切割梯田放入房子的动作一般,身处建筑内部和外部的人群被进行了物理层面上的区分,但二者通过行为展示而相互感知,这种“了解”消化了陌生感。城市活动和乡村活动在矛盾中展开。
在这间并非大体量的酒店里,容纳大比例的公共空间,放置超常尺度的台阶、楼梯、走道、中庭,是让酒店成为“旅行人停留地”的独特手法。家的多场所在公共空间里得到。
▲主入口
©苏圣亮
▲酒店休息区
©苏圣亮
▲休息区望向客房
©苏圣亮
从进入酒店开始梳理动线。首先,特意安排的是到达的方式。沿半山腰小公路驶入位于北面的停车场,看见的只是一层楼高的建筑。进门能从侧面看一眼东江湖,之后便面对两条路线选择,向上的楼梯通往露台,那里有躺椅、浅水池、Y 轴上墙体分割形成的“桌子”;或是再进一道门就来到内部中庭,站在这一层已然能体会到 X 轴上的景观,而公共空间开阔到可以望见楼下餐厅。
▲中庭内的台阶
©苏圣亮
▲中庭公共空间
©苏圣亮
望向接待区及餐厅©苏圣亮
中庭向下走一层,是餐厅与咖啡厅的组合空间,餐厅座位的高度似乎与湖面齐平,仿佛坐在湖边。这里还有适合一群人围坐聊天的壁炉,使空间活动更为丰富。东北侧预留了可举行小型会议的多功能厅,自带室外露台。
▲走廊望向梯田©苏圣亮
望向餐厅及咖啡厅
©苏圣亮
▲餐厅及咖啡厅望向湖面©苏圣亮
作为通常酒店的主体,而在棠之被“特殊对待”的客房部分,以 Y 轴上并行放置的五片墙划分完成。十六间客房朝南,立面端正,三十五平方米的空间里容纳适合二人尺度的家具。阳台同样依据身体性的较小尺度,以立柱分割,提供了或坐或站立倚靠的选择,而顶部高出客房许多,造成“天花板消失”的空旷感。在这里可以感受到,和公共区域不同,小尺度的运用使私密空间更贴近人本身。
再向下一层,酒店二楼设置了家庭房,而公共空间朝东一侧搭建了可踏出室外的小阳台,梯田植被触手可及。一楼设置了多媒体影音室和儿童房,南向的四间客房对着四个院子,当每个院子的三扇门全部打开时,大、小院子连通成为一体。
▲家庭套房
©苏圣亮
▲标准客房
©苏圣亮
▲客房盥洗室望向湖面
©苏圣亮
▲楼梯间的白色釉面砖及混凝土©苏圣亮
在这里,城市建筑以当地熟悉的材料被搭建置入乡村场地之中,寻求与环境对话,在矛盾和共生中展开日常。
▲远眺
©苏圣亮
▲东侧俯瞰
©苏圣亮
▲村庄望向酒店
©苏圣亮
项目图纸和模型
▲模型
©米凹工作室
▲总平面图
©米凹工作室
▲一层平面图
©米凹工作室
▲二层平面图
©米凹工作室
▲三层平面图
©米凹工作室
▲四层平面图
©米凹工作室
顶层平面图
©米凹工作室
▲剖面图
©米凹工作室
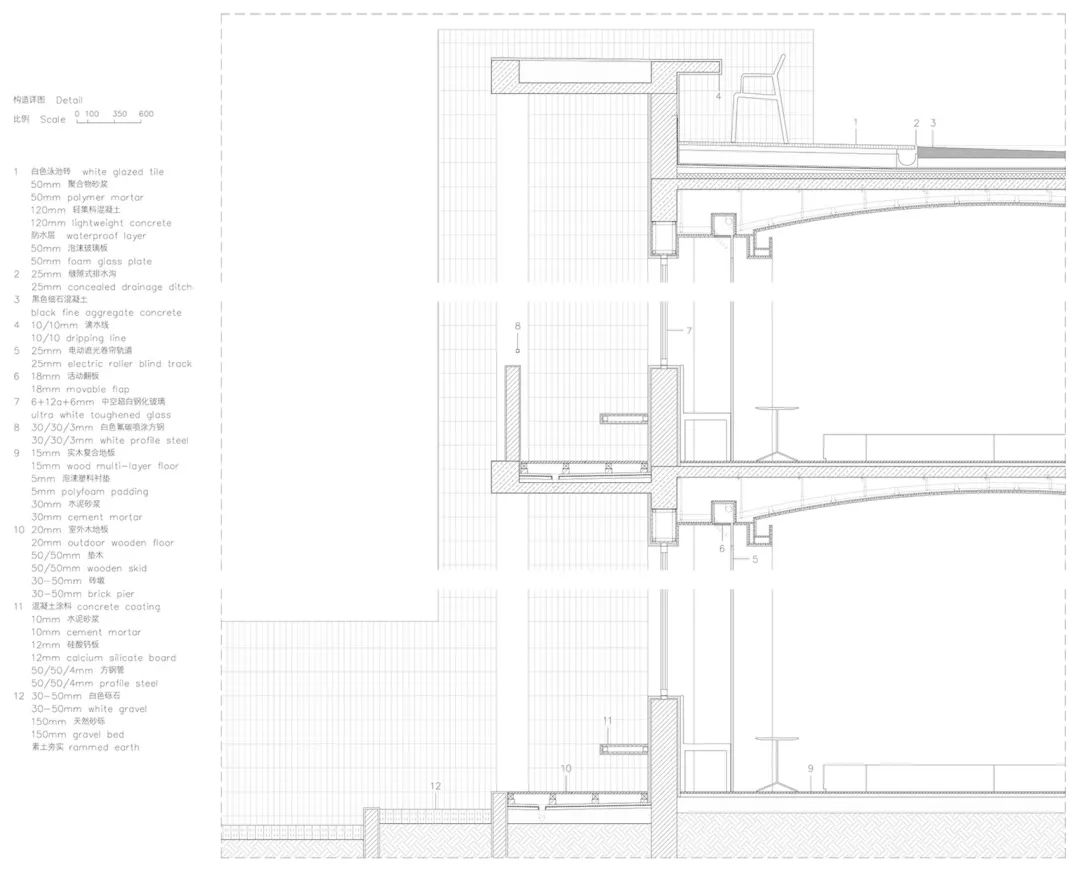
▲构造详图
©米凹工作室
项目名称:棠之酒店
设计方:米凹工作室
项目设计 & 完成年份:2020~2021
主创:周维
设计团队:叶葭焕,邓娴,吴雪婷,周烨炯,白鹭(实习),刘哲宇(实习)
项目地址:湖南省郴州市资兴市白廊镇
建筑面积:1717 平方米
摄影版权:苏圣亮
合作方
机电顾问:上海三匠机电科技有限公司
照明顾问:米绅照明设计(上海)有限公司
施工单位:湖北红昌宏建筑装饰有限公司
客户:余辉
品牌:RISE, SKK, UFOU, SilentGliss, DAIKEN, MOLONEY, TOTO, RYOWA, ROTO
客服
消息
收藏
下载
最近









































