查看完整案例

收藏

下载
©Ángel Segura
设计的核心理念旨在探索一种与老年人相互匹配的生活方式,优化居住者的生活品质,在引领人们走向未来的同时,帮助他们自然地适应时间流逝带来的必然变化与限制。
感谢 Romero & Vallejo
本项目是 Romero & Vallejo 事务所为老年人量身定制的住宅综合体,旨在服务于老年社会,关注老年人的福祉。除了 35 套完全无障碍的独立公寓外,本项目还涵盖了占地面积超过 1500 平方米的社区空间,包括:体育馆、工作室、餐厅、会议室、休息室、花园、游泳池等体育与休闲设施。可以说 Vitapolis.老年公寓的设计已经超越了建筑方面的思考,而是旨在以一种适宜的方式迎合老年人的生理和情感需求。
▲主入口立面
©Ángel Segura
▲建筑的东南侧为开放的露台
©Ángel Segura
▲东南侧立面
©Ángel Segura
▲立面细部
©Ángel Segura
公共空间与公寓设计的核心理念旨在探索一种与老年人相互匹配的生活方式,优化居住者的生活品质,在引领人们走向未来的同时,帮助他们自然地适应时间流逝带来的必然变化与限制。建筑师希望通过在建筑内部创造社区空间、提供丰富活动,从而达到促进居民交流、打造社区凝聚力的目的。建筑师相信休息室、餐厅、健身房的设置,以及走廊、家具的布局能够促进人们的互动,而图书馆、工作坊、画廊等文化空间则能够发挥出住宅建筑的更多潜力,营造出温暖的家庭氛围。
▲航拍顶视图
©Ángel Segura
▲屋顶游泳池
©Ángel Segura
▲由屋顶泳池看周边景观
©Ángel Segura
中性色调与高档材料的组合,创造出不同的环境氛围,其中传统的材料例如:山毛榉木或手工制瓷砖等,此外还有一些更加现代化、国际化的元素,包括预制混凝土以及暴露在空间中的设备装置等。不同的元素和谐统一在一起,创造出优雅舒适的室内环境。
▲接待空间
©Ángel Segura
大面积的玻璃与丰富的绿植模糊了室内外的界限
©Ángel Segura
▲公共休息区
©Ángel Segura
▲餐厅©Ángel Segura
充足的公共空间为老年人的娱乐生活提供了良好的条件
©Ángel Segura
▲空间细节
©Ángel Segura
室内家具则采用了本项目的建筑师为不同品牌设计的家具,具有鲜明的当代风格,例如:为 GAN 设计的 Ruff Pouf 坐垫、为 NNow Carpets 设计的 Palma 地毯;其他经典家具例如由 Miguel Milá 设计师为 Santa&Cole 设计的 Cesta 台灯和 TMM 台灯、Jaime Hayon 为 Expormim 设计的藤椅,以及 GandiaBlasco 品牌的 ODOS 遮阳伞或 Acdo 的宠物灯等。
▲室外露台
©Ángel Segura
▲开放走廊
©Ángel Segura
▲舷窗细部
©Ángel Segura
公寓 – “既分居又住在一起……”公寓内部包括:客厅/餐厅、卧室、浴室,以及一处带有地暖的室外露台。居住在 Vitapolis.老年公寓的居民们既可以享有完全独立自主的生活模式,也可以在需要时获得个性化的护理服务。每个住宅单元都设有多处 24/7 紧急呼叫系统,以便居民可以将任何事件或紧急情况及时通知给工作人员。
▲公寓室内概览
©Ángel Segura
▲厨房与餐厅
©Ángel Segura
▲私人阳台
©Ángel Segura
高效的室内空调系统以及合理的建筑围护结构,结合东南侧的封闭走廊以及东北侧的开放露台,共同营造出舒适的体感环境,同时降低了建筑的能耗。另一方面,开放的露台可以起到室内外空间过渡的作用,在冬季吸收热量,并在夏季遮挡直射光,保护室内空间免受骄阳的困扰。
▲空间中的绿植
©Ángel Segura
▲夜景©Ángel Segura
项目图纸
▲总平面图
©Romero & Vallejo
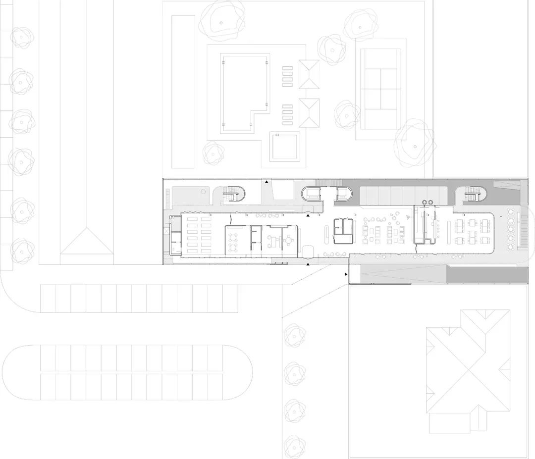
▲底层环境平面图
©Romero & Vallejo
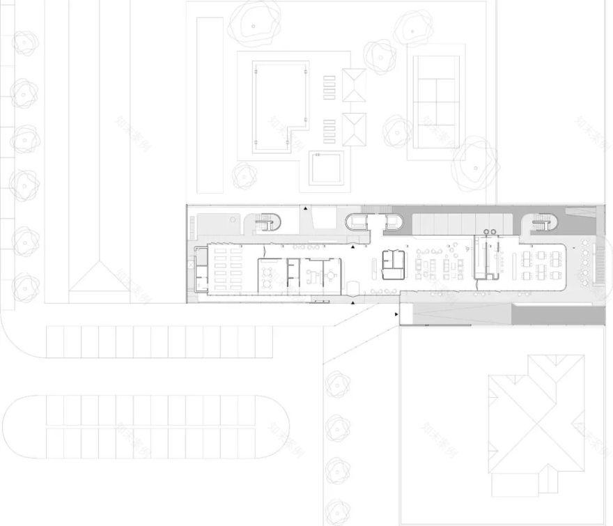
▲底层平面图
©Romero & Vallejo
四层平面图
©Romero & Vallejo
▲标准层平面图
©Romero & Vallejo
▲屋顶平面图
©Romero & Vallejo
Conceptualisation and business plan : Romero & Vallejo
Project manager: Romero & Vallejo
Architecture: Romero & Vallejo
Interior design: Romero & Vallejo
Project Manager: Vitápolis Gestión.
Surface area: 5.860 m2
Photographer: Ángel Segura
Art direction: Romero & Vallejo
客服
消息
收藏
下载
最近



































