查看完整案例


收藏

下载
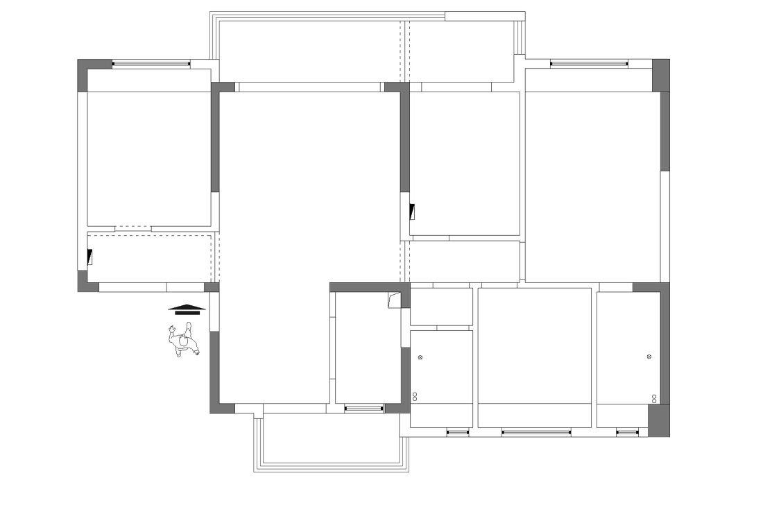
居住需求:1、主卧想要一个独立空间,有收纳需求。2、厨房太小,下厨的体验感不好,需要改动。3、入户鞋柜空间略小,男主人的鞋子需要强收纳。
优化方案:1、将北阳台墙体打掉,空间并入厨房。2、早餐台与餐桌衔接为一体,融入超大的工作台面,营造舒适的用餐氛围。3、将一间小卧室并入主卧空间用以收纳,整个主卧改动成一个完整的大套间。
玄关的设计舍弃不必要的装饰,四面落白。利用了几何与灯光的造型,营造空间现代感的同时层次氛围更加浓厚。
回家的仪式感是从进门一刻开始的,我们对于生活的付出与热爱,值得我们这样庄重地对待自己。
远处的云雾轻拂过黛山,颊染的绯红点缀其间,有风经过停在窗边。
我们对客厅氛围的构想应该是轻松的,明亮的,把原有遮蔽阳光的墙体拆除之后使得整扇的落地窗曝露在我们面前,阳光自然而然的恰到好处。
隐约雷鸣,阴霾天空, 但盼风雨来,留你在此。 隐约雷鸣,阴霾天空, 即使天无雨,我亦留此地。
黑与白如同世界的两极,是喧闹与孤独、隐忍与爆发的交织影响彼此吸收。
灰色调的卧室,削弱色彩对人情绪的影响,柔软而理性的温暖坚定,不因时间而荒芜,不因光阴而老去。
浅灰色的艺术涂料,简洁硬朗的线条灯,竖条纹的波纹板将视线向上引导,让空间显得高挑且富有层次感。
人生中痛苦和快乐不也似画板上冷暖色彩的糅杂,置于纯净的精神世界,是黑与白共存一体。
客服
消息
收藏
下载
最近




























