查看完整案例

收藏

下载
客厅俯视、工字铺贴天然石材纹路的灰色地砖与沙发、楼梯深浅不一的灰色形成空间的节奏感。
挑高客厅让人心情舒畅,冰极绿沙发背景墙大胆而有个性。
区别于传统客厅,以窗边卡座替代沙发的一部分功能,既能储物也能满足坐卧功能。
加固橱柜背板,实现空间最大程度的节约,电视背景墙是在橱柜背板上附了爵士白石材。
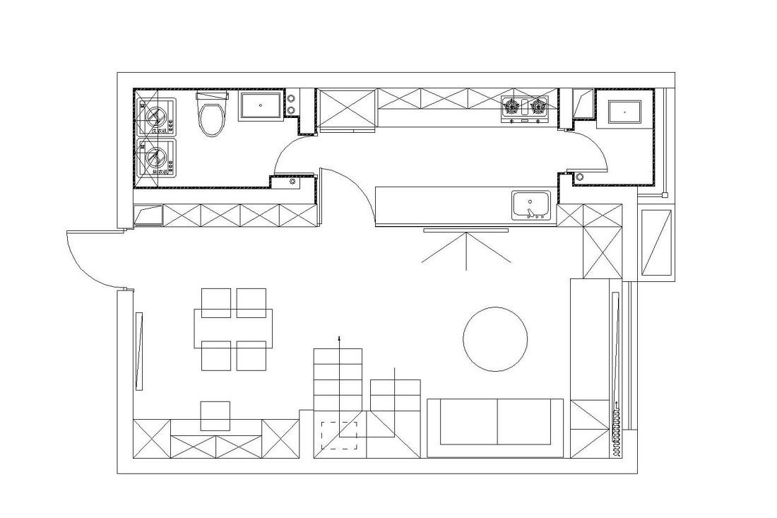
处于入户位置的餐厅,自然采光不佳,利用明状筒灯和照画壁灯、内嵌灯条等打造了这个温馨的就餐环境。装饰画背后是无法移动位置的强电箱。
从餐厅另一侧来看,被定制家居包覆起来的入户门、穿衣镜、衣帽柜、鞋柜等整齐划一,点缀在鞋柜中部的冰极绿是本案的色彩线索。
与沙发背景呼应的橱柜,大面积实用主题冰极绿色。男业主身高1.9m➕,因此左右两边橱柜做了人性化的高差处理。切菜及洗涤一侧地柜高于灶具一侧的高度。
电视墙是加固后的橱柜背板。上方以玻璃隔断做隔离,让小户型不至于局促。烹饪区墙面采用冷轧板饰面,经久耐用,现代感十足。
以长虹玻璃作为隔墙的主卧室,冰极绿乳胶漆出现在局部墙面。
长虹玻璃隔墙内侧预留 窗帘盒与投影幕布盒,晚上降下幕布在卧室里的观影体验也很棒。
主卧室外搭建起的迷你阳台,定制了这组精致的梳妆台。
冰极绿,楼梯间,线条感极佳的装饰挂钟与玻璃隔断形成粗细对比,节奏感从未丢失。
客服
消息
收藏
下载
最近


























