查看完整案例


收藏

下载
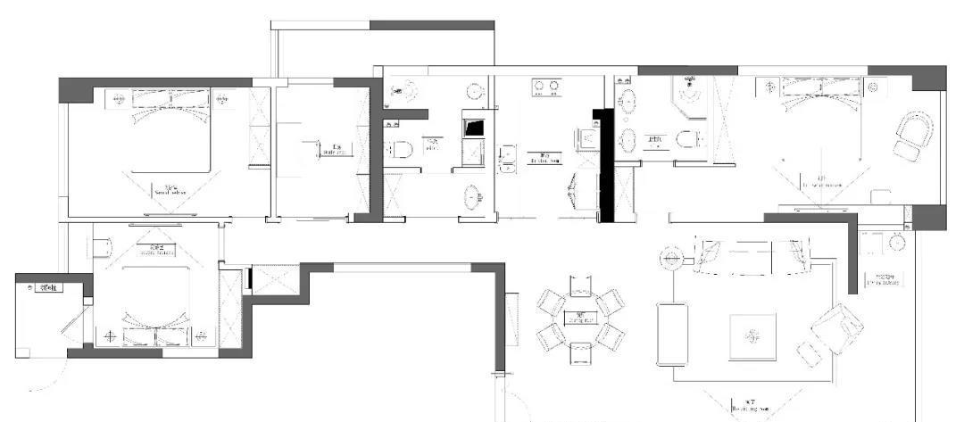
整体户型上,没有太多改动,女主人对于厨房功能上有一定要求,在整齐的台面上,设计了很多隐藏式的插座。空间中的外卫,是由原来的空调外机空间扩充进来,增加了淋浴区,做成了一个淋浴、马桶、干区三分式卫生间。
本期案例是一家三口居住,业主是一对年轻夫妻,孩子3岁,喜欢现代风格,对于厨房和收纳以及孩子的活动空间有一定要求。
灰调的空间内加入白色,天与地之间有了联系,挺拔的线条在视觉层面起到拉升层高的作用,与吊顶结合消除梁体带来的压抑感。
在高级灰的空间中,点缀富有活力的橙色,以及质感非常的黑色皮质家具。当光线照进屋内的那一刻,温暖、舒适与沉静,在内心充盈。
客服
消息
收藏
下载
最近














