查看完整案例


收藏

下载
原始平第一次见到业主时,他们提出一个大胆的想法,打掉原始厨房,扩大次卧空间,在客厅新建开放式厨房。
两个厨房中间距离有2.2米长,是一个“凸”字型门厅。设计前期多次与燃气公司和施工方谈论燃气和烟道的改动方案,设计过几种改动方案,最后都超出了燃气安全管理制度,放弃了拆掉中厨的想法,保留原始中厨,并且在客厅新增了一个西厨。
由于夫妻两人在澳洲留学多年,习惯了开放厨房和吧台的围绕式。这也是现在年轻人群生活方式的转变。
十年前的客厅,基本都是沙发+电视的生活方式,并不是适合所有年轻人,更多的年轻人有自己的生活方式,比如有人不看电视,有人不需要餐桌,有人不需要沙发,有人需要聚会等等 ,需要依个人的需求来做整个空间设计。面图:
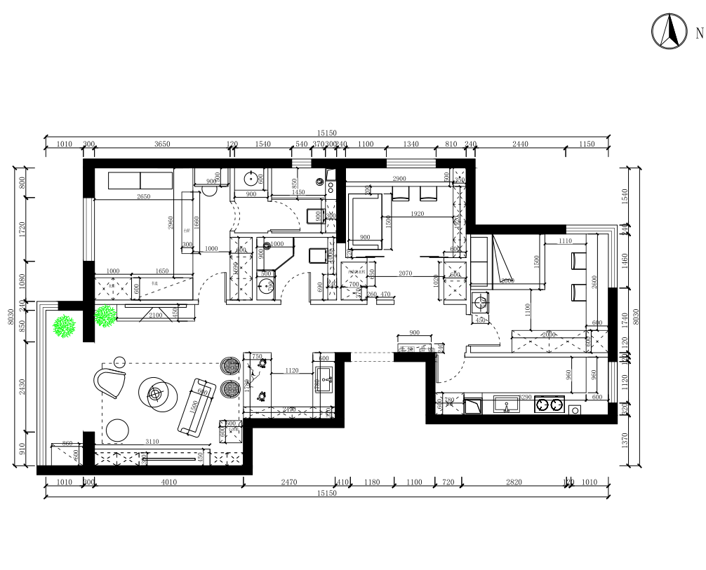
最终平面布局图:
整体看来,格局没有太大改变,实际全屋轻体墙都有拆改。
原始门厅过道宽1510mm,改后过道宽度是1300mm,这个宽度功能和舒适性都能保证。因为改小了一点点,并且希望空间能有通透性,门厅对面的书房用了借景的设计手法,比原来1.5米的门厅更通透,完全感觉不到压抑,上次见到朱先生时,还专门告诉景森设计师,朋友很喜欢门厅的借景设计,还说下次装修也借鉴这种借景的手法。
格局改造
主卫——卫生间一分为二
原始是一个卫生间,需要把卫生间一改二,在原有的基础上,分别向左主卧方向移动800mm,向下门厅方向移动210mm,空间足够后,接下来面临最大的困难是只有一个马桶排水口,怎么排两个马桶的下水?还需要考虑马桶不堵的问题。
考虑过三个方案:1.抬高地面,两个马桶共用一个地排水;2.一个马桶用原有的地排水,另一个用壁挂马桶排到主管道,走墙排水;3.两个马桶都是壁挂马桶,都走墙排水。最终选择的方案三。
门厅——借景增加通透性
门厅对面的书房做了一部分开敞空间,有空间错位,使视觉更有通透性,这是一个借景的设计手法。实景图片没有拍出这种感觉,这也是这套实景中遗憾的一个小点(效果图借景效果更好一点,下图插一张效果图)。
(效果图)做了进深700mm洗衣房,标准洗衣机进深是600mm, 预留足够空间安装洗衣房门。
右边两扇门的悬空柜是门厅柜,常穿的鞋直接放在最下面的开放格中。墙体与书柜中间的缝隙是安装推拉门的位置,推拉门在定制中,一个月后安装。
西厨+客厅
沙发背后分色墙高度距地1米,岛台高度1.1米。
蓝色沙发旋转15°角度摆放。沙发后面是距地400mm的地台,兼具了收纳和休闲的功能。
西厨
岛台预留了200mm放腿的空间。
西厨
客厅+西厨的空间有20平米,壁挂空调或落地空调都无法满足这么大空间的制冷效果。在客厅中安装了风管机,地台上方是风管机的出风口。
中厨
主卧
主卧做地台床的形式(地台高400mm),还有一个长1.6米的衣柜,主卧收纳完全够用。
主卫
淋浴区地面用大理石铺贴,中间高,地漏流水区在四周,中间是一整块石材,周边用切成条型石材做下沉式漏水区。这样的铺贴方式比传统的四周斜坡式地漏流水更快。
施工小插曲:
由于主卫和客卫只有一墙之隔,主卫还提前预留了智能马桶盖的进水口,施工中忘记预留上水口,这样做完的后果,马桶只有下排水,没有上进水。补救方案,把智能马桶进水口改为两个进水口,分别为马桶盖进水口和水箱进水口。
次卫和家里有所有的风格都不一样,张女士喜欢东南亚风格,希望家里有一点度假的感觉,所以墙面和地面用了比较有原始感觉的石材,配上原木色浴室柜,做成东南亚风格卫生间。
合影
从左到右依次是业主、景森设计师。
听过几次景森分析案例,他给到的感觉是从整屋大局观考虑舒适度和动线,他的习惯是在前期分析平面时,假设全屋无轻体墙,再根据生活习惯增加轻体墙,上个月刚发景森的两套案例,都能看出设计师不被原有格局束缚,跳出原有格局重新规划。
和景森聊方案时,能感觉到景森考虑到很多生活小细节,用设计手法,改变生活方式。比如本案例厨房墙面玻璃工艺、吧台或岛台会预留放腿位置、不以看电视为主的客厅,会考虑转动15°的沙发方向,交流方便。
本期案例介绍完毕
感谢观看~
最后附上带尺寸的完整平面格局图
- End -
~版权归作者JORYA玖雅所有
客服
消息
收藏
下载
最近































