查看完整案例


收藏

下载
低饱和度色彩,色彩融入生活
从入门处玄关的一白及顶到铺满全屋地面的燕麦长砖,从客餐厅组合沙发的灰蓝基色到厨房中岛的木质条纹,采用低饱和度的莫兰迪色系,使整屋给人以观感上的清爽耐看和恰到好处。同时,点缀黑色用以诱发视觉聚焦,如在客餐厅与书房空间纵横布局的轨道灯带、铁艺镂背座椅和高低错落的意式组合茶几,宛若在美人如凝脂白玉的肌肤上略施粉黛,用色彩冲突的线条、色块让原本素雅的空间顿时有了“妆容”,生出灵性。
在设计师的匠心调色下,一个2000尺的复式住宅,让在外奔忙劳作一天的屋主回到家即可见到生活的质感,便能触到浓情的家味。
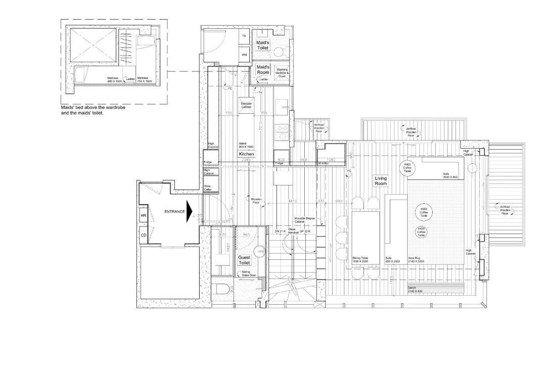
房子总体格局是动静分离的,即是将室内活动空间和休息空间区分开来果。作为复式户型,动静分离相对直接明了,楼上是动区 ,楼下是静区。
先看动区,入门处,白色玄关左侧是厨房和佣人房,右侧是客厅。厨房采用了半开放式设计,西厨中岛就像变形金刚一样好用,满足了屋主对于料理、收纳、轻餐、社交,甚至拆快递箱,所有对于厨房的功能想象。在厨房内部就是佣人房,并配套有卫生间、洗衣房。在这里需要提出表扬的是,设计师考虑到全屋的动线流畅和功能衔接,为厨房设计了双动线(入门玄关一条线,客厅一条线),避免了佣人买菜、晒衣经过客厅的尴尬,做到了两个空间的既相互连同又互不干扰。
进门右手是一个可移动的镂空展示柜,巧妙的将门厅与客厅做了若隐若现的物理隔离。作为全屋日常起居娱乐活动的中心,这个空间实则是把客厅、餐厅、内嵌阳台完全融为一体,化繁为简,这也是摩登现代风格的主要特点,本案的房屋设计思路偏重催化简约与奢华的和谐共生。除了上文提到色彩搭配采用低饱和度为主色调以外,在材质上搭配了很多木饰纹和金属线条,在照明上采用了无主灯的设计,配合着质地或柔和或精巧的生活实物与艺术饰品,在整个空间营造出精神通透、奢而不华的素雅氛围,所传达的并非屋主的家资巨富,而是淡泊的生活格局。一句话:拼的不是颜值,而是内涵。
广角度高楼层,城景映入生活
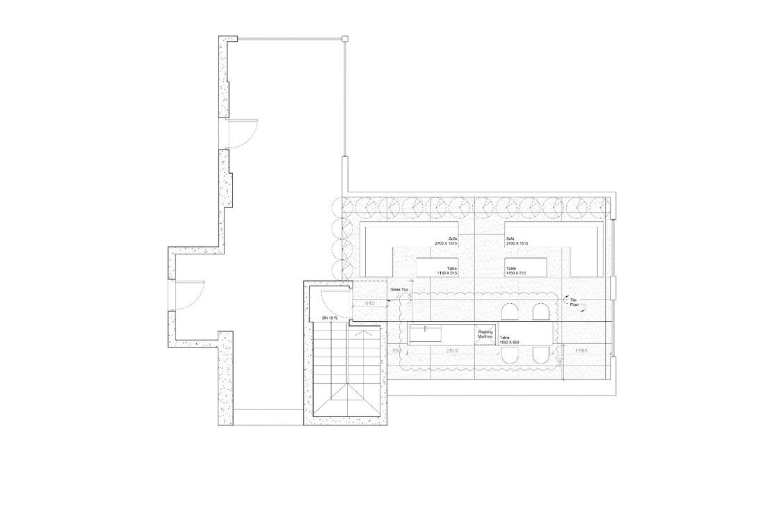
品鉴优质住宅,必须坐拥广阔无遮挡的视野。从生活在270°三面采光的高层住宅,无论任何时候、任何角度,从晨曦到日暮,逢响晴薄日或遇细雨婆娑,只要屋主向外远眺,仰头即可观宇宙之大,俯瞰便可插品类之盛,从九龙半岛与香港岛的隔海相望,到港式街坊之间、楼宇之下的人烟熙攘,皆尽收眼底。
客餐厅方方正正、无遮无拦,为270°视野的多角度采光观景打开排面;北、东、西三面全都是落地大窗户,薄进深、大面宽,保证全屋空气流通的同时让采光也循环起来。与家人或好友在窗边的沙发和条凳随意围坐、促膝而谈,享阳光、浸清风,感受时光的温度和人情的温暖。
楼上的屋主卧室和书房,依旧是三开面的落地窗,依旧是无死角的全采光。无论晨醒时分亦或者午夜之前,打开窗帷,你会发现这座城市最经典的画面已经等候窗前。眼中饱览四季美色,心中细品整个城市更新迭代的强大生机,仿佛自己就是这座城的中心。
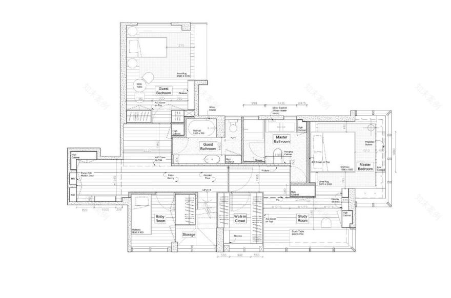
入门右手下楼整个静区呈现在眼前,三房两卫的格局,与动区相同的面积,由于区域功能划分相对单一,设计师巧妙地埋下了较大的空间留白,这让卧眠与梳妆这种私密性很强的生活细节在温馨感和仪式感上都拿捏得刚好。主卧是整个静区的核心,书房型卧室的形制,面积占了整层的近一半。打开主卧门,右手是一个全明步入式衣帽间,柜门打开你会发现收纳功能分隔很灵活,结构层次很分明,储物空间很完整;过衣帽间便是主卫,依旧是全明带窗的,双台盆、淋浴间、大浴缸,尺度很舒服,细节很到位,该有的都有了;卧房藏在开放式书房的深处,全景的落地玻璃幕墙,外延式的飘窗设计给人一种起居、学习、办公都飘在云上的错觉。
随着80、90后开始在社会上担纲栋梁,在职场里崭露头角,在家庭中撑起责任,代表着他们价值将引领未来香港的主流。现在的房屋设计者也越来越关注香港中生代阶层的审美和习惯,这将成为趋势。对于中坚力量的他们来说,再好的房子也只是房子,而家才是辅助情感与认真生活的地方。理想的家之于他们的很简单,烟火气,人情味和生活感,生活港湾和灵魂居所。
项目名称:九龙耀爵台
设计公司:Danny Cheng Interiors Ltd
主设计师姓名:Danny Cheng 郑炳坤
完工时间:2019年
项目地点:香港
项目面积:2000平方呎
工程主要材料: 砖,铝质钢材,木,云石, 玻璃等
客服
消息
收藏
下载
最近























