查看完整案例


收藏

下载
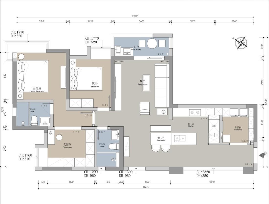
原户型核心bug
1.承重结构基本上就已经把动静分区给框死了
2.入户阳台、储物间和厨房空间比较封闭,和餐客厅空间基本没有关联性
3.房间通道狭小。
业主的核型需求是:1.提高入户阳台、储物间和厨房的利用率和互动性
2.打造一个完整主卧衣帽间,留一个次卧即可,让主卧显得更大一些。
规划后的平面:1.把入户通道的宽度压缩到1.5米,调整厨房和储物间的空间比例
2.打开厨房空间,岛台和餐桌连接,形成一个环绕式的餐厨动线,让通道和开放厨房自然结合在一起
3.主卧房门位置外移,衣帽间做吊趟玻璃门尽可能去敞开空间
4.将主卫的墙打出一个L型窗洞与门洞衔接,把窗台高度留到60cm,在视觉效果上延伸主卧的大小
玄关
原来的入户格局真的是宽到能跑马,将厨房和储物间墙体整体拆除,重新规划。
▲效果图
▲实景图
玄关封窗比例根据电梯最大尺寸来定制玻璃规格,真心废了老大劲儿才给弄上楼的,中间一整面采用电动中空百叶窗,遗憾的是窗外这景就对着隔壁的外墙。。。。。血亏,不过重点是窗户的五金用的是旭格的,对付附近列车行驶的噪音算是相当给力。
储物间
储物间为综合收纳空间,用色尽量留白显得整洁,把洗衣机和烘干机布置在空间中间位方便操作、右侧到顶的柜子下层部分收纳鞋子、上层部分收纳清洁用品和小件物品、猫主子的吃喝拉撒也都在这里解决。
这款落地镜是英国设计师品牌Square roots的,照镜子时总感觉自己站在一个大写的L上~
岛台正上方有一条大梁,就根据岛台尺寸做了一个造型的吊顶岛台台面和见光面用了德赛斯的雪花白岩板延伸到四周与地面无缝衔接,干净利落不留死角。
厨房和餐客厅的通道位置预留了90cm,岛台和地柜通道留了110cm,将水盆和灶台错开布局操作动线上就比较顺畅
原厨房利用率相当低,台面放个电饭锅就几乎没有切菜区域。
为了能在高柜处放入嵌入式直净水机和恒温酒柜并增加收纳空间,我将下水管移位到墙角位后再预留坡度砌地台接回下水管底端
调整后的橱柜利用率拉满,日立的镜面双门冰箱、嵌入式直饮水机、恒温酒柜、烤箱还有洗碗机能全给塞进柜子里来了
餐厅
Square roots的餐桌细节处还用了蝶形燕尾榫加固桌板,将古典技法注入新颖的设计里、和边柜的组合注入了一些工业元素。
flos的玻璃吊灯离地1.6米高,内侧用白砂玻璃罩住guang yuan,坐着吃饭的时候光线均匀柔和。
业主说他当初买这套房子一个重要原因就是应为他特别喜欢餐厅窗户傍晚阳光洒进来时的感觉,很温暖,在高层空间也能感受到自然的美好,绿植的选择上考虑配色协调用了三色铁,这幅挂画《天堂潮汐Tide of heaven》是某宝Jellypaint家买的,油画细节的层次和肌理感就像潮水一样真实。
客厅
硬装材质上整个公共空间墙面用了科定的科技木木饰面K6333,留缝3mm,平时业主在家习惯是光脚活动,所以地面材质就用了欧文莱900x1800肌肤釉面的大板砖。
客厅的这套法国B.N的组合沙发长度2.96米,料子是进口的头层苯胺皮,触感粗犷,坐感软硬适中,业主说他平日里下班回家就喜欢躺在沙发上陪陪猫儿子们,葛优躺着休息。然后在沙发上一觉到天亮就给整落枕了。
客厅的宽度为368cm并不算宽裕,茶几选择了B.N的双拼大理石款,尺寸110*47cm刚好合适,给活动动线留下足够大的尺寸
客厅空间的灯光设计的是非常克制的,只在该亮的地方亮,因为空间的层高只有2.7米左右,就没有做平顶,灯具和光源主要用明装射灯、吊灯和台灯色温控制在3000-4000K。在夜晚营造出非常舒适放松的光线环境。
走道
图为师傅在安装房门,整个空间的材质收口我遵循的基本原则就是自然拼接,类似图上的木饰面与瓷砖就在同一平面拼接,避免在阴阳角去做减少不必要的收边条。此处的施工顺序是:铺贴瓷砖—墙面打木基础(预留出木饰面的厚度)—安装房门—贴木饰面。
铝木生态门的里面是这个样子的
次卧平时不常住人功能布置的相对简单,软配一副经典肖像画就够hold住全场了,衣柜买的是宜家的帕克斯系列,高度与吊顶之间刚好留出了3cm左右
主卧
主卧的背景墙木饰面板用了的科定的天然木皮系列K6182PN金丝柚钢刷自然拼,小面积的木纹变化也是自然立体,木纹清晰可见,卧室空间的灯光设计依然相当克制主光源只留了吊顶的L型灯带,氛围光用床头台灯、吊灯和床尾的小射灯打亮挂画和边柜台面。
由于飘台是一个L型的结构,导致原来背景墙这里有一个缺口。
后利用开放柜将缺口补上,也增加了卧室的展示空间显得背景不会太呆板。主卧和卫生间的玻璃隔断用了电雾玻璃,毕竟某些场景下朦胧一些更美。
转角衔接到玻璃门的做法可以让空间延伸感更强一些,但代价就是收口相对就麻烦一些。为了避免铝合金边框和墙体之间缝隙开裂,在卫生间整面墙体都做了石膏板基层找平并收口。
这个背景墙的离地1米高的吊灯,角度刚好不会照到眼睛。
暴力熊果然还是广大业主门的心头爱呀。
床尾中古柜台面是用玻璃层板,业主平时会放一些手表、护肤品和小首饰,拿取的时候会比较方便选择。吊钟选了灵动飘逸的款高度70cm左右与抽象画在色调和造型上相得益彰。边上的梯型衣帽架平时会放常穿的衣物,实用并不占空间
衣帽间
平时衣帽间的玻璃门都是收起来的,从客厅或是主卧进出都会方便很多,只有开空调的时候才会关起来。整体衣柜的门板用偏灰的浅卡其色、肤感漆的材质。这款LG的衣物护理机是业主强烈安利的电器,平时大多数衣物都可以往里塞,第二天拿出来就变的整整齐齐丝般顺滑了
衣帽间傍晚的阳光
卫生间
卫生间淋浴隔断简化了门,只留了70cm的尺寸,平时使用时会有少许的水溅出来,业主也是可以接受的。
业主:给设计师来一杯卡布奇诺
cola:我也要
设计师:好喝~
cola:好吃~
Judy:我还是喜欢躺着里做个安静的美男纸
客服
消息
收藏
下载
最近








































