查看完整案例


收藏

下载
原始平面图
一楼平面面布置图
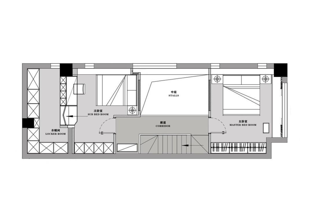
二楼平面布置图
楼梯是一所建筑中的“建筑”,赋予室内空间“有机”空间。玻璃材质让视觉穿透,透过“空间”看空间,延续空间的秩序感。
客厅空间调高,实现一层和二层空间上的互动和层次感的延伸,阳光从窗户照射进来,暖暖地铺满整个空间。
二层的卧室做一面大的窗户,增加卧室采光和通透性。
餐厅和客厅的无缝衔接,舒适且自然,合理利用所有空间。
餐边柜与水吧台的结合,完美的避开采光入口,保证采光的条件下,实现了空间最大利用率。
二楼主体木质与纯白的结合,安静柔和。
主卧利用窗体厚度延伸台面放置物品,实现空间利用最大化。
女儿房利用厨房上升空间做了一个小小衣帽间,储物空间最大化。
客服
消息
收藏
下载
最近





















