查看完整案例


收藏

下载
原始结构图
1.原始结构,包裹式暗厅,采光差、通风差、动线混乱。
2.主卧室客卫之间的鸡肋式小黑屋储藏空间,利用起来非常不方便。
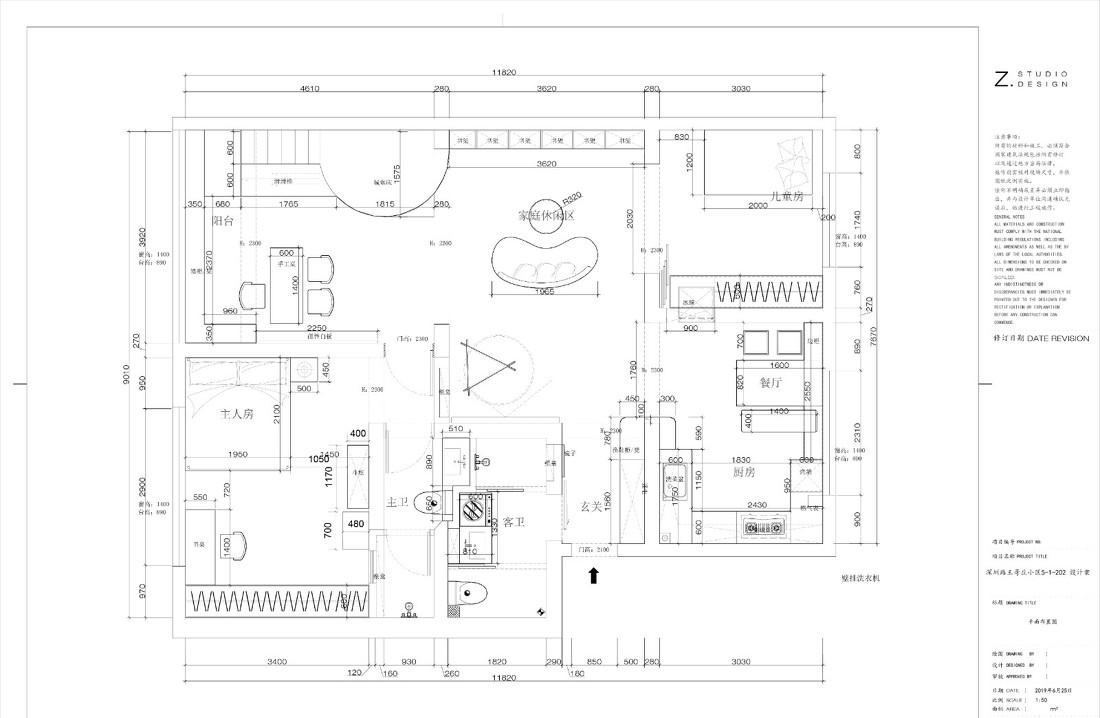
平面布置图
1.利用下沉式卫生间的优势,借小黑屋式的储物间,改为给主卧室单独使用的主卫,
增加采光窗。客卫改为三分离结构,同时满足两个小朋友的使用。
2.打通客厅和南北卧的原采光窗位置,增加中厅采光、通风。改善原有户型动线,包容性又相对独立式空间结构,给家人亲密又独立的氛围。
3.北卧室原有门位置改为冰箱位,墙体改为三联动的推拉门,使空间相互独立又互不打扰。
4.厨房和餐厅做成一体式,增加厨房的利用率,使空间更加通透。5.借用原主卧室门洞位置,增加阅读角落,形成客厅小的视听娱乐区。
业主最爱的书架墙,细节斟酌了无数稿定制了这个长3.6米的书架,让家里的书们终于有了自己的地方。借用书架上方的空间,藏了风管机。
书架墙连接蘑菇房子,客厅留下大部分活动空间,形成环岛型空间结构,方便孩子行走跑跳,减少磕碰。
空间相互连通又各自独立,墙角阳角处细节上都做了圆弧处理。
从玄关看向餐厅
入户的大卡座,也方便大人孩子坐下来更换鞋子,与厨房连接处增加了储物空间。
卡座上方设置了洞洞板,舒缓空间节奏,减少柜子的拥堵感。
借用原来北卧室门洞位置,使冰箱比较隐蔽的存在。1.6米的餐桌可以局部放置在餐边柜下面,人多可以抽出来。
把南侧卧室纳入客厅后采光充足。借用原有主卧室门的位置,设置了一组收纳架, 孩子可以随时坐下来玩耍的休闲小角落。主卧室凸出的承重墙体也做了圆弧形处理,在造型上弱化墙体突兀感。
模拟灯光的三角形乳胶漆分色设计, 使空间不大的此处区域形成聚焦感,强化空间存在。
将南次卧打通后,设置了孩子们最爱的蘑菇屋,可以玩耍休闲,也可以拉上帘子作为城堡卧室。
现场木工制作,从施工阶段就被孩子们爱上,每次和爸妈去工地都不想走。
墙面做的磁力黑板漆,孩子可以自由的画画,贴喜欢的东西。颜色特殊选择定制,增加空间层次,也不会突兀。
南次卧打通后还承担了书房的功用,父母可以在这里陪伴孩子,孩子也可以在这里制作手工之类。靠窗位置定制了玩具收纳架。
快乐的两小只
孩子说二楼是贝壳房
从城堡看对面,收纳小零碎的白板和洞洞板
窗子下面做了敞开式的格子柜,方便孩子们自己归类取放、收纳整理。下层定制带轮子盒子,轻松随意拖动。
QUESTION & ANSWER
Q & A
Q:装修过程花了多长时间?
A:十个月,中间有跨年疫情。
Q:说说是什么给了你灵感,打造出现在这个作品的?
A:孩子不是大人的附属品,在成长环境里,他们应该有属于自己独立的、不受束缚的空间。
Q:你对这套作品最满意的地方在哪里,为什么?
A:蘑菇屋的打造。
Q:对平面布局做了哪些优化改动,为什么?
A:打通客厅和南北卧的原采光窗位置,增加中厅采光、通风。取消一间卧室的同时增设了蘑菇屋和书房,满足二胎家庭的使用需求。
Q:回头再看这套房子,设计当中有什么遗憾的地方吗?
A:北次卧儿童房应该坚持让业主用极窄的推拉门。
Q:为了满足客户的个性化需求,你在设计过程中做了哪些事情?
A:重新完全的梳理了空间。
客服
消息
收藏
下载
最近
































