查看完整案例


收藏

下载
建筑面积60平,南北通透~,是很典型的北京长条老房子,因为我们总是会遇到类似的户型,尺寸也几乎相同。
整屋格局
原始平面图:
房子的原始结构是两室一厅(餐厅),全屋又都是承重墙,室内的格局有一些缺陷:入户正对卫生间门;主卧面积又比较大,导致没有客厅空间;餐厅也有仅6.4平米。
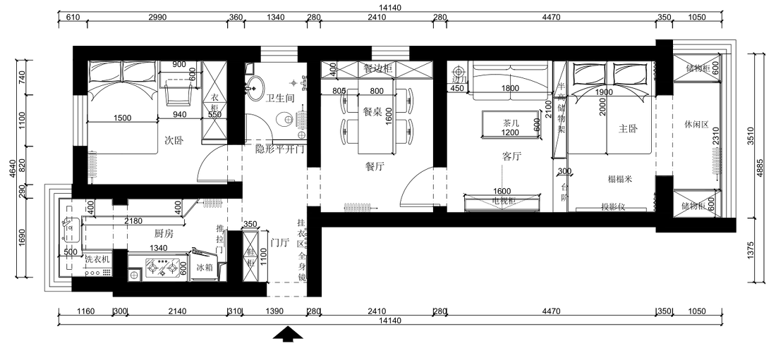
最终平面布局图:
老人和夫妻动线互不打扰
原始主卧隔出了一间客厅,原始客餐厅之间有一道墙,周六日业主想睡懒觉时,同时能满足父母在餐厅、厨房、卫生间、次卧活动,年轻人和父母的生活习惯互不打扰~
格局改造
巧用空间:主卧一分为二,打造客厅+卧室
用卧室一半面积做成客厅,又面临新的问题——收纳空间不够,于是在主卧选择安装榻榻米,即可收纳又不占空间,还把阳台做成了休闲区+工作区,进入阳台左边是工作区,右边是收纳柜。收纳面积=榻榻米+储物柜=10.05平米。
门厅定制柜,中部放包和钥匙,下部放常换鞋。
卫生间做的是隐形门,在考虑安不安门把手时,还小纠结了一下。选择隐形门目的是解决入户门正对卫生间门的问题,为了完全隐形,最后把门把手也取消了,卫生间做成按压回弹式外开门。
从门厅角度看向卫生间,很像通顶衣柜,化解了门对门禁忌。
附:按压回弹开门选用全屋定制厂家,隐形门效果和柜体一致。木门厂家一般不做回弹式开门,木门厂家的隐形门效果更偏向与墙体一致。
考虑到卫生间面积比较小,尽量利用的墙面收纳,留出地面空间。在包管道的拐角处,做了墙面隔板收纳,巧妙利用了窗户与暖气片的空隙。
6.4平米的小餐厅,只放了餐桌餐椅、冰箱和五斗柜,没有其他多余的家具。选用高度1.5米以下的成品家具,没有定制高柜,这样不挡视线,能让空间显得更大一点。
把冰箱放到餐厅,这样缓解了厨房的收纳压力。
朦胧柔和的光线透过竹帘洒进来,室内与室外相连通,让空间和视线由室内延伸到室外,还能起到从视觉上扩大空间的效果。
#竹编窗帘
藏蓝色的日式纹样桌布搭配一束枯枝,岁月流逝后,自然的材质让人觉得更加耐人寻味。
#竹编灯
半明半暗的光影,展现了日式风格的朦胧含蓄之美。
竹编窗帘、竹编灯、少言桌摆。
改变客厅的格局后,和朋友的聚会频率也增多了,在沙发和榻榻米台阶上可以坐六七个人,马小姐很喜欢这种半围合的方式聊天,有时也会在家唱K。
沙发到电视的距离有3.5米长,这正好是50寸电视的标准视距,电视下方放了成品收纳柜。
榻榻米隔断外立面尺寸
卧室的方向是南向,所以榻榻米与客厅做了半高隔断,也不会影响客厅的采光。
既是梳妆台又是收纳柜区,平时备用化妆品是放在这里。
台阶处做抽屉式收纳,榻榻米上面做翻盖式收纳。
阳台改成了工作区
书桌和榻榻米一体定制的,显示器上面做开放收纳格,在没有减少收纳空间同时,做出了一人办公区。
父母偶尔过来住会住在次卧。做了一排进深550mm柜子,比常规柜子进深减少了50mm。
把厨房扩充到阳台,做成了U型操作台。
U字型操作台最完美的厨房布局,利用率最高,厨房总宽是1800mm,操作台面是600+400mm,虽然中间过道仅有800mm ,比较紧凑,但是却保存了充足的台面空间。
本期案例介绍完毕
感谢观看~
最后附上带尺寸的完整平面格局图
- End -
~版权归作者JORYA玖雅所有
客服
消息
收藏
下载
最近




































