查看完整案例


收藏

下载
格局改造
原始平面图:整体点评:很标准的手枪户型,三室一厅一厨两卫,全屋几乎没有承重墙,看似改动性很大,但有7个窗户,基本由窗户来决定空间功能的划分。三个卧室并排一列,造成过道过长;主卧没有放衣柜的位置;门厅没有收纳空间。
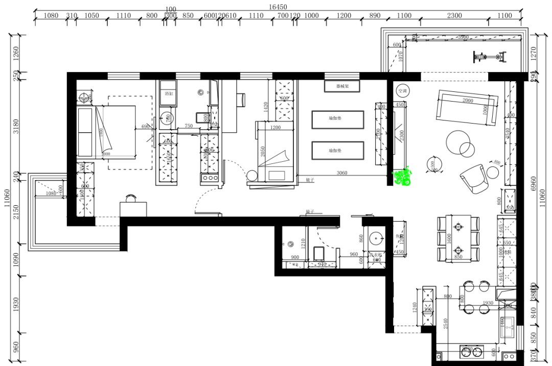
最终平面布局图
客厅以沟通交流为主,厨房、餐厅、客厅、阳台四个空间打通,相当于把活动区的所有的空间都打开了,虽然空间是敞开的,但每个空间又是独立的。四个空间可以相互对话,又相互独立,逐渐过渡,形成整体。
格局改造
1 .巧用空间:主卫一分为二,打造衣帽间
卫生间外移0.25米,主卧多出一间衣帽间。
方正的卫生间,完全利用人体工程学最小尺寸。做了小浴缸、淋浴、马桶、洗手台,卫生间标准四件套一样也不少。
卫生间和衣帽间的平面尺寸(单位:mm):卫生间:1700*2000、浴缸:1000*650、台盆:700*600、淋浴:900*900,马桶:800*900。
衣帽间1650*2000、左边衣柜:1650*600、中间过道:800、右边衣柜:1300*600。
2.把过道融入健身室
原始户型仅仅是一个通往主卧的过道就有5.8米长(心里默默的算了算又浪费了6平米)。设计师把进入健身室的一面墙拆掉,并把镜子安装在过道墙上,这样就把过道融为健身室的一部分。在儿童房对面过道的墙上刷了黑板漆,儿童房的过道也被利用起来了。
3 .改变厨房入口方向,增加门厅柜
原始户型,没有门厅柜的位置。厨房改为半开放厨房,并且改变厨房入口方向,给门厅留出独立空间。
4.阳台弥补客厅收纳
阳台内墙做了一排进深200mm、长3.9米的收纳柜,全家人的鞋都放在这排柜子里;阳台左侧做了600mm进深的长靴收纳柜。这两组柜子高度都与窗台齐平。
在落尘区选择了一款黑白条纹的地毯,颜色和空间相呼应,柔化了造型硬朗的门厅。
既不同又相似的餐椅
王先生很喜欢温莎椅,所以找到了风格一致,但又有微小差别的椅子,总共买了6把风格相似的椅子,其中一把放在卧室。
餐厅与客厅之间,放了红酒展示柜,也是客餐厅的视觉隔离。
黑色酒柜、两把黑色餐椅、冰箱上方黑色吊柜,这三处做了颜色呼应。
厨房包完烟道多出480mm宽的墙垛,并顺着烟道做了与之宽度相等的吧台,吧台下面柜子进深是300mm,留有180mm放腿空间。
整个厨房以白色为主,黑色、木色作为点缀,水槽和水龙头也选择的黑色。
客厅——非常规摆放客厅三件套
沙发倾斜10°摆放,躺在沙发上看电视,角度很舒服。沙发背后是餐厅。
客厅区域用沙发、坐垫围合了一个小空间,朋友聚会时可以坐在地毯上喝茶聊天。整个空间以交流为主,而不是以电视为中心。
电视上方的吊顶内做了投影幕的凹槽。
平时也可以围着小桌,坐在地毯上,背靠着沙发,看书休息。
健身室——卧室改为开放的健身室
用一间卧室做健身室,可同时容纳2-3人健身。
站在健身室窗户方向看向卫生间。
过道——利用视错觉破解狭长走廊
设计施工改造前的走廊——5.8米幽暗狭长。
改造后的走廊——视觉上增大了不止一倍,开阔明亮。健身室对侧的过道做了一面镜子。站在健身室看向主卧,左边镜子里的通道把我们的视线引入了另一个空间。右边健身室镜子里看到的开阔的健身室全景。
空间迂回右转,仿佛能通向无尽远方。
从健身室看向主卧。儿童房过道墙上刷了黑板漆,这里已经不是暗黑狭长过道了,变成了儿童画画玩耍的小天地。#蝴蝶椅
走进主卧,可以通往生活阳台(也是晾衣区),过道处做了4盏筒灯,床上是一盏吊灯。主卧带有生活阳台,主要是休闲和晾晒衣服,生活阳台也做了长1080*进深600mm的通顶收纳柜。主卧床头方向做了长1500*进深600mm的收纳柜,面向床一侧是开放柜,可以做床头柜使用,放一些日常随手用品。
纯实木定制柜,纹理清晰可见。
床头柜上方的吊灯看不到光源,只有一团柔和的暖橘色。
主卫——主卫外面是小型衣帽间
从主卫看向衣帽间方向。把原主卫一分为二,外面衣帽间,里面是卫生间,中间用磨砂玻璃门隔开。
布局紧凑的卫生间,造型和颜色非常极简克制。
次卫——干湿分离
进门是干区,门后没有拍到的角度是洗衣机,在这里洗衣服,去主卧生活阳台晾晒衣服。
从左到右依次是景森设计师、业主、助理、汪松明工长。
摄影师:高腾云
本期案例介绍完毕
感谢观看~
王先生和景森设计师配合的很默契,接纳彼此的偏好,并将其融为一体。原本夫妻二人喜欢北欧原木风,但在后期与设计师沟通中,对现代黑白灰的感觉也颇为喜欢,于是后期原木元素减少了一些,黑白灰的元素呈现的更多。最终呈现出了既容纳了屋主的喜好,又带有设计师个人特点的极简风格。
最后,再附上王先生的随手记装修花费,供大家参考。
- End -
~版权归作者JORYA玖雅所有
客服
消息
收藏
下载
最近
















































