查看完整案例

收藏

下载
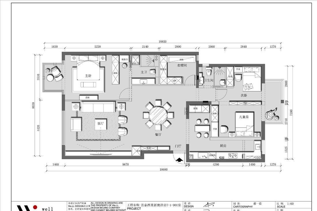
为了达到空间的通透性,进门处不做独立玄关空间,依附墙面规划出换鞋凳、穿衣镜、鞋柜、衣帽柜等收纳区,保证空间的实用性。餐桌选用圆形是为了是空间动线更流畅。
In order to achieve the permeability of the space, the entrance does not do independent porch space, attached to metope planning to change the shoe stool, wearing mirror, shoe ark, garment hat ark receive an area, ensure the practicability of the space. The table chooses circular is to be a space to move line more fluent.
如何让空间保持整洁,想必得先把收纳空间规划好,然后养成良好得生活习惯;起居室也是如此,这个空间将承载着整个家庭人员不同得琐碎物品,如果没有收纳空间,那起居室就很难做到整齐。
How to keep the space neat, presumably to receive space planning, and then develop a good habit of life; Living room also is such, this space will bear the trifles that whole family personnel is different, if do not receive a space, that living room does neat very hard.
当壁炉的火光伴随着树叶浮动,空间多了几分静谧。
When the fire of the fireplace accompanied by the floating leaves, the space more quiet.
厨房中吧台可以作为简餐或早餐使用,也可以在忙碌时作为操作台面。在厨房中设置了大小双水盆,远处窗户下的小水槽主要用于清洁时候使用,与菜盆分离。
The kitchen counter can be used as a casual dining or breakfast, or as a countertop on the go. Double-sized birdbath is set in the kitchen, and the small sink under the distant window is mainly used for cleaning, separated from the dish basin.
主卧室床和卫生间门之间用衣柜进行阻隔,利用过道尽头处空间设置了梳妆台。主卫空间整体使用暗色调营造沉稳的氛围。
Advocate between bedroom bed and toilet door have cut off with chest, used the space at the end of corridor set dresser. Master defends a space whole to use dark tonal build composed atmosphere.
儿童房是互通的两个空间,中间位置用书柜进行分隔,书柜细部也是朝两个空间进行划分,保证两个房间都有足够的书籍储放;为减弱方形柜体的厚重感,我们使用曲线的元素使它相对轻盈一些。
Children room is interoperable two Spaces, intermediate position undertakes space with bookcase, bookcase detail also undertakes dividing toward two Spaces, make sure two rooms have enough book to store put; To abate the heavy feeling of square cabinet put oneself in another's position, the element that we use curve makes it relatively lightsome.
两个房间都分别设置了书桌,这样的划分是考虑到年龄差在学习时候不相互干扰。
Both rooms have separate desks, which allow for age differences that do not interfere with learning.
床的对立摆放能够达到相对的私密性,让使用者有相对独立的空间感。
The opposite of the bed is put can achieve opposite illicit close sex, let user have relatively independent dimensional feeling.
阳台处为共享空间,我们将原窗户进行跟换,把两侧设置为开窗通风,中间用两面落地玻璃使得视野更为广阔。
The balcony is a Shared space. We change the original Windows and set the two sides as open Windows for ventilation. In the middle, we use two sides of French glass to make the view wider.
洗漱间在瓷砖的选择上使用浅色大砖,这样的处理方式可以让小空间显得干净敞亮;在洗漱台位置墙面用花色岩板做局部装饰点缀。
Washroom USES light color big brick on the choice of ceramic tile, such processing means can let small space appear clean and clear; Metope of the position that wash gargle stage USES design and color lithograph to do local adornment to adorn.
独立衣帽间设立于三个卧室中间,这样的划分便于整个家庭人员衣物储放;衣帽柜中设立墨菲床,有客房需求时候可以将床放下使用。
Independent cloakroom is established in the middle of 3 bedrooms, such division facilitates whole family personnel clothings is stored put; A Murphy bed is set up in the wardrobe, which can be put down for use when there is room demand.
客服
消息
收藏
下载
最近





























