查看完整案例


收藏

下载
达芬奇说:“简单是终极的复杂。”极简,是一种生活方式,放下繁杂。
丢弃旧思想,让生活简单极致。
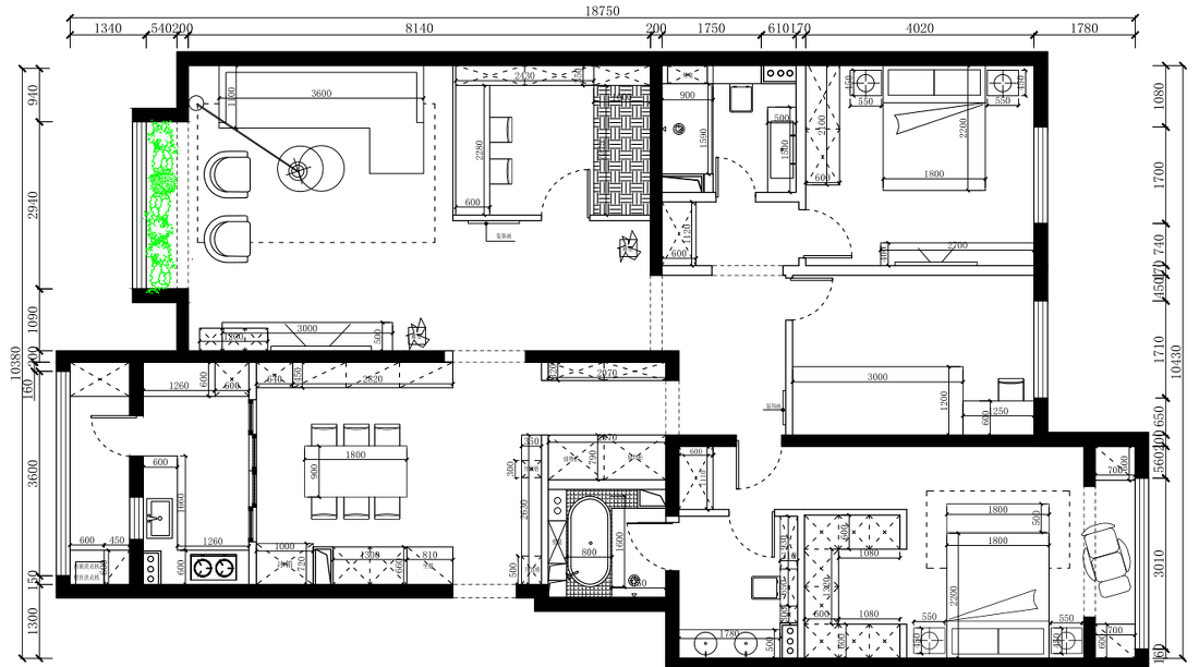
整屋格局
原始格局
原户型是165㎡的三室两厅,改成了四室两厅还增加了洗衣间,在大房子中新增加独立空间,还不能丢失了大房子优势——空间通透性,甚至要越改越通透。布局大体上符合屋主的心意,对房屋仅有2处小调整:1 . 门厅没有放门厅柜的空间;
2 . 餐厅偏小,采光不好,并且门厅与餐厅空间交融。
虽然实用功能上没有太多缺憾,但是少不了精神层面的享受,所以家要有自己的特色——希望家中可以有书房、有独立餐厅空间避免与门厅交叉、主卧有衣帽间、主卫要干湿分区和1.6米大浴缸、要有独立洗衣房等等。
最终平面布局图如下:
格局改造
1 . 墙体拆薄120mm,多出一排门厅柜
原门厅厚度240mm的墙面上有强、弱电箱,能拆成厚度仅有120mm的墙体,你信吗?
首次看到户型图时,以为进门左边真的做不了门厅柜呢,还考虑过把门厅柜做到餐厅,但实际量房时,发现厚度240mm的墙体居然是轻体墙,把原有墙体拆除,新建最薄墙120mm还要能承重挂柜子,墙体一拆一建多出了120mm,如此一来,就有了门厅柜空间。
2 . 向厨房内推一米
餐厅采光不好还偏小,拆除了厨房与餐厅之间的墙体,向厨房内推1米做了玻璃隔断,不仅解决了餐厅的采光问题,而且还放下了6人餐桌。
3 . 增加书房,依然保留通透感
4 . 拆掉一面墙,杂物间变过道
上面一条是客厅到卧室的过道;
下面一条是餐厅到卧室的过道。拆掉杂物间,多出一条动线。肯定会很多人指出,设计的目的是缩小过道空间,这样的设计是背道而驰,但是在做好收纳之外,还需要流畅动线,展现每个空间的独立性和相融关系。
5 .收纳小技巧——合理利用门后空间
门后进深空间大于350mm时,利用门后做成收纳柜或展示柜,进深大于600mm可以做成标准收纳柜,挤一挤就能多出1米长的储物柜。
门厅——通透
从门厅看向客厅:有熊猫装饰画的墙体是书房,还兼顾了门厅影壁墙,用作遮挡视线。门厅正对面餐区选用了低餐边柜,而放弃了做通顶高柜,做到了视觉上的延伸,门厅通透来自多空间相互映衬产生的氛围。
餐厅——暗厅改造后引进了自然光。
顶天立地定制柜边上留出了进门换鞋凳位置。
餐桌的一边是低餐边柜,摆放装饰品和储藏盘、碗、酒类;餐桌的另一边是通顶定制柜,镶嵌了双开门冰箱和不能移动的烟道管;客厅的对侧,用透明玻璃门隔开餐厅与厨房,把自然光留给了用餐区。
站在厨房看向门厅,这个角度可以看到门厅到卧室和客厅到卧室的两条并行过道。
厨房——即使开放厨房,又是封闭厨房
与餐厅相邻,整面黑框玻璃隔断,隔油烟不隔视线。
客厅——不用软装装饰,硬装完成就已经很美了
墙面、地面都用的同一灰色系,蓝色的窗帘,白色的顶面,还有定制的异型黑白一体电视柜。不用任何软装装饰,这样空间也是很美。
书房—渐变玻璃
书房侧面,整面墙用渐变玻璃,下面遮挡,上面通透。
一面玻璃+半面墙围合的书房。
过道——拆掉的杂物间
拆掉的杂物间,变成由餐厅到卧室的过道,过道左右定制了和墙体一样颜色的通顶柜。全屋筒灯选用麦丹妮(科锐芯片)。
与上图的过道是平行关系,由客厅到卧室的过道。
主卧——衣帽间、干湿分离、1.6米浴缸
主卫——首次使用无变压器防水灯带
浴室的壁龛和淋浴地漏处,想实现见光不见灯的效果,需要找满足三个条件的灯带:4000k色温、防水、无变压器。景森跑遍了北京大小灯具店+十几家淘宝店,才找到了能呈现这种效果的灯带。如果只需要4000k+防水功能,或者4000K+无变压器都比较好满足,但是三个条件放一起就变成了稀缺灯带。
儿童房——跳色
孩子还比较小,儿童房选了一些多彩的家具和窗帘。
次卫——简约
整体色调用暖白色。
合影
从左到右依次是张工长、景森设计师、业主。
本期案例介绍完毕
感谢观看~
- End -
~版权归作者JORYA玖雅所有
客服
消息
收藏
下载
最近





































