查看完整案例


收藏

下载
舒适的设计空间就像阅读一本优雅的诗集;
阳光穿过花园透过超大的落地窗户撒进屋内,阳光的味道大概说的就是这种样子吧;
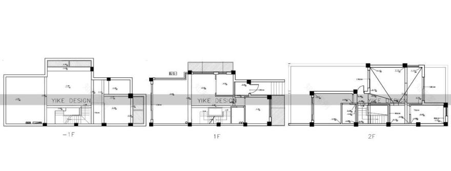
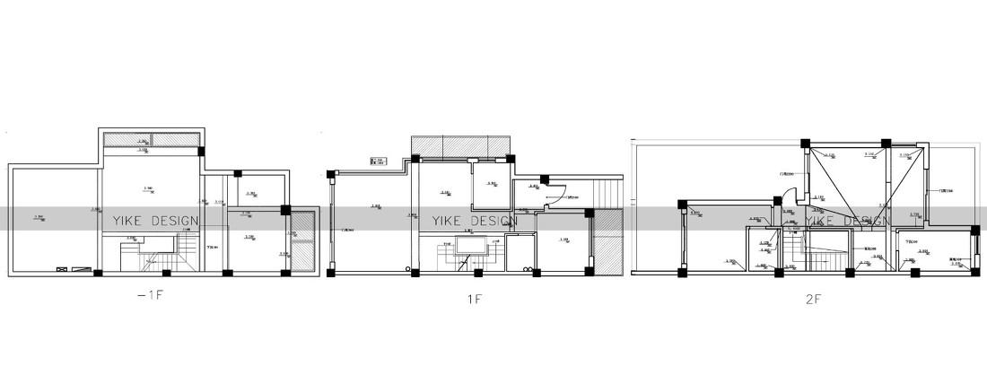
原始分析:(1)一楼厨房较小,客厅储物不够;(2)二楼层高较高可以利用顶部空间;(3)楼梯间过道空间宽敞,可以利用增加餐厅储物;(4)地下室利用采光适合开敞空间布局;(5)二楼双南卧室布局,次卧较小,保留两卫增加使用便利;(6)充分考虑整屋储物功能;(7)配置中央空调和地暖;(8)主卧室衣帽间、卫生间套间设计;
设计思路:一楼扩大厨房尺寸,丰富客厅储物并结合整体空间设计,落地玻璃窗是边套别墅的最大亮点,慵懒的下午泡一壶茶就可以欣赏到花园的一花一草;地下室释放空间感,利用采光井的超大采光使空间变得明亮通透,并设置书房阅读区和儿童活动区;二楼次卧尺寸扩大使居住空间变得舒适,利用楼梯间改造成次卫,即实用又高效利用空间,而主卧室过道改成衣帽间,保留套间设计提高主卧舒适度;阁楼的设计为房子增加了更多的储物量,折叠楼梯方便又不占空间;
把外套和多余的物品藏进柜子里,收纳是生活必不可少的美学;
远离嘈杂的市区高楼,此刻只有花园的鸟语声,仿佛是在歌唱这美好的时刻;
生活经验回答我,美食家从来不需要菜谱;
节日的欢笑,朋友的相聚,一个周末的小度假如此的完美;
从一楼公共空间顺着楼梯上去就到了卧室区域;
利用楼梯间的空间增加储物柜和装饰;
\\\"光荣之家\\\"
这是一份无价的荣耀,是一辈子的回忆,更是一份值得我们敬佩的骄傲;
东滩的夜晚如此的宁静,远离市区的嘈杂;
窗外满天的星空,又是美妙的一夜;
让光线来做设计;
阳光照在卧室的地板上,还有什么比自然和光更重要;
将原来的南面移门改成窗户,除了解决卧室南北移门对冲的风水还能阻挡冬天的寒风;
扩大次卧室的尺寸局限,让空间变得更加舒适;
从明天起,做一个幸福的人
喂马,劈柴,周游世界
从明天起,关心粮食和蔬菜
我有一所房子,面朝大海,春暖花开
客服
消息
收藏
下载
最近






















