查看完整案例


收藏

下载
我们业主是从事民宿行业多年的一位专业人士,对于项目本身有自己的见地和价值观念,在他对于自身品牌定位的过程中,可以看到对于这个行业和项目灵魂深处的认知和感触,这是我们的第二次合作,而每一次的合作,通过与业主多方面的交流和沟通中,也让我们成长了很多,第一次合作是LIFE HOUSE ,针对于小女生审美的一次尝试,最后非常帮,收货好评非常多,这一次的合作是多元化的,从业主的投资角度和大环境以及他们自身对品牌的深入探索和构思,理念的越来越成熟,认知的越来越深刻的状态中,共同来完成了我们的项目;
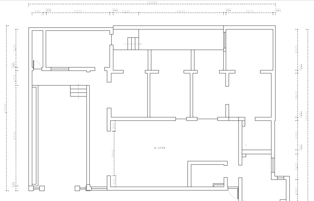
这是砖混结构的老房子,很多处的位置不能随意敲打;
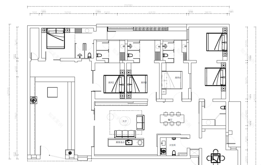
有限的范围,做了最大的调整,走廊打掉后,多了一个回廊,原入户的花园往上调高了15公分,最大限度开阔入户的视角,原来的树我们保留了下来,只是现在还需要再搭理一番;
客厅大门设计了两扇推拉门,门框做了6公分宽度,质感气场自带几分豪气,客厅的宽度允许我们做一个开放式的大厨房,操作吧台兼具岛台,居家的做饭氛围多了些许的高级感,房间做了一些小的调整,入户的一号房间和步行区改为一个空间,因为是一楼,我们的每一个房间都有开阔的窗户,而后花园绿植布景,很好的映射了氛围感,一号房间和二号房间的门做了推拉,很好的和客厅的两扇大的推拉门形成一个整体,开阔又好看哟;
整体以黑白灰做为主调,很好的体现了简约风格的想法,素雅又高级;
改造前的老房子
开放式的客厅和厨房装饰采用天然石材,和高端定制护墙板,值得一提的是部分的灯光,在夜晚用做饭的感觉体现的非常棒;
从大环境的角度来看,每一个民宿都是个性和独一无二的,区位选择也是规划设计中的一个非常重要的环节,而项目本身是居于繁华都市背后的传统小巷里,当你从繁闹的商业街,步行穿梭到原市集的巷道时,我相信,在都市旅行的旅居者来说,也是心灵上的某种回归感,这种现代风格和传统建筑风格想异同的时候,多元化的设计感就能让原本的住宿空间变得更加富有新鲜感和体验感;
客服
消息
收藏
下载
最近



























