查看完整案例


收藏

下载
今天分享的这个项目,整个设计的灵感便是来源于野兽派风格大师马蒂斯的绘画作品。野兽派主义的绘画以鲜明大胆的用色以及粗犷的线条而著称,而运用到家居设计中的灵感,我着重放大了色彩运用的这一部分,而在线条上依然尽量保持简约和柔美,营造出整体的精致感。
设计改造前是标准精装房
业主是一位时尚独立女性,有两个孩子一儿一女,有多年海外居住经历,工作的原因她经常需要到世界各地出差,这个房子是她买的第二套房,由于房子本来已经有装修,她的需求是在不大改动平面的基础上,将房子改造成她喜爱的风格。
设计改造前是标准精装房
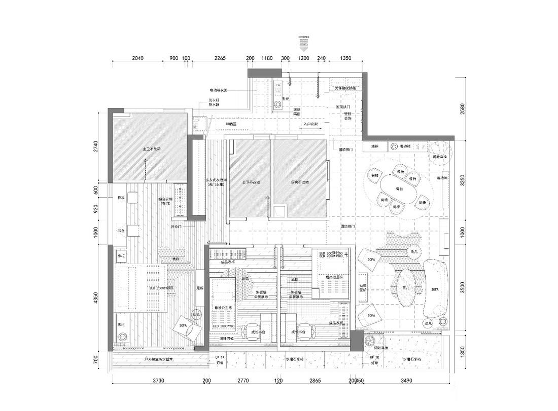
(调整后的平面布局)
平面布局在原来的基础上,根据业主的居住需求做了一下简单的优化,由于业主的工作经常需要加班到比较晚回家。因此,我们把玄关入口旁边的储物室与主卧的衣帽间打通,这样业主回家后可以直接从玄关穿过衣帽间回到主卧,这样不会容易吵到熟睡中的孩子们,整个屋子形成了一个灵活的环流动线。
设计亮点:
1、 项目通过大胆而浓郁的色彩碰撞出强烈的艺术风格,色彩在空间中的灵活运用,是本项目最大亮点。
2、由于项目的改造并没有在结构上有太大的改动动作,而在框架上加入了圆栱门洞的设计,打破的常规空间线条,更复古柔美。
3、在原空间布局上,优化了整个屋子的环流动线 ,从客厅的阳台可以到主卧房间,从入户玄关可以通往衣帽间再进入主卧,方便业主的日常生活需求。
4、去电视墙理念,壁炉成为客厅的视觉焦点,电视机不再是客厅常规标配品。
在野兽派风格大师马蒂斯的作品中,人们总是会被他笔下浓郁的色彩而吸引,为其鲜明、大胆的色块与线条的使用而着迷,他极具辨识度的艺术风格和丰富的表现手法直到今天依然影响着当代人的审美。而在这个项目中,我也从他的画作中得到了一种通过装饰风格来突出空间关系的启示。
01/客厅
每一帧都如同一幅图画
红色沙发 MOROSO
绿色单椅 NORDIC HOME Designd In 1973
壁炉墙纸 GLOYA WALLPAPER
在客厅的整个空间里面,算是比较规整和方正的布局,总是缺少一点个性与趣味,几何的线条元素能够很好地打破呆板乏味的常规审美,营造出新颖、时尚的视觉空间,因此,在玄关处以及客厅走廊,我们采用了半弧形门洞来让简单的空间变得更灵活多变。
在这个项目中,色彩是最重要的空间元素,以绿、蓝、红三种色调的混搭、对比,让空间更富有趣味和灵性,这也是从野兽派大师马蒂斯的作品中获取的色彩灵感。
墨绿色作为客厅与餐厅的主色调,有着天真与原始、冷静与张扬的冲突美,与空间中的不同材质家具碰撞所带来的光影效果,构筑每一件家居物品与空间的关系,让眼睛看过去的每一帧都如同一幅图画。
。
大块面的色彩,能够呈现强烈的视觉对比,将色彩融入空间中,结合线条以及几何块状的运用,即便是中规中矩的空间也会瞬间变得灵活有趣
摒弃了电视墙的设计,以壁炉作为客厅的视觉焦点,复古花鸟树叶的墙纸,就如同空间里的一处停顿,颇有自然野性的灵感涌动。
02/餐厅
碰撞中寻求平衡之美
前面提到,色彩是这个项目中最重要的空间元素,它能够让整个空间迅速在平淡中跳脱出来,强烈的色彩对比呈现的也是主人与众不同的爱好审美,而每一种颜色的出现,都代表着特定的含义,是居住者对于美好生活的热爱与追求。
墨绿复古又有点酷,脏橘温暖又带点俏皮,整个空间以墨绿色为主,辅以脏橘色作为点缀,两者碰撞在一起成为了“不常规”的配色组合,通过色块把空间中各种细小的装饰品串联起来,纯粹却又极具感染力。
餐厅的灯,特别选用了简洁线条的灯管,赋予一种流动光影的气质。
03/主卧
装饰性简化,营造宁静、愉悦的内心世界
业主特别喜欢深蓝色调带给人宁静放松的感觉,在主卧用艺术涂料来打造大海深处的蓝,与一般的墙漆或墙纸不同,艺术涂料是用纯手工的方法在墙面上色并打造纹理,这个颜色是经过现场多次调试后最终呈现的效果。
主卧的家具选择也是以同色系为主,不同于客厅的色彩碰撞,卧室需要做减法,让整体更协调有序,让人的心走向宁静。
阳台可以看见广州塔
04/衣帽间
一气呵成的“秘密通道”
改造后的衣帽间,不仅空间扩大了,更重要的是它可以和主卧以及玄关连接,这是属于业主的一条“秘密通道”,同时也让她早上梳妆、换衣、出门变得更加一气呵成。
05/儿童房
关于太空和公主的梦想
业主的儿子有一个关于宇宙太空的梦想,他的房间用了蓝色作为主色,我们特意请了一位画师在墙面画了一个立体的地球,每一处细节都为了保护着孩子们最初最炙热的梦想与热爱。
每个女孩的心中都有一个关于公主的梦想,女儿房里的帐篷式的布幔床满足了少女心的所有幻想。除此以外还设计了一个小小的飘窗,适合小朋友在这里看书和玩乐。
客服
消息
收藏
下载
最近






























