查看完整案例


收藏

下载
较为传统的两居室,入户大开间视觉宽敞,门厅分区模糊,主卧室过于狭长,开门位置对于内部方案不便利。
先来看一下格局改造:
01
门厅——建U型墙做收纳
进门厅左手边是儿童房,利用儿童房墙体可以拆除的有利条件,新建U型墙,内凹1.35米超长衣帽柜,冬日的大衣外套可以收纳在门厅,全封闭式储物柜与外墙齐平,体态不突兀。
02
洗手台——改变门洞方向,多出两组深柜
移动原始主卧门洞位置。
利用封门洞后的围合空间定制双向开启的收纳柜。外面一组,面向餐厅使用,下方嵌入成品酒柜,上方为餐边柜;里面一组,面向洗手台使用,收纳全家人的户外设备、儿童车等。
03
卫生间——把垃圾桶隐藏到收纳柜下面
利用门后两处管道之间的凹形区域,设计收纳柜,加强储物的同时规整空间。
04
主卧——门后空间不要浪费,可以做薄柜展示鞋包
主卧门后设计进深300mm玻璃门薄柜,展示鞋和包,并且减短过道长度。
利用较长跨度,做了3.1平米的步入式衣帽间,卧室的狭长也变成了优势。
05
阳台——没有下水管的阳台也能放洗衣机
原始阳台并无下水,但与厨房只有一墙之隔,故可以接通下水管道放置洗衣机与此缩短晾晒动线。
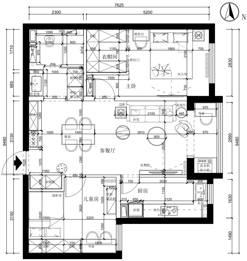
最终平面布局图
门厅——两组柜子,超大收纳
一套动图展示惊人储物量。
餐厅——弧形门洞和弧形吊灯呼应
客餐厅整面背景墙涂刷浅灰色微水泥漆,涂抹痕迹丰富墙面效果,具有肌理感。餐桌一侧摆放两把餐椅,另一侧搭配一条长凳,减少碎片感。
通往卫生间的门洞采用圆弧设计,区别同侧墙面上主卧门与定制餐边柜方形元素的呆板。
可伸缩的一款餐桌来自NORHOR,桌长1.3米,聚会时可延长到1.7米,沈小姐也反复感叹它的实用性与美观。
房屋原始层高较低,只有2.42米,业主不喜欢主灯光源带来的区域感,在无主灯形式的选择上犹豫了很久。
方案一:磁吸式轨道灯,光源均匀且充足,内置变压器,人体可直接触碰更换,可与泛光灯、聚光灯等不同光源的灯搭配,需要全屋吊顶5cm。
方案二:传统无主灯照明,每个明装筒灯大约在10*10cm的大小,空间分布12个左右,显得房顶杂乱且繁重。
经过模拟效果对比,最终选择方案一,并没有因为整体吊顶而更压抑,反而充满现代科技感。
没有比黑色皮艺沙发更合适客厅的C位啦,毫无异议,选他。
夸张的装饰画也是设计师和业主共鸣的地方,专门定制而来。浓郁的红色,扑面而来的冲击感,成为整体氛围点睛之笔,引人注目。
白色亚克力茶几,同系列着色亚克力花瓶摆件,体量轻盈。
长臂壁灯干净利落的造型与顶面轨道灯一样充满线条感。在众多家具中是很好的装饰,补充光源。
电视背景墙一体设计,石材纹理的板材定制而成,除去成品电视柜,加入灯芯玻璃,为跨度只有3.1m长的客厅增加视觉通透感。
厨房——厨房虽小,够用足矣
厨房空间偏原始的功能,因为平时有阿姨做饭,减少了内嵌式洗碗机等现代化电器,为操作与储物留出了大量的空间。
配色上与整体风格保持统一,背景白色墙砖独特的纹理作为视觉亮点。
卫生间——淋浴区三层壁龛
卫生间干湿分离,浴室柜封闭与开放格并存,方便拿取,减少视觉杂乱。
卫生间采用灯芯玻璃推拉门,透光不透视。简约门把手与玻璃纹理线条感保持统一。
内部空间用推拉门遮挡淋浴房,同样干湿分离便于打理,淋浴区三层壁龛,最下层方便儿童使用。
卧室——步入式衣帽间是解决卧室狭长的终结者
打造一人衣帽间,极值控制,3.1㎡空间内拥有4.1米长衣柜,衣柜550mm的进深也能轻松平挂大外套。
衣帽间内过道宽和门洞宽一致都是780mm,衣帽间的门既要方便好用,又要省空间和美观,对于最终呈现也做了更多的计算与思考。
最后考虑到外挂门对墙体承重要求高,门的厚度还会影响过道等原因,果断选择四扇推拉门方案,空间整体性高,更显宽阔。
卧室白色混凝土壁布奠定轻工业基础风格,蓝色作为主色系,黑色为重色点缀其中,与黑玻推拉门呼应。空间对比感强烈,软装上一些绒布、丝绸等材质中和硬装的冷硬质感,整体达到一种平衡。
儿童房——定制木质围板
儿童房主要以定制的形式表现,定制衣柜与地台床靠一侧摆放,预留书桌书柜位置,并增加活动空间。
地台床增加木质脏粉色围板,隔离儿童碰到墙体的冰凉感,并且便于打理。
客服
消息
收藏
下载
最近







































