查看完整案例


收藏

下载
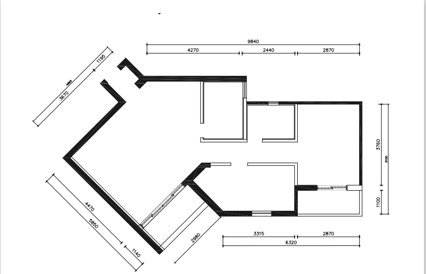
改造前
案例信息
地点 / 深圳福田区百花公寓
面积 / 75 ㎡
屋况 / 二手房
花费 / 60万(包括硬装、软装、家电)材质 / 实木地板、墙布、硬包、金意陶瓷砖、新风系统等
时间 / 4个月完工
设计 / 璞海设计
设计需求:①日常妈妈带着孩子居住学习,爸爸偶尔会留宿,节假日一家人在宝安度过。为了孩子专心学业,整屋不设电视等娱乐电子设施。
②增加各空间的储物空间,规划一个独立的储物间。
③扩充客厅空间,改善客厅视野以及采光。
晨起第一缕阳光洒下,闹钟响起,妈妈在厨房准备早餐,爸爸和女儿开始洗漱,一家人早餐过后,女儿愉快上学,夫妇开始了一天忙碌的工作...
这是一家三口的美好日常,业主是我们的老客户,与业主上一次的成功合作让业主与设计师,已经有了相当好的默契。这之后业主为了想要给孩子一个好的成长教育环境,入手了这套位于福田的学区房。
原户型缺点:①玄关和客厅储物空间不足,②两个卧室仅有超小的衣柜,③收纳空间不够。
④餐厅采光不足。
⑤客厅空间狭小,视野不开阔。
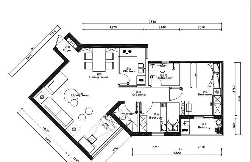
设计改造后亮点:①整个客厅重新布局,将阳台与客厅打通增加客厅空间。利用餐桌和吊灯作为遮挡,增强空间私密性。
②厨房原本墙壁改为玻璃围合,增加采光和通风,使整个空间更开阔。厨房动线重新布局,冰箱→清洗区→备菜区→烹饪区,合理又实用。
③解决了储物空间不足
进门玄关左边是到顶玄关柜,玄关空间窄小,设计师整体选用纯灰色、无把手门,这样设计会大大减少空间的逼仄感,视觉上让人感觉更开阔。
白色的天花干净的沙发背景墙、呈现出一个明亮、自然的客餐厅空间。
闲暇时光,沐浴着阳光,在窗外美景的相伴下闲坐翻阅书籍杂志,
也可围坐在地垫上,一家人嬉戏玩耍;间或也能依偎在舒适的真皮沙发上,聆听优美的音乐。
浅灰色的沙发,与沙发同色系的背景以金属条规则分割的造型,减少了背景墙的呆板感,更具层次感。
将客厅阳台与客厅合并并把原来的窗户做成了小书柜展示柜,增加了储物空间。
▲细节:窗台新风系统时刻守护着业主的呼吸健康
考虑到原有储物空间不足,餐桌边设计了整面墙的收纳柜。柜面与餐桌一样采用了大理石纹。整个餐厅散发着浑然一体、纹理优雅的气质。
大理石台面的餐桌上,一家人围在这一方天地,享受用心烹饪的美食,家人欢聚的时光。
灶台间把食物烹饪成幸福的味道,一个温暖幸福的家,一定是充满着烟火气息的。
厨房原本墙壁改为玻璃围合,增加采光和通风,使整个空间更开阔。
银灰色的橱柜,清爽干净,没有一丝烟火的油腻,设计装修后的厨房动线布局合理冰箱取菜→洗菜区→切菜区→炒菜区动作流畅一气呵成。
主卧延续了高级灰的冷淡风,在这儿虽然没有华丽的装饰,但是整体淡雅的灰色,明亮的白色,复古的墨绿,营造了一个素雅温馨的空间让人能轻松入眠。
床头吊灯选用简练的现代感吊灯,床头柜的灰色花器与背景墙遥相呼应。
吊灯温暖的灯光增加了卧室的温馨感,和空间的灵趣。
卧室设计了顶天立地衣柜,内里各尺寸储物空间分布合理,充分满足业主的收纳需求。
让孩子快乐茁壮成长,是每个父母的愿望。能爬进树屋躲猫猫,大概是每个孩子都有的梦想吧。
实木制作的儿童床边角圆润,不用担心孩子会撞到受伤。
改造后的干湿分离卫生间
延续设计整体的简洁利落,玻璃门隔而不断保护隐私,增加采光和通风。
阳台为主要的家务区
设计师贴心的设计了壁橱用来存放清洁用品,洗衣区增设了手洗水槽,不仅多了一个洗漱区,同时方便业主偶尔手洗衣物,安装的好太太智能伸缩衣架自带的紫外线消毒干衣功能瞬间提升幸福感,一年四季都可以拥有干爽整洁的衣物
客服
消息
收藏
下载
最近































