查看完整案例


收藏

下载
About Room:
Design Team:匠诚美艺
Designer:陈莉莉
Decorate Team:匠诚美艺
Soft Team:里里美学
Address:鸿基·君临天下
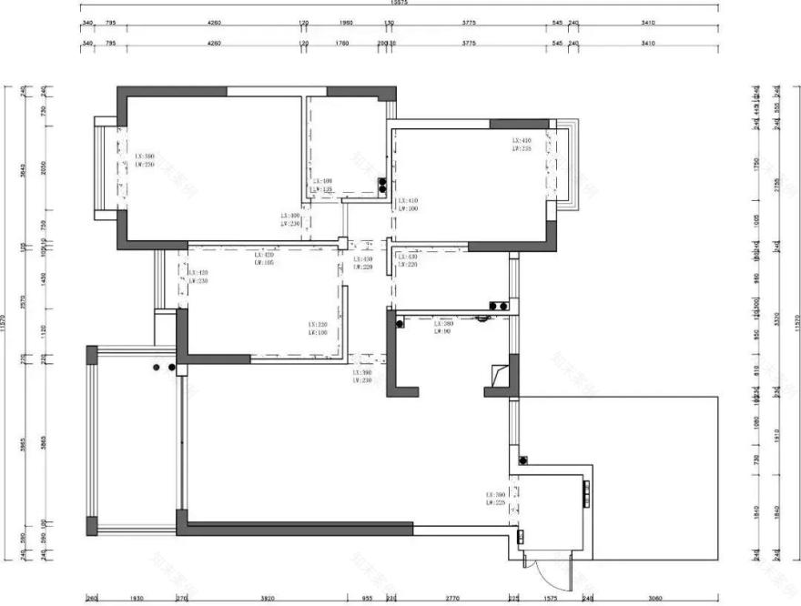
Floor Area:110㎡
本案在布局上坚持做互动性“大空间”,公共空间加强沟通,私人空间确保隐私,缺角拉平,减少死角。在风格上配以原木色为主的现代风格,清雅宁静。
墙面通过拉槽处理形成立面造型,通过筒灯营造出不同的光影效果。让空间开放,让视觉延伸,让胸怀开阔,这正是我们对玄关的一种表达。一个小小的踢脚灯,这正是我们为老人的暖心设计之一。
餐厅是精致生活的一种重要表达方式,简单的四人餐桌和舒适的餐椅,为餐厅提供了舒适的就餐环境,木色饰面板上的钟表记录着主人生活的点点滴滴,时间的流逝让我们更加珍惜父母和身边人。
餐厅是精致生活的一种重要表达方式,简单的四人餐桌和舒适的餐椅,为餐厅提供了舒适的就餐环境,木色饰面板上的钟表记录着主人生活的点点滴滴,时间的流逝让我们更加珍惜父母和身边人。
厨房和餐厅之间是两扇移门,一家人一天美好的开始就在此处打开了,木色地柜和白色吊柜的结合,产生自然与前卫的强烈对比,并在灯光和充足的自然光下营造出一种怡人的心情。
无主灯结合壁灯营造出安稳舒适的睡眠氛围。灰蓝色的靠背、木色的格栅以及灰色的硬包有序的排列着,三者构成极强的韵律感。
卫生间干湿分离是必备的,简洁的直线造型营造出带有序列感的平面视觉。白色的墙地砖,自然地融合。舒适的浴缸及淋浴房呈现出对生活细节的推敲,还透露出主人不俗的品味。
客服
消息
收藏
下载
最近





















