查看完整案例

收藏

下载
原始户型图
原户型是两室一厅,一进门就是洗手间的墙,没有餐厅的位置,次卧空间过小,柜子收纳不方便。出了厨房有一个小小的阳台,位置比较小 ,也是不实用。
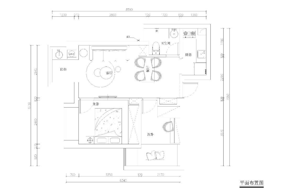
平面布局图
改造后的平面优化了以下几个地方:
1.把进门的洗手间的墙拆掉了,洗手间整体往阳台移,增加了一个餐 厅的位置
2.改动卫生间的同时,给客厅增加了一个开放式储物柜,
3.把次卧的门往前移,过道空间增加到次卧
4.加大了主卧衣柜,并利用主卧衣柜的一小部分位置做了衣柜嵌入式的电视柜,
灰蓝色和茱萸粉都是L小姐和C先生很喜欢的颜色,设计沟通之后,我们选用这两个颜色作为主色调
在客厅点上香薰蜡烛,躺在沙发上看看书,享受一杯下午茶的时光
在餐桌的选择上,C小姐说更喜欢这种折叠的餐桌,既能满足平时两个人的用餐,又能保证在三五好友来家聚会的时候的功能。
进门右侧是一个嵌入式的鞋柜,中间镂空的部分可以放手机和包包
现在餐厅的位置是原来洗手间凸出来的淋浴和过道区域。
生活的仪式感体现在餐桌上的花,置物架的摆件,以及一顿烛光晚餐
地柜和吊柜是木色配白色的搭配,墙面的小白砖显得温馨
又有人间烟火气。
茱萸粉的地砖和深灰蓝色的柜子,搭配黑色的洁具,整体和谐而整洁。
镜前灯的照明上选用了这种灯泡化妆灯的形式,是为了有利于C小姐更好的享受护肤和化妆的时光
次卧兼并了书房和客房的形式,塔塔米保证了储物和临时居住的功能。
榻榻米床头做了加厚处理,一是作为床头靠背的左右,二是为了兼顾床头柜的置物功能。
主卧的床头墙面沿用了茱萸粉作为背景,搭配金色镂空床头的双人床
大理石的吊灯,既简约美观,又提升了整体质感。
主卧的灯光非常柔和的,
一天疲惫之后,打开床头小吊灯,躺在床上,随之而来的是缓缓入眠的放松和舒适
阳台
洗衣台墙面做了一个洞洞板的收纳,放上喜欢的植物,让洗衣服也变成了一件有趣的事情
客服
消息
收藏
下载
最近























