查看完整案例


收藏

下载
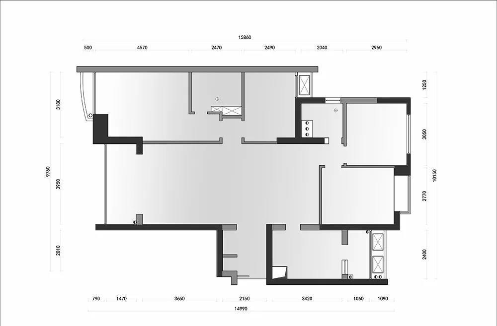
户型图
客厅的全套白色储物柜,柜体下方的壁炉装饰,让整面墙独具书香气息。
户型图
进门处增加一面全身镜,在另一侧做了木饰面按压柜面的衣帽柜,延伸过来是从顶到地直通的白色烤漆面板鞋柜。
客厅海淘了一款兼颜值与功能并存的沙发,并且可以活动摆放。后方的灰色木饰面墙体还有着通往主卧的隐形门,所有的面板切割比例都是跟着门的宽度走的,整体感很好,块面清晰,维和感强。
客厅与阳台用了固定玻璃做划分,没有采用滑柜移动设计师为了减轻阳台分割的厚重感,反而起到了加强采光和整体大气的既视感。
客厅蓝色的装饰物是一副很有故事的装饰画,设计师好不容易托人偶然在国外网站巧遇了这款蓝色物件,因为价格太高,特意到画廊找画师临摹出一副立体画,只用了1000多块,业主夫妇开心极了。
客厅所用的地板是实木复合的鱼骨拼式样
对于西厨区域,原始承重墙不能改变的基础上,设计师额外增加了水槽,设置了中央岛台,并且在墙面处理上运用了外墙的硅藻泥涂料,增加了肌理感。同时运用灯光的氛围营造,满足客户喜欢酒店风的要求。
延续客厅的木饰面到餐厅前端,从空间上显得客厅都很大,不是中规中矩的,并且配合了发光灯槽,可定制长宽,再从里面上总价灯光灯带元素,从里面到顶面的延伸感,同时增加了分割的层次感。顶部的中央空调做了无框设计(大金空调定制款),简洁,无包合感。
餐厅由于层高的局限性,对于顶部特别做了处理,拆旧后的梁特别低,几乎伸手可及,设计师用木饰面将梁包在里面,反而隐藏了原始房子的劣势,化腐朽为神奇,巧妙的运用了材料的质感,很自然的让餐厅有了里面分割的造型顶面。
从主卧的隐形门推进来,后身是额外增加出的一个L型衣帽间,简框玻璃移门是特意定做的,既私密又有酒店风的味道。
中厨的设计结合运用了业主很喜欢的不锈钢配件,打开橱柜门,里面展现出的都是不锈钢的五金件,非常有质感。面板全部采用了白色的,足够大气且易打理。
主卧套间里既包括衣帽间还有带浴缸的卫生间,所有设计都是跟着业主平时喜欢入住的酒店套卫式设计走的。
床后的背景墙采用的是硬包面,没有过多复杂的元素。业主非常喜欢整个主卧的私密性,开门也都是对外客厅的木饰面隐形门。
除了主卧的开放式衣帽间,其他每个房间基本上设计师都是做了从顶到地面的整柜设计,相信再多的东西这么多的柜子足够放了。
考虑到业主家的宝宝还很小,所以在儿童房里选择了高低儿童床,方便老人照顾,并且给予了较大的儿童活动区域,还有另外一个小房间也是。
客服
消息
收藏
下载
最近





















