查看完整案例


收藏

下载
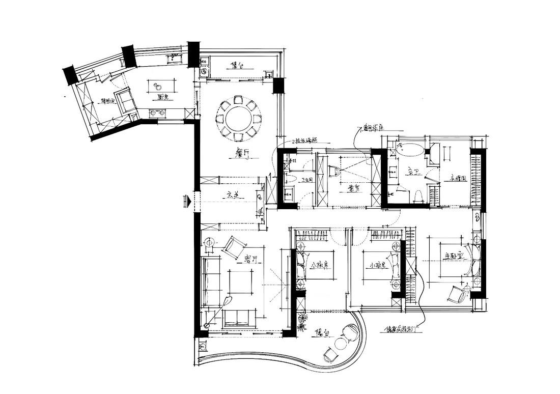
原始户型不足:1.进门无玄关直接面对主卧房门。
2.客餐厅两空间视觉距离过大,不够实用。
3.主卧空间大,收纳储物空间不足。
4.女孩房空间稍小。
5.客户家庭本身需求并不需要工人房。
6.厨房空间内小阳台空间狭小功能非常鸡肋。
优化后空间:1.进门设计了玄关,利用玄关位置巧妙遮挡了直通主卧的走廊。
2.客餐厅之间利用展示柜将客厅餐厅区域进行了划分。
3.主卧室将电视背景墙设计成顶天立地的储物柜,并将电视机内凹进储物立柜。
4.女孩房外联通的阳台面积非常宽阔,将女孩房的外墙外移增大了房间空间。
5.将原有工人房设计成杂物房储物间。
6.厨房小阳台打通纳为厨房空间。
回家进门的第一步简约优雅又有家的温暖舒适感。玄关两边陈列柜上摆置着趣致的工艺品一打开门便能看到仿佛在欢迎主人们回家让心情不禁变得愉悦起来
通过玄关进入室内空间
向左可达餐厨区域,向右可达客厅,也可直接绕过玄关进入卧室。通透性的客餐厅,使得主空间更为宽敞;
客餐之间既开放又互相联系。
映入眼帘的玄关柜引人注目,背景颜色与玄关柜遥相呼应,抽象色块的装饰画,与静静绽放的花材的丰富细节,形成对比,这样的搭配极致精巧。
从玄关走进客厅,阳光和熙,毫无保留地从窗边洒落进屋子,搭配柔和的色彩,在柔光下呈现出静穆的美。装饰小品不多且简净,几只花瓶,一盏柔光,叹茶翻书,在温煦的灯光下,空气中的静逸与幸福感足以驱走一天的疲惫。
灰色沙发惬意地紧靠窗边,午后温暖的阳光透过玻璃窗散落在地毯上,偶尔的阵阵微风,撩起轻薄的纱帘,在静谧的空间中一杯清茶,共待流年。
每一件物品都有属于自己的语言,抽象的铸铁雕像立于大理石电视背景墙前,有一股收敛的沉稳之息。抽象雕像、大理石台灯等饰品,唤醒了空间的生命力。
餐桌之上,烟火人生,餐厅大面积落地玻璃窗,将光线与美景同时纳入室内,让空间融入自然环境中,一餐一饭皆可感受
四季变幻,草长莺飞。
一家人围坐着享受丰盛的晚餐
此情此前的幸福不难想象!
改造后,玄关后面夹层空间非常的尴尬,不美观利用率也不高。考虑过后设计师把它设计成了现在这个推拉式隐藏储物酒柜。
扩大后的厨房足够宽敞,以简约灰色为设计基调,简简单单,干净而明亮,在舒适的环境下尽情享受烹饪的趣味。
拂晓与黄昏,阳光漫入窗纱,潜进卧室。
这是主人
最惬意闲适的地方,以稳重雅致的灰色作为房间的主色调,没有繁杂的雕饰,些许饰品的穿插、融合打破了空间的平淡乏味,每一处都彰显着
优雅的生活状态与情调。
床上用品的材质,配着温暖的床头灯,给人感觉质地细腻,像是对生活的温柔以待。
在这一方小天地里,阳光顺着落地窗倾洒下来,硬朗的空间也瞬间温柔起来,内心的自由、包容、尺寸感、美感一切都刚刚好。
主卫的配色非常有现代主义杂志风,墙面和地面瓷砖自带高级格调,时尚不失品味。生活的幸福感油然而生。
每个人都想有一个诗意的栖息地,造一处书房,来存放腹中文墨,书房无须大,容身即可,风格清朗,器物悦己,无论世界如何喧嚣,无论窗外多么缤纷,进入这个空间,就宛如到了一片净土。
每个男孩都有一个超级英雄梦,设计师将这个梦想实现在了属于他自己的小空间里,白天在属于自己的空间玩耍学习,晚上躺在蜘蛛侠相伴的床上听着父母讲着超级英雄的故事入睡,让梦和现实一点一点的靠近…
粉色的床头柜与白纱帘诠释了这个空间的少女气息,倚光而读,时光的宁静便刻在了书本里,空间随居住者而成长,却带来一种恒久的安全感。
次卫看起来高级而稳重,延续了整体空间的简洁感。瓷砖的肌理与纹路,赋予空间以经得起时间打磨的持久品质。淋浴间采用干湿分离的设计,更注重区域功能性。
午后闲坐阳台小憩,伴着微风和星星点点的阳光,温暖又惬意。在这一瞬间,日常生活的卡带好像被按下了暂停键,一本小说、一盏清茶,让时间随着心思平静而慢下来;闲坐静默,倾听内心的起伏,这是生活的仪式感。
写在最后
如何让房子给人一种家的感觉是一个非常私人的问题,每个客户都不一样,我们做私宅设计,需要充分考虑居住者的日常生活场景,设计出每个人的生活状态,来实现他们在家里的行为习惯与内心所需。这次的设计作品能够完美落地,主要得益于业主的鼎力支持,小到器具摆件,大到床柜家具,从色彩、材质上都力求1:1的还原效果图。因为业主真的是一位注重细节的人,所以在设计落地的过程中是历经波折。好在业主对我们的信任度很高,之后设计也是圆满的落地了。
客服
消息
收藏
下载
最近


















































