查看完整案例


收藏

下载
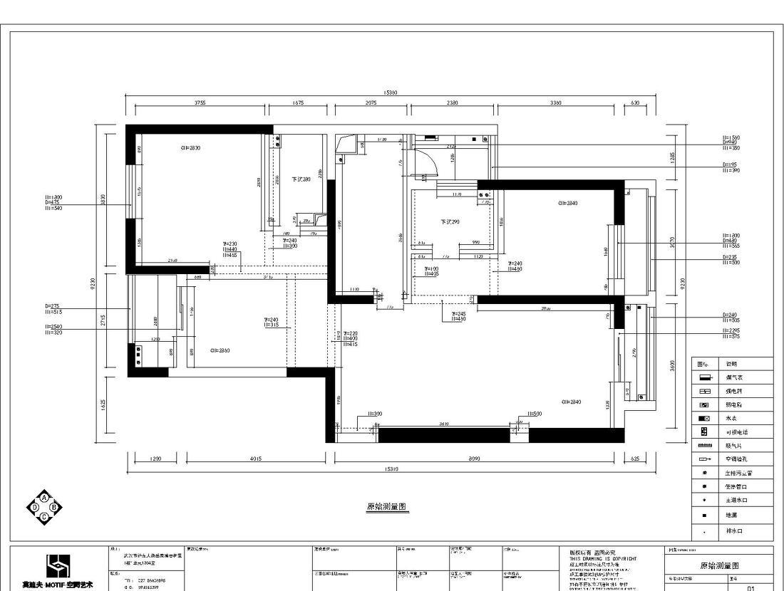
原始户型图
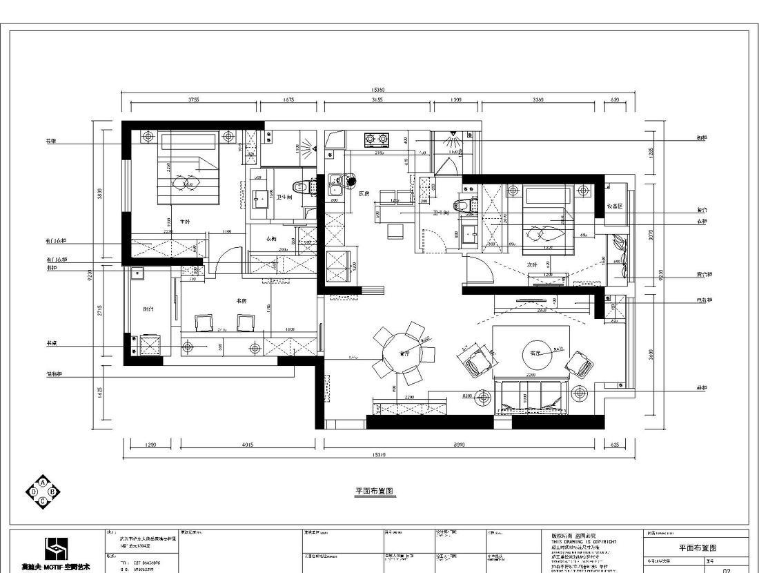
平面布置图
设计说明:原户型房型方正、保守,新的设计方案使空间分工明确、扩大了就餐范围、合理的空间改造、增添了更多的储物空间。深色地板和大理石,突出了现代风的元素,但同时选用皮质、金属、原木家具硬朗的空间更加精致。
灰色系的卫生间不仅耐脏而且特别的经久耐看。
简单的卧室空间,床头背景采用对称的设计,使卧室的布局和空间感都得到平衡。
为了这个厨房,也许没少让女主人受到同来照顾宝宝的母亲大人埋怨:为了保持干净大大的增加了我的劳动强度,听到这话的时候我都有点惭愧了,还好女主人发声支持“干净整洁就行,别听我妈的”
干干净净的开放式厨房在里面做饭的人都感觉很舒服,白色的橱柜使整个空间更显敞亮、美观。
洞石的大理石电视背景墙给生活带来的真实感永远是设计师和生活爱好者们所追求的,简约风的铁艺椅子和黑色的坐垫,简约不简单,使空间复古和现代感兼具。
身体和灵魂必须有一个在路上,在这个属于自己的空间,一张简约的书桌椅足矣。
嵌入式的蒸箱和烤箱是个节省空间的好办法,台吧的设计划分餐厅与厨房的空间链接,恰到好处。
铁艺餐桌与吧台相连,提供更多使用的可能性,灰色墙面和装饰画更显文艺,白色吊灯打造自然简单的气息
客服
消息
收藏
下载
最近























