查看完整案例


收藏

下载
客厅沙发3000mm长,墙面都芳灰色乳胶漆4-2102p。
回家映入眼帘的便是书房的橡木实木屏风+长虹玻璃,其实也是书房的‘墙哦’2300mm*1700mm。
站在通往餐厅厨房的过道看向客厅的角度,入户玄关右手边的鞋柜和客厅的电视柜储物柜相连,增加柜子的延伸性,多宝阁的设计让木色的柜子有了轻盈感。
犹抱琵琶半遮面 千呼万唤始出来。客厅的墙面松木木线条是20*20mm,松木原色比较淡做了清漆的处理,把颜色加重,也起到了防腐、耐久的作用。
客厅的灯光模仿了影院的效果,做了点光源的设计,见光不见灯,使得原来就不太高的房高,在视觉上增加了房高的感觉。并且在吊顶上做了暗槽,暗藏投影幕布,沙发对面的储物柜也是暗藏机关哦,推开柜子可以看电视,关上柜门变身背景墙,放下投影幕布就可以在家享受电影院的感觉啦!
书房的结构是结合屏风以及简化了中式凉亭的结构而来的,兼具客房、茶室、亲子室的功能,榻榻米的高度是220mm。书房连接客厅和餐厅,拉开苎麻帘它和其他的公共区域相连接注重家庭成员的互动性,放下苎麻帘它又是一个独立的空间,保证私密性。
约朋友在“凉亭”里喝喝下午茶。
榻榻米上的屏风是实木边框嵌入长虹玻璃。
厨房和餐厅地砖选用了黑白几何纹路的,给空间增加填一些活泼的元素。餐桌和橱柜一起做定制化设计1500*800mm。
餐厅大容量储物柜容纳了双开门冰箱、消毒柜、蒸箱、洗衣机、迷你洗衣机,同时还有收纳功能,所谓是麻雀虽小五脏俱全呀。
洗菜盆是石英石的,超级好用,很好清洁。
厨房简单干净,采用集成灶,增加了吊柜的收纳。
透过书房看到小九九在吃饭哦!通往餐厅的过道宽度920mm。
卧室也同样用了松木木条做景墙
梳妆台写字台,收纳储物多能一体
一起设计定制的儿童床,保证孩子最大的活动空间,和收纳空间的利用。
玄关浴室柜,在设计之前要考虑墙体是否为承重墙,如果不是需要提前加固。
圆形的浴室镜柜,美观又带有收纳功能。浴室柜选配了黄铜把手还可以做毛巾杆,一举两得
一盏灯,一点绿植。浪漫的氛围用心营造。
原始户型
优点: 【1】每个房间的采光都很好,户型方正。
缺点:【1】厨房狭长封闭;
【2】餐厅不够宽敞;
【3】没有书房和玄关。
格局改造重点: 【1】拆除厨房和餐厅之间的非承重墙,为做开放式厨房,和书房做准备。
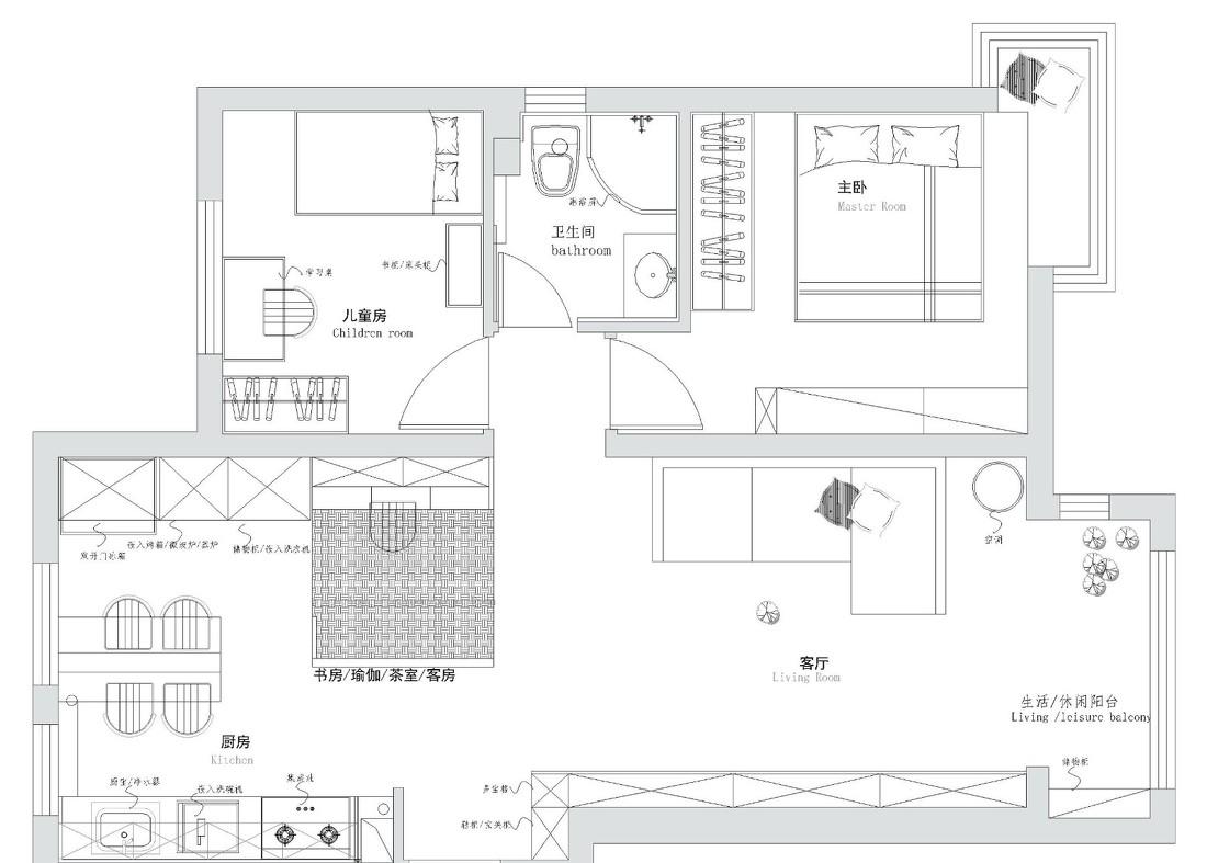
规划后的平面布局:
【1】拆除掉原来的墙面之后增加了餐厅的储物量,和采光,在视觉上变得通透,并且在餐厅的位置偷出一间书房(还可以睡觉哦)2000*1700mm 。
【2】客厅电视背景墙做了墙排储物柜,完美的把电视嵌入。
客服
消息
收藏
下载
最近

























