查看完整案例

收藏

下载
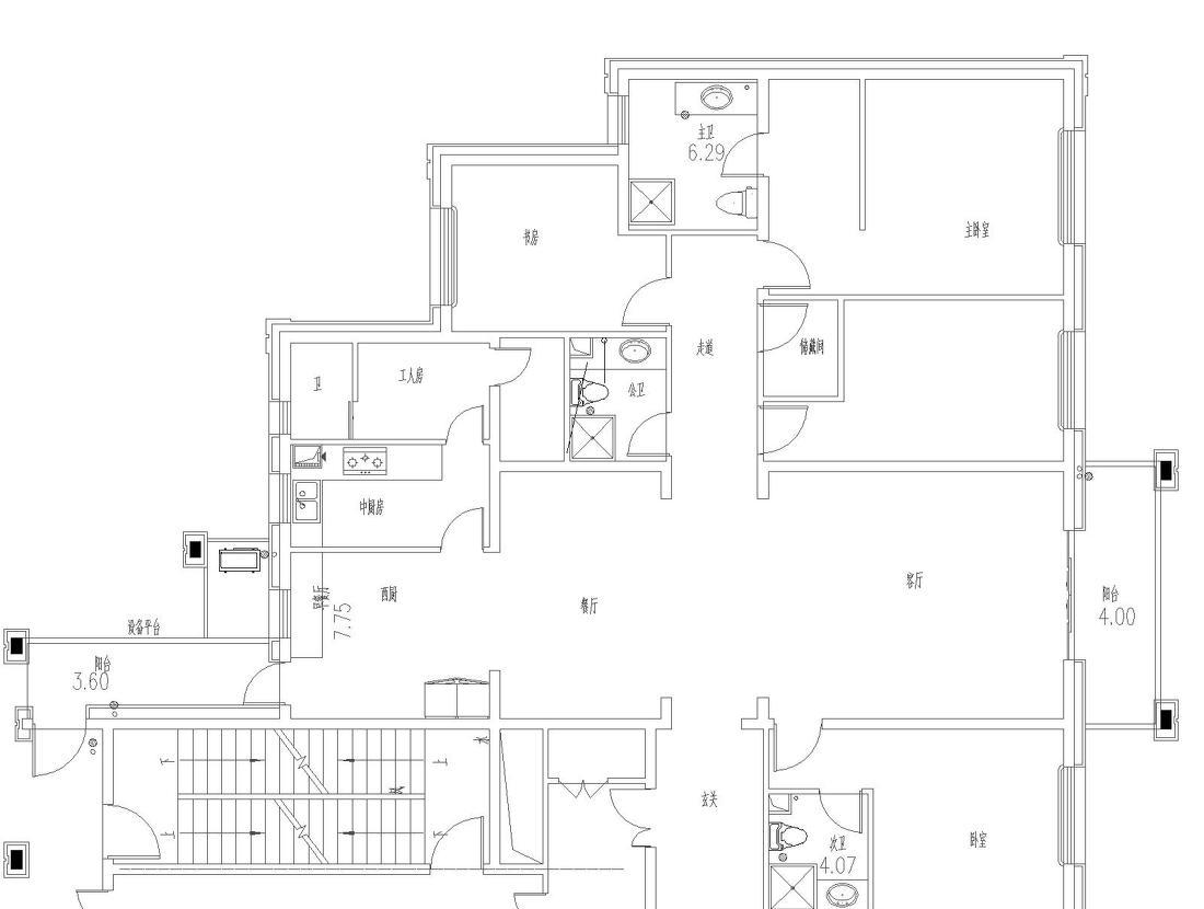
原建筑平面图
平面布局图 重点改造区域: 1.原封闭厨房格局,改成开放式厨房,预留了一个厨房储藏间。厨房的动线大体分成两个区域,里面为中式操作区,外面为西式水吧区。 2.原餐厅位置设计成了亲子互动区,为二胎和家庭生活做准备。保证客厅的仪式感。 3.走廊做了一长排玻璃展示柜,为男业主的收藏爱好提供展示区域。 4.玄关三面从地到顶的鞋柜,解决了收纳难题。也方便了飞行家庭随时行李出行的便利。 5.主卧室设计了两个衣帽间,男女分开收纳,互不干涉。
回到家的第一眼所及之处,一定是愉悦且美好的~ 小斗柜,用于放置一些客人用的拖鞋,鞋油等小物品,美观实用。台面用于放置平时回家的包包钥匙,这些东西都有了专属位置。再也不用出门时慌张的找东西~
入户玄关是一种仪式感也是主人对生活品质的要求。三面暗藏式从地到天的大柜门,既满足了飞行家庭行李箱放置随时需要出行的便利,也能满足一家四五口人的日常鞋物收纳。门口客房的门做成了隐形门的设计,关上门,保证了玄关厅效果的完整性。右边的柜门做了窄框镜子方便出门前整理衣容。
整体色调以白、灰、蓝为主,蓝天白云的联想,是想给业主制造的美好。每一次的出行与回归,都是整个家庭的牵挂。 左边是整面墙的柜子,中间用黑色钢板做了少量的展示区域,这样看起来整洁美观,又方便日常清洁。最下面是四个大抽屉,中间两个是翻门抽屉,用于隐藏游戏和功放设备。电视整个是嵌入在钢板之内。电视背景墙的吊顶上面做了暗藏式的投影幕盒子~
小转角沙发配一盏台灯,偶尔看看书敲敲字都是必不可少的。
整面暗藏式的收纳柜,既满足了整个家庭的收纳需求,也很好的修饰了空间。客厅的音箱功放游戏设备等全部隐藏式设计,满足了客厅多重情景化的场景需求。是交谈,也是放松的地方~
忙碌的生活,有时候需要慢下来,一杯茶一杯水一缕阳光,足够有理由在这里,发发呆看看书。
谁说家里就一定要一个餐桌和餐厅,足够满足功能的前提下,更愿意把更好的空间,留给亲子互动,陪孩子养成好的阅读习惯,亦或是一起堆叠积木。这些应该才是日后最宝贵的美好的记忆吧~我们总感叹时间过得太快,也许设计师很很重要的一个责任就是让空间留住时间。 大柜门用于收纳小孩的玩具,中间的折叠形式的展示架,是希望不管在左边厨房的角度,还是右边客厅的角度,都是完美的呈现!
收纳与展示的比例很关键,好的东西应该留白~
客厅茶几一角
当你还在纠结开放式厨房是否能解决油烟问题的时候,是否有好好思考过什么对于家而言是最宝贵的?请相信你的设计师,除了满足最基本诉求外,更重要的帮您规划更好更适合的生活方式。厨房是烹饪的地方,但随着都市人的生活模式变化,它不再仅仅是烹饪的地方。开放式的厨房,希望烹饪能成为一个家庭的乐趣,家庭成员都能参与其中,开放空间,拉近家人的距离。爸爸做着晚餐,妈妈在一旁辅导小孩作业,这样的场景,不是更打动人心?
利用剪力墙的走道的位置设计了一个嵌入式电视,可以看看美食节目学习下新的菜品,或者早餐的时候看看新闻都是不错的选择~
优雅,是女性的一种生活态度!
边柜兼书桌功能,可以拉开使用也可以合起来,灵活多变。拉开的时候就是书桌的功能。下面的抽屉用于收纳衣物。
主卧室女业主希望浪漫自由一点~不管身份怎样变化,可能每个女生内心深处都有一个公主梦~
全房的吊顶都做了阴影缝的处理,让吊顶看起来更有层次,干净利索。但这同时对工艺要求也很高。窄边门套和内嵌踢脚线,更加是简约风格的细节追求~
非常令人惊喜的是,客户入住的时候,二胎宝宝已经出生~新的故事已经开始抒写~
翻到一张手机旧照,跟业主一起选的柜门拉手。不放过每一次的细节完善~
客服
消息
收藏
下载
最近























