查看完整案例


收藏

下载
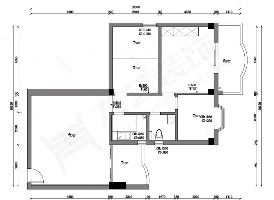
原始结构图
平面规划方案
线条分明的白色开放式厨房,是原先的封闭式厨房和阳台改成的。冰箱烤箱嵌入储物柜,视野中看不到多余的物品。厨房干干净净,每天都可以感受到直播料理的乐趣。
仙人掌旁边是女士必备全身镜,无意中使客厅的视线得到延伸,像多了个空间,面积大了一倍。
墨绿墙面,一张餐桌,就是一个餐厅。亲朋好友到访,它可以是吧台。工作繁忙时,它也可以是工作台。
客厅、餐厅、厨房,以中岛台作为缓冲区。端菜取物方便,动线合理。洗手池旁隐藏了洗碗机,饭后不用纠结谁洗碗。
客厅、餐厅、开放式厨房,空间互借,利用率高。层次丰富,视线开阔。设计师利用顶灯和色块,似有若无地给每个空间做了隔断。
墨绿色与粉色搭配得刚刚好。转角的拼接是个绝笔,设计师韩立宁利用视觉原理扩大右侧空间。
金属线条提升了整个空间的档次。
不像印象中的黑白灰,这个北欧风干净有色彩,大色块调出独特的空间气质。
马卡龙糖果色系,写满女主人的少女心。森林系的墙,吸收掉顶层多余的光线,清清凉凉,心情愉悦。
客餐厅的挂画是几个抽象的色块组成的,简单而无意识。生活纯粹不复杂。
卧室延续了整屋的墨绿色,在北欧风中穿插了一丝中国风。
客服
消息
收藏
下载
最近























