查看完整案例


收藏

下载
几何色块的艺术挂画加以几何雕塑,几何抱枕,几何地毯,没错,我们就是要给你生活几何。
入户吧台镜面的设计,让视线不至于堵塞,却又避免如果通透,沙发看过来的尴尬和不雅。
大梁的巧妙处理,让梁低得有理由。
在如今,太多年轻人不再痴迷电视,又美观又方便的投影,逐步成为很多家庭的热宠。功能逼格两不误。
空间的很多物品的颜色,图案似有似无的关联着,适当的艺术品陈列,大大的提升了空间的格调。
艺术的墙面挂件和餐桌上摇曳的蓝莓干支,以及蓝色的过道,巧妙的呼应起来。
细节之美。
橱柜下面设计的水泥地台,让小强无处藏身,而且拖起地来,不再害怕脏水会进到橱柜的下面。
细节小雕塑的点缀,让空间多了一些艺术气质。
书柜和鞋柜的巧妙结合,插座的非常规高度设计,让线不再吊着。
入户玄关和客厅的打开,让整个空间的可视距离达到了最大化。
洗手间
不对称式的床头灯设计,让原本有序的软包床头多了一些调皮。
过道的木饰面,就像在主卧白色的空间里,切出来的一个木盒子一样,有趣的空间魔术。
简洁的梳妆台,搭配不一样的壁灯,让每个清晨和夜晚你都是最美的星。
主卧床头的克莱因蓝中点缀金色壁灯,显得格外的精致。
主卫的隐藏门设计,解决了这种开门见卫生间门的尴尬格局,也避免了风水的问题,让空间整体化。
主卫隐藏门
卫生间同样搭配着克莱因蓝,在金色的修边下,显得格外的优雅。
故意的加宽拉手设计,露木色柜体的巧妙小设计,让衣柜多了很多设计感。
一体化的定制设计,简洁明了。
对面这种落地凸窗如何放床,我想这应该是一个教科书般的案例吧。床头后面的空间刚好放两个大箱子,不费劲的推进去就好哦。
有些空间不需要多余的手法,简洁就好。
简单而明了的空间处理,衣柜和床头柜以及床体的一体化设计,解决了小空间床头柜影响衣柜使用的痛点。
我们尝试用一些简单的颜色,和空间结合, 我们在公卫和餐厅之间开了一条玻璃隔断, 透过客厅和餐厅白色的墙壁, 却看到另外一个蓝色的空间, 让原本平淡无奇的过道,成了全屋最亮丽的风景。
逼格满满的壁炉其实也是一个巨大的收纳狂人。
空间东西不用多,点睛就好。
20平方的尺度,150平方的空间感受。
20平方的尺度,150平方的空间感受。
各种材质,图案的交汇,成了设计的语言。
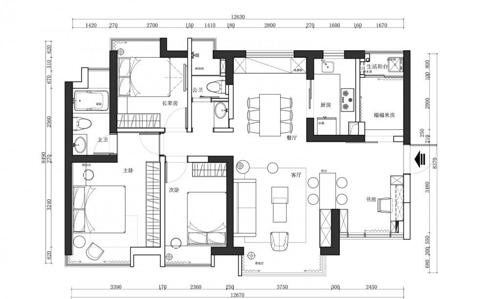
最后附上平面图给一些喜欢研究平面的小伙伴们
装修前后对比照。
装修前后对比照。
装修前后对比照。
装修前后对比照。
装修前后对比照。
装修前后对比照。
客服
消息
收藏
下载
最近







































