查看完整案例

收藏

下载
当人们的空间被各种物质挤压的时候,也就失去了本质,我们要去掉一切虚假的、表面的、无用的东西,而剩下真实的、本质的、必不可少的东西,因而得到更多的空间、更多的舒适、更多的效率、更多的美……
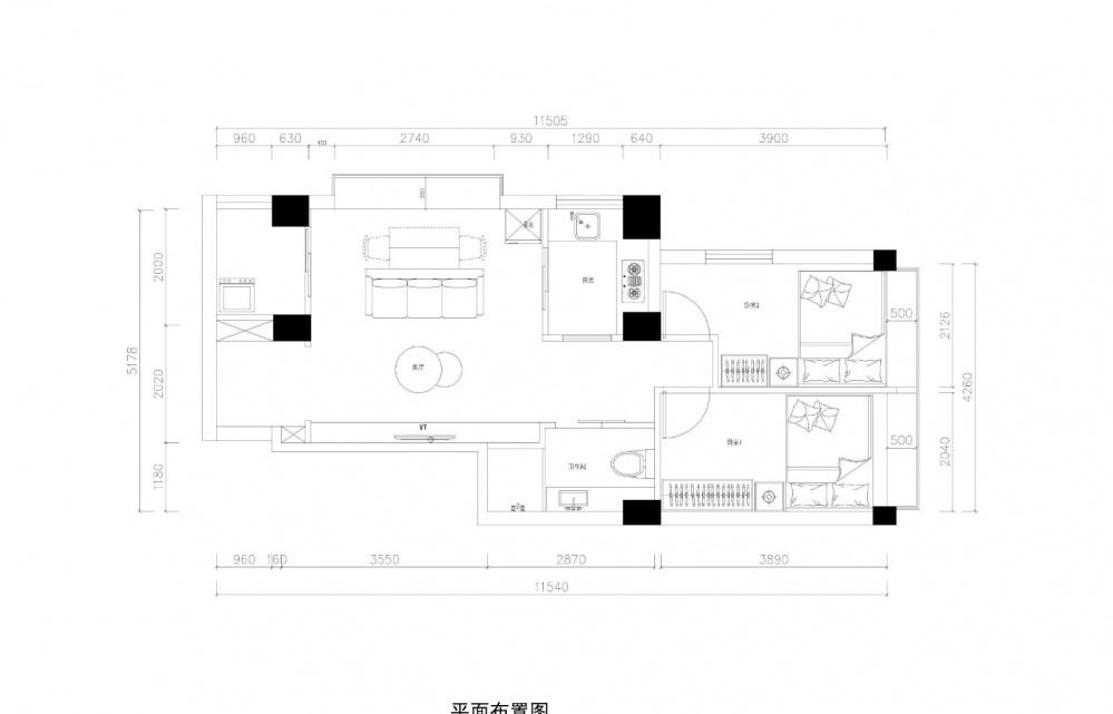
本案例为一处面积为60㎡的旧房改造,改造前全屋只有三个窗户造成采光严重不足;本来室内空间就有限,过多的墻体让这样原本就小的空间变得更拥挤。
设计师通过拆除室内墻体,重新划分空间,不但解决了空间浪费的问题,还提高了空间实用率。值得一提的是通过打拆外墙将窗户数量增加至7个,采光问题也得到了解决。
通过墙体拆除重新划分空间后,打破了原户型客厅太过狭长的弊端,增加了客厅的使用面积,使空间更通透宽敞。用玻璃推拉门代替传统单开门,不但减少了实体墻对空间的压抑感,还大大增加了室内的采光,一举两得。
造型简洁、低矮、小体量的家具,可以让空间看起来不会那么拥挤。
白色的窗帘,灰色的沙发,原木色的桌子,构成一个和谐的画面。
一册书,一枝花,既迎合了业主喜爱的简单干净,又增添几分文艺的气息。
由于业主喜欢简单干练的家,设计师以黑白色为主基调,并没有过多过杂的装饰,给人一种清爽自在的感觉。适当点缀亮色的陈设品,增加温馨感。
大面积的白色与灰色家具的碰撞,更突出简洁的气息。
沙发与抱枕又带来几分柔软的气息
通往厨房和阳台的运用大面积的玻璃推拉门,光线的弥漫让原本偏冷调的空间,暖意十足。厨房同样以黑白灰为基调,简洁大方,一切从实用出发,添置生活的必需品,还原生活的本质。
厨房是非常能体验生活品质的地方,一个高颜值的厨房能够完全显现主人的品味。
两卧室风格一致,纯色背景墙看似简单,却道出了屋主的咖位;摒弃了以前房间小小的窗户,增加了飘窗设计,这无疑也是老房子梦寐以求的一个设计点。
卧室优雅而宁静,低饱和度的色调下,没有过多的装饰
摒弃一切繁复冗杂的摆设,用简洁舒适的语言勾勒出生活的质感。
墻面与地面采用统一地砖,在视觉上延伸了作用,减少了空间局促感。定制收纳柜子,更好的贴合空间需求,而且上不到顶+下不到地的设计,不仅是为了美观考虑,更多的还是为了减少拥挤感。
合理的对空间重新整合,将原本拥挤的空间变得宽阔宜居。最简单的配色和极简的设计风格,让旧房焕发光彩。
阳台因梁不能将外墻完全砸掉,设计师便在梁的上下开了两个窗户,终于让房子有了标配的生活阳台;满足了原本没有阳台的房子有了既富有设计感又增加了室内采光。简单的白色墻面在视觉上增大了空间面积。
客服
消息
收藏
下载
最近




















