查看完整案例


收藏

下载
▽地下庭院
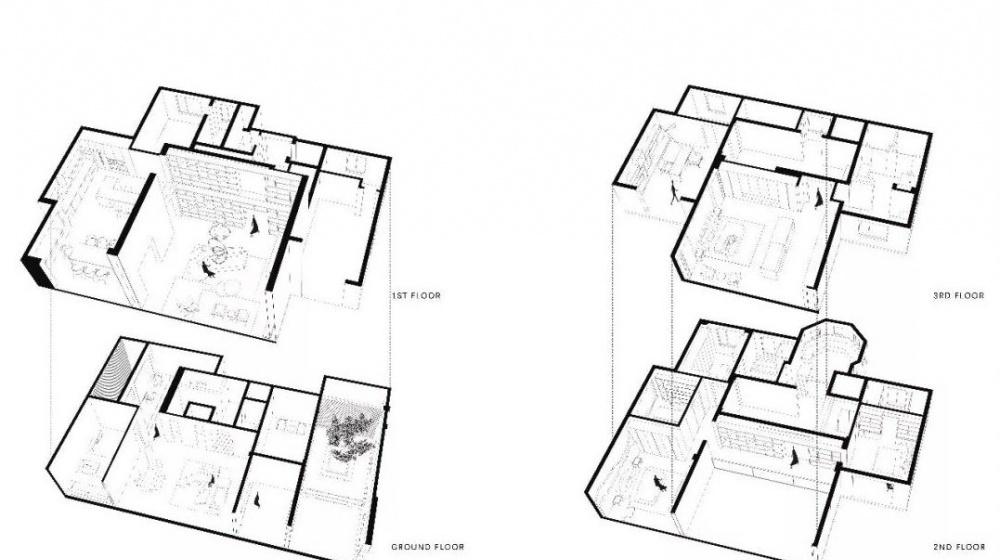
这是位于浙江省嘉兴市的一处独立住宅,拥有开阔的景观用地,建筑面积1000平米。业主曾留学澳洲,金色黄昏、风的轻佻、王子公主、世界懒洋洋...
▽入口及公共空间
室内空间设计中,灯光及楼梯空间采用线性的设计手法。配色上则选择黑色与白色。设计师运用石材、木饰面、编织地毯、玻璃等材质结合两处天井花园的设计,让空间承接如同景观一样连续的、沉浸式的体验。
▽客厅及开放式厨房
住宅虽然在表皮上模仿欧洲古典主义,但厚重的建筑线脚装饰已经成了滥俗而没有意义的符号。我们尝试通过增大开窗来降低整体建筑的厚重与符号感。
▽卧室及次要空间
项目名称: JIA宅 . 巢
设计事务所: 朴居空间设计研究室(PUJU
&无研空间设计研究室(WUY)
项目地址:浙江省嘉兴市
建筑面积:1000㎡
设计团队:遥千 王欣 李婷婷 佘露露 Diamond Allen
项目完成时间:2018-07
摄影:Purel
施工团队:上海睦博装饰
文字:Purel
家具品牌:minotti、Cassina
客服
消息
收藏
下载
最近




















