查看完整案例


收藏

下载
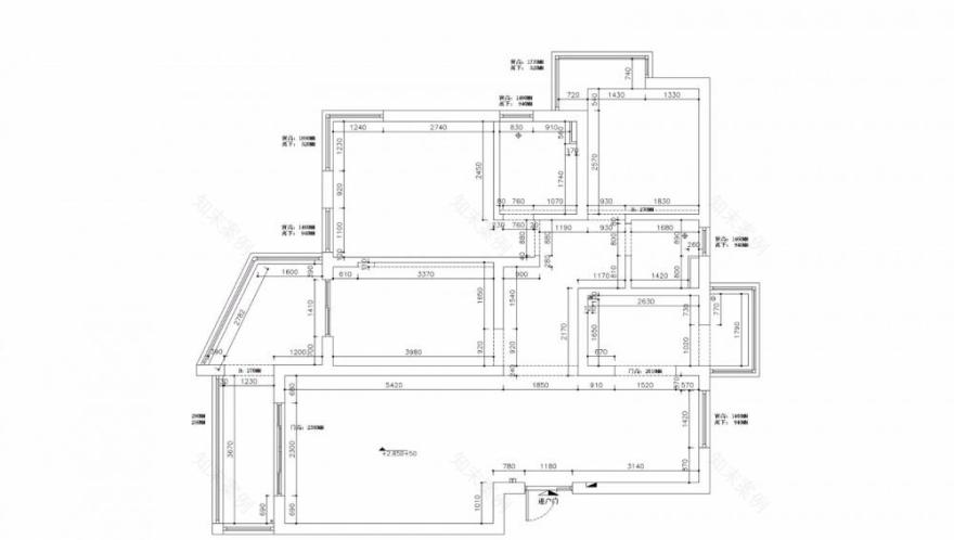
改造后的平面方案采用全屋通铺瓷砖,达到大环境的统一。在每个区域都设计了柜体,加入大量的生活储物空间。原始房型户型比较方正,为了满足业主的生活习惯,做了局部的调整改动:
1、入户玄关柜与客厅书架结合;
2、阳台一分为二,使客厅与女儿房拥有独立阳台,用柜子分隔;
3、借用女儿房部分空间,增加了主卧衣帽间功能区;
玄关柜由黑色柜体+白色面板组成,上层储藏杂物,下层存放鞋子。柜体与客厅书架相邻,玄关柜的存在避免了入户直视客厅,在客厅只能看到书架,并不会注意到玄关柜本身。
地面石材质感的瓷砖与墙面木质材料构成客厅主要的两种主要材质。顶部环形暗藏灯带、暗藏射灯、北欧款式主灯构成客厅照明系统,丰富的灯光照明,与暖色系的饰面板结合,带来明亮温馨的居住体验。
客厅的电视背景墙设计兼顾了美观与实用功能。采用地台+柜子组合形式呈现,值得一提的是柜子没有做满墙,与地台之间留了30公分的空间,并用安装灯带照明。让客厅的使用者在这个环境中不会因为整面的柜体而感受到压抑。
白色柜门与原木色柜体,为背景墙带来了很好的空间感。柜门使用内装的安装方式,让柜体露出部分边缘,可以自然地充当木线条来修饰,与沙发背景墙形成呼应。
L型的书架连接了两个面,空间视觉得到了延续,同时书架拥有超丰富储藏空间,可以收纳上百本书籍,地面特意留了地插,后期放上落地灯,就形成了阅读角,完成空间功能转换。
沙发背景墙与电视背景墙不同,仅用木饰面材质大面积铺贴,并延续至门厅,搭配黑色皮质沙发、黑色细线条落地灯,用简洁的竖线条勾勒出精致的立体感。
餐厅餐桌椅居中放置,深咖色桌椅很好地与地面瓷砖颜色融合。沙发背景墙木饰面延续至厨房墙面,并用白色踢脚线、门套装饰,厨房与餐厅之间用双轨磨砂玻璃移门分隔,阻隔油烟与视野。
在餐厅靠窗处为女主人量身定制了西厨操作区,钢琴烤漆柜门与石英石台面装饰,主要用于女主人为一家人料理早餐使用。同时这里也作为餐边柜使用,台下丰富的储物功能满足日常使用所需。
利用高低窗加入了书桌与飘窗台连体设计,满足在卧室阅读、休闲、储物功能,丰富卧室的功能空间。
地面深灰色瓷砖奠定了卧室色彩主基调,浅灰色床头背景墙面搭配灰色床品家具,共同打造黑白灰色系北欧风情居住体验。
主卧卫生间尺寸1910*2600mm布局了浴缸、马桶以及洗手台,墙地面均用自然石材纹理的瓷砖包裹。
干区墙面铺贴马赛克六角砖,丰富这个空间的质感,并且安装了镜柜,满足储物功能需求,镜柜上下安装了灯带照明,用柔和的灯光去衬托石材的质感。
客厅阳台定制的柜子满足装饰性与储物功能的同时,起到分隔女儿房阳台的作用。原木质感的柜门与客厅墙面相呼应,特殊构造的柜体给到储物更多的可能性。
女儿房的阳台原先与客厅阳台连通,重新规划后的空间利用衣柜分隔,让女儿房拥有了独立的阳台书房,保证了儿童房空间的私密性。
客服
消息
收藏
下载
最近




















