查看完整案例


收藏

下载
整体块面处理手法,利用不同材质质感与肌理不同划分各个功能区域,把电视机与电视柜做墙体内嵌,干净利落,白色大理石的自然纹路,白色乳胶漆和谐一体,整体色调中性色系为主,地面拼花地板,色彩与肌理上的对比,让整体客餐厅空间简约又不失单调性,营造一个业主与家人安静相处的空间。
咖色木直纹餐桌,配淡灰色皮质餐椅,让餐厅这里不是一个简单的就餐区域,同时考虑业主需要处理简单工作的区域,餐厅没采用吊灯,三盏LED聚光灯直接照射在餐桌上,让就餐环境简单明了。
白色平顶吊顶设计,浅灰墙纸搭配定做的平板开门衣柜,让卧室也多一份安静,简约
浅色的榻榻米与深色的外部墙板形成对比,顶上聚光LED灯营造一个简单的喝茶办公区
结合小朋友对色彩的喜好,以蓝色系为主,配上米色窗帘加蓝边,恰好的呼应与对比。
白色的墙砖,白色的吊柜,深灰色的下柜体,给厨房一个明亮,功能满足的空间
卫生间改建后面积不大,采用高光白色带灰色纹路瓷砖,简约通透。利用墙体厚度做内嵌,解决卫生间洗漱用品的摆放。
阳台是业主另一个重要的休息区域,没有简单的设计成洗衣晾衣功能,一套铁艺加木质的户外休闲桌椅,绿植,配水泥灰墙砖,营造一个安静的角落:喝茶,看书,与植物.阳光.夏天的风亲近
当阳光照进窗户洒在地上,在这个宁静空间里,简约又不失秩序,能够感受到一家人安静而又和谐相处的画面,设计的意义亦是如此简单。
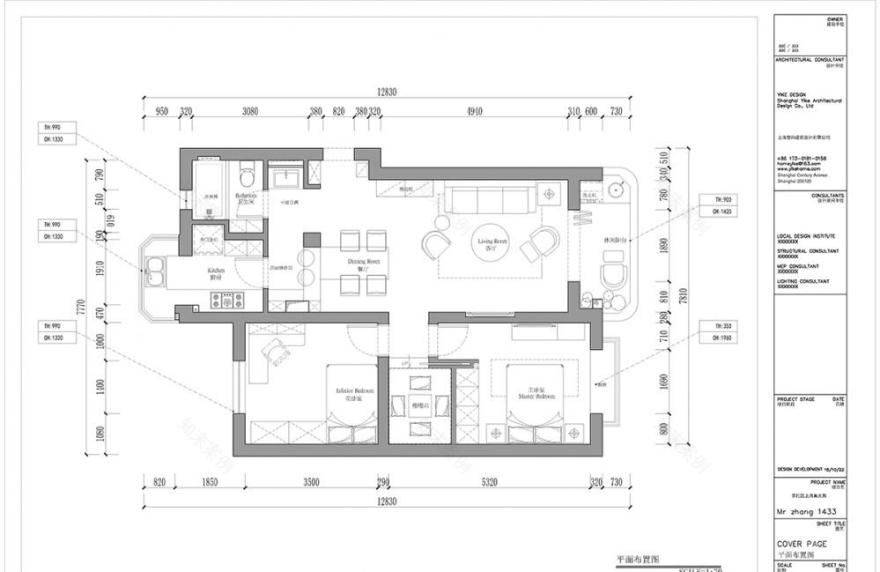
原始户型不足:(1)进门收纳位置需要合理解决(2)卫生间门与厨房门离进户门太近,使进门与这两者空间动线混乱(3)餐厅面积不大,且与厨房门太近,使用过程中会有局促感。
平面改造:经过与客户的大量沟通,设计师精心设计改造后的的平面方案,满足客户的所有需求,合理利用每一块空间。(1)进门利用墙体空间在右手边做了收纳柜(2)利用北阳台空间,厨房与卫生间整体往北推,增加一处独立的功能空间:操作台或吧台,巧妙的解决了餐桌摆放问题,把去厨房和卫生间的动线并成一条,把厨房与卫生间墙体敲掉改建成厨房冰箱位置与厨房高柜收纳,解决冰箱与煤气灶过近的问题(3)利用原来主卧的衣帽间改造成一个榻榻米,解决业主独立的喝茶区,办公与收纳功能(4)把客厅到阳台的移门改成折叠门,扩大客厅开间,把阳台设计成一个洗衣功能区域和业主休息区域。
客服
消息
收藏
下载
最近
























