查看完整案例


收藏

下载
一个简单干净的空间总是更让人感到舒适,复杂的外部设计反而容易让人疲惫。因此设计师从简约出发,并未选择过于繁琐的装饰品,而是选用不同的经典色区分出层次感
客厅选用黑白灰为铺垫,配以少许暖色调以冲淡庄重感。茶几和电视柜木色框架搭配深啡网大理石台面,使得几何造型感更为突出,而较为低调的蓝色和橙色在整个空间中稳重又带有一丝活跃
餐厅整体以黑白灰为主色调,餐桌部分选用圆桌白色大理石面,对比分明;暖色的灯光配香槟金的门板,使整个空间变得柔和,球形简约吊灯与圆桌搭配得刚刚好,深色调的餐椅也使得与餐边柜呼应。
休闲区删繁就简,用最干练的笔触,描绘出最丰富生活场景;这里可以晒晒太阳,浇浇花,看看书,喝喝茶......
主卧床头选用暖色灯带为整个空间营造柔和的氛围,大块面的金色硬包配上深色系木饰面,更添一份自然韵味。
黑白色调书房,深色书桌和书柜,配浅木色的地板,气质出众、优雅。顶面的装饰吊顶,为了美观的同时,更多的是考虑原本这里是厨房位置上面的管道检修,生活更是如此完美......
儿子房便是为了配合男孩子的气质,浅蓝色的墙纸,给空间一分宁静,黑红相间的跑车款床具,更加增添男孩子活力运动的气质;拆除后的飘窗完美的呈现了一个书房的功能.....
女孩房一摸清新的浅绿配浅粉,萌萌地.......
暖暖的灯光一打开,整个房子舜间明亮起来,温馨朴实,干净舒适......
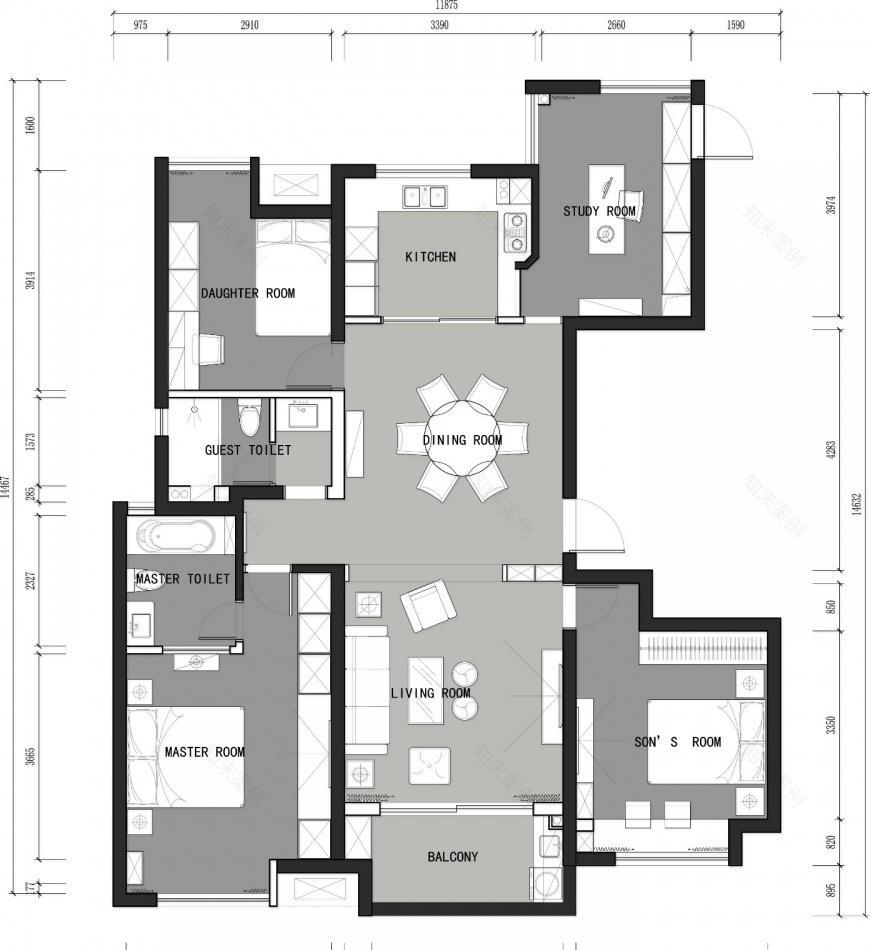
在功能布局的设计上,我们一直遵循的法则,合理利用好每一个空间,首先要满足日常的居住功能需求,然后在满足基本需求的情况下,尽量放大空间,采光通风是居住的先决条件,尽可能的考虑到极致,实现空间不一样的价值;这套户型的功能调整也是整个户型的亮点,比其同样户型的空间,实用率和空间感是完全不一样的;主要厨房和书房做了位置的调整,主卧衣柜的布局和卫生间之前的处理,所有房间的飘窗都做了拆除,阳台和客厅做了打通处理,让每个空间都比原来的放大,改造后,客户非常满意,也充分体现我们设计的价值。
感谢客户最终的认可,客户的满意是我们前行的动力和不懈的追求......
客服
消息
收藏
下载
最近



































