查看完整案例


收藏

下载
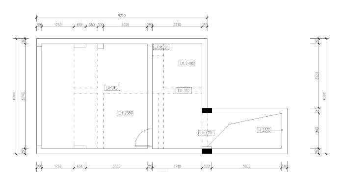
首先最大的问题,就在于楼梯。目前原始户型的楼梯仅仅是作为了一个上下功能而存在,它并不符合一个别墅楼梯该有的气场和体验感。因此改楼梯是势在必行。我们再来看下,原始结构中还存在哪些问题。(图片顺序依次是负二楼、负一楼、一楼、二楼、三楼和四楼)。
很多人都说,楼梯是别墅大宅的魂;在我们重新设计与规划空间后,率先将楼梯果断改成了圆弧形。通过土建工程将负二层的L型空间变成了方块型,大大增强了储物空间。
负一层的空间过于零碎,这会让本就几乎没有光照的空间变得更加狭隘和难受。
负一层将所有多余的隔墙全部拆除,保证每个使用空间是舒适宽敞的;地下室的除湿系统智能控制,阴凉干燥的环境非常适合藏酒,平时三两好友也很愿意在这里品酒聊天。
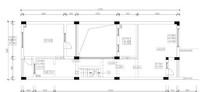
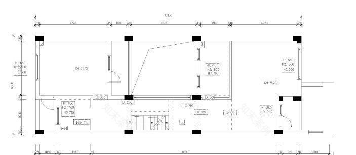
一层的中空井位置十分尴尬,不仅破坏了楼梯及公共区域的互动性,也把餐厅及厨房位置挤得很不合理;其次无论是南进门还是北进门都是一通到底,私密性很差,这会降低业主的居住体验感。
改为旋转楼梯后,使得一层的南北进门都有了玄关遮挡,增加私密性的同时也提升了居住体验感。将原本天井的位置改为餐厅后,完全释放了厨房空间,增加西厨后的区域使用功能变得更强;同时餐厅与客厅的连贯性也变得更好,生活动线清晰且合理。
尽管更改成旋转楼梯会占用一些过道的空间,但是设计中想要得到合理的更好的生活体验感,就必须加法和减法一起运用。
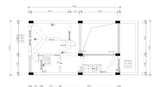
二楼和三楼的问题差不多,主要是出在楼梯和中控井上,目前空间的畸零角落有很多,生活动线很不方便,且卧室空间在很大程度上都被二者影响了。
三楼原本天井的位置被做成了阅读区,挑空至四层的阅读区不仅开阔舒适,光照也十分充足;可以看到每个房间都设计了一些储物空间,因为随着时间的推移,家里的杂物一定会越来越多,良好的收纳储物空间,就是保证生活精致的重要条件之一。
四楼的空间显得很杂乱,被分割成好多块后缺失了空间的连贯性,因此在使用功能上会略显乏力。
四楼将隔墙拆除后重新规划,将书房做成男主人的独立空间,因为该空间只是定义为阅读、办公和私密会客的功能,因此减去淋浴房从而增大书房面积,增加书房的使用体验感。
这是当时在比对材质小样。
这是在现场核对与确认每一个细节。
设计师正在摆场调整~
设计师正在摆场调整~
设计师正在摆场调整~
这是我们的设计方案完成稿之一。由此可以看出本案的落地性和完成度极高!
值得一提的是,这幅画是我们专门找老师为业主画的。在设计私宅过程中,我们一直希望能帮助业主找到最能表现他们过往故事或经历的一个空间,或一个角落,然后每当有客人到来时,主人都能将美好的回忆往事娓娓道来。
每一个项目中,需要用到的材质,我们都必须搜集全部小样后细细甄选。
客服
消息
收藏
下载
最近













































































