查看完整案例


收藏

下载
在干净的白色和浅蓝色空间里,每天下班推开门的一瞬间所有的疲累都消失啦,搭配装饰挂钩完胜不锈钢挂钩。
客户的小宝贝,每天都尽职尽责的迎接家人。
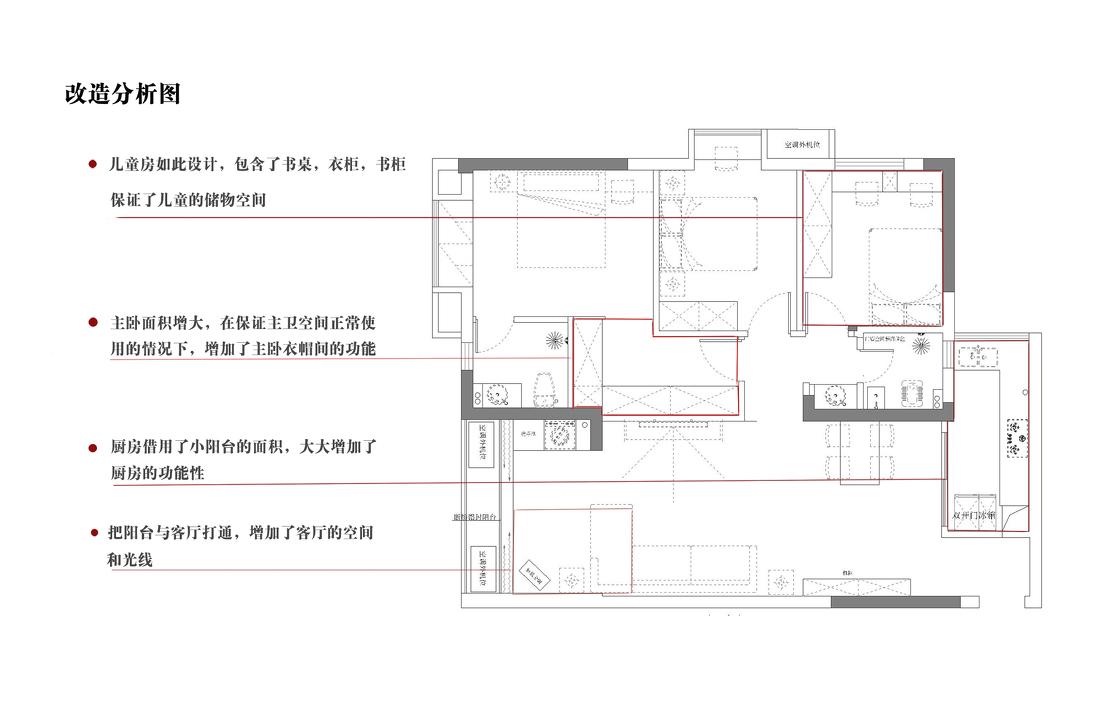
这是一个四口之家,平时老人也会来帮忙带孩子。颜色明亮是首要考虑的,搭配圆形的茶几,孩子在客厅玩耍的时候会比较安全。
超大鞋柜满足客户四季的储藏量。
厨房设计的高低台面,洗菜和切菜是90公分高,1.6米的女主人 和1.78米的男主人用起来都说方便。炒菜的台面是距地80公分高,动线也比较合理,洗菜、切菜、炒菜、装盘等干净清爽。
餐椅是淘的,小孩子还比较小,吃饭容易把菜弄到椅子上,业主又不想要树脂和实木的椅子想要柔软的,就选的防水布面料。餐桌是大理石台面的不用再铺玻璃也比较好打理。
餐厅的灯光打在餐桌上暖暖的,很有吃饭的氛围。
卫生间配色是经典的黑白搭配,然后采用了小格子墙砖阵列排序,空间感更大。
主卧把原有的飘窗拆除了,做成了储藏柜。设计了一个床头柜和一个化妆台的形式也可以当床头柜的功能。
主卧考虑到女主人比较喜欢时尚的复古,大面积的绿叶,墙纸背景配简美的架子床。
两个宝宝的书桌当然要大点,墙面是可以耐刮的竹木纤维板
衣帽间是女业主非常想要的,但是又要保留主卧卫生间,我们就借了走道的面积和一小部分的主卧卫生间的距离。
吊柜下面的空格是可以放女业主的小多肉,
还有个专门收纳衣架五金。
客服
消息
收藏
下载
最近
























