查看完整案例


收藏

下载
-1F原始平面图
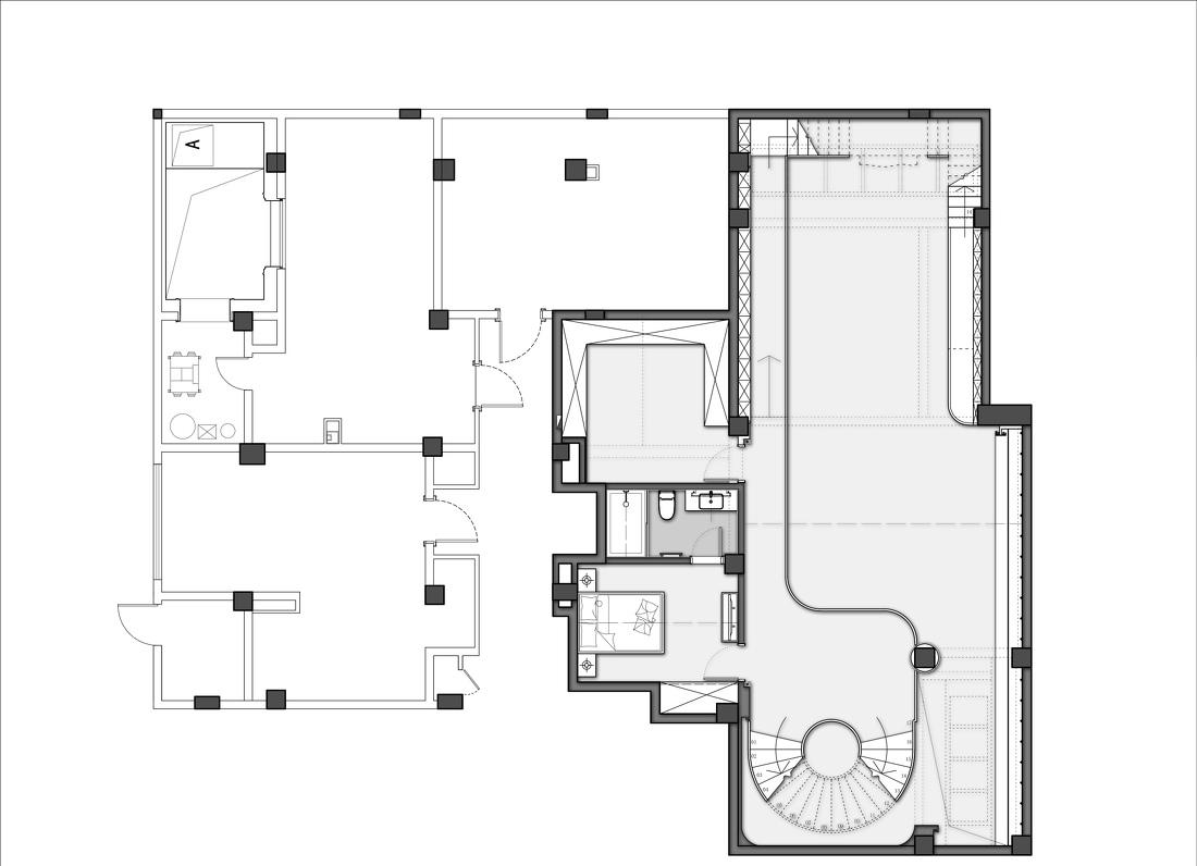
改造后-1F平面。设计对地下室的改动较大。首先,推掉了不必要的墙体,将柱间梁隐去,空间变为“板柱结构”的模式,这样有助于平面自由化,地下室成为一个统一且纯粹的空间。
改造后-1F平面。新增了一个中空夹层。
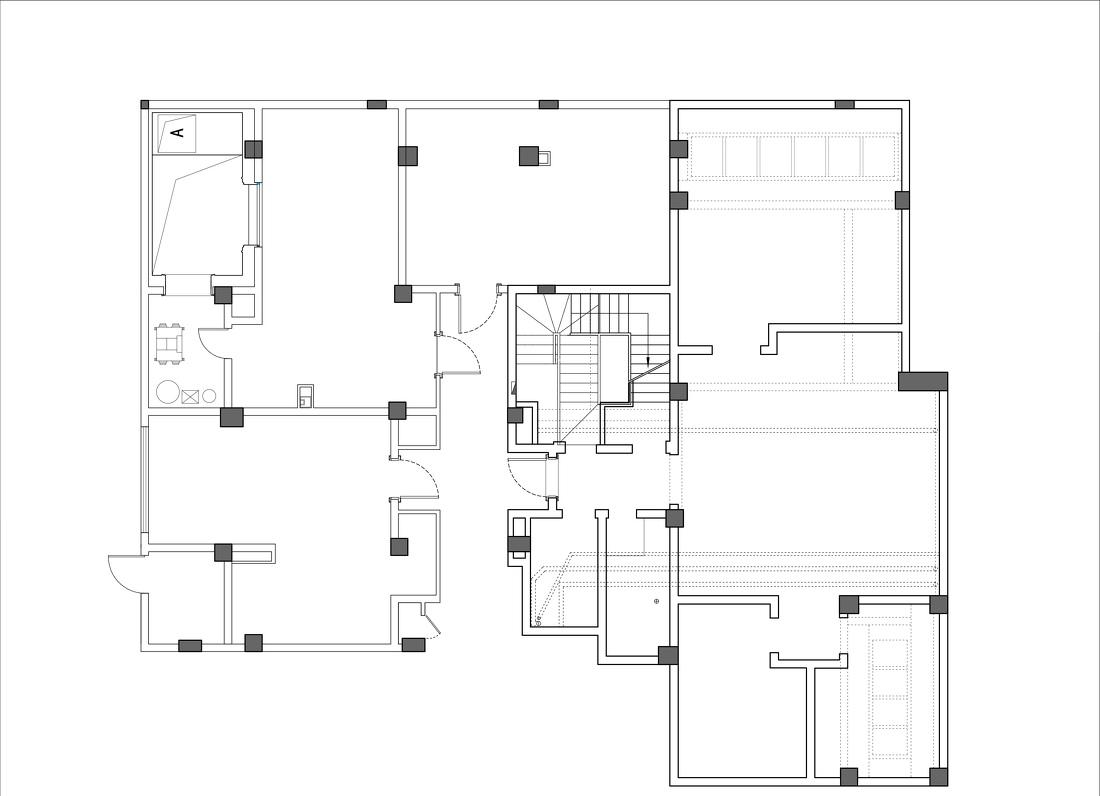
1F原始平面图
改造后1F平面。
【楼梯 坡道的组合,营造了变化的室内场景,丰富了空间视点,人的视线得以穿透和变换,人在空间内可以自由互动与交流。】不一样的#地下室 设计
天花和天窗倾泻而下的弥散光线经过折射,到达地面,然后再一次轻柔地反射回到空间里。设计与自然的关系延伸至材料的使用。房间内的墙壁、地板和天花均覆盖以天然质朴的材质,营造出舒适而温馨的室内氛围。
【坡道图书馆下至吧台料区】
坡【坡道图书馆。坡道使图书馆墙产生了一些微妙的形态变化,结合铁艺格栅的走廊,空间更具层次感与趣味性。】#地下室 图书馆
【地下室改造从水平空间和垂直空间两个维度进行考虑,水平空间主要有沙发休闲区、吧台料理区及麻将室、客卧、卫生间、储藏间等功能房间;垂直空间主要是一个图书馆和山水背景墙。】
#地下室 空间被打通,有一个#吧台 #客厅 #图书馆
【从平面去看,整体分为两个区域,一侧为挑高开放的公共空间,另一侧为双层功能房的私密空间。】#地下室
#橱柜 #吧台 不一样的#地下室 设计
【空间的中心变得没那么鲜明,新颖的形态和组合之间形成了一种张力和摇摆不定的联系,设计的唯一性和确定性因此存在于它们的平衡之中。】
【锈痕纹理细部】
#客厅 #沙发背景墙 #地下室 视野开阔,空间大气沉稳。
#楼梯 #客厅 #背景墙 非常不同的#地下室 设计
【设计师通过坡道来组织和活跃整个空间的流线——卧室、图书馆、吧台料理、会客区、麻将室、山水背景,达到了可以“边走边欣赏”的室内空间状态。可以说,坡道的设计是空间里最有意思的地方。】
【设计师吸收了柯布西耶“建筑漫步”的设计理念的同时,在新的层面上对它进行了发挥。半围合的坡道创造了一个中空的空间,串联了隐私空间和公共空间的动线,同时使坡道对空间的干扰降到最低。】
【私密区域望至公共区域】#地下室 双层
#地下室 空间因#楼梯 的#神设计 ,人的视点丰富,视线开阔。
#楼梯 #现代 设计手法融入#中式 元素。
【坡道图书馆望至另一侧】
【设计与自然的关系延伸至材料的使用。房间内的墙壁、地板和天花均覆盖以天然质朴的材质,营造出舒适而温馨的室内氛围,增加了材料细部的可读性。】
楼梯的改动对空间影响很大。设计师移动了楼梯位置,空间动线更为流畅,透光性增强。日光与树影通过顶面和侧面的窗户柔和地洒入楼梯间和地下室,人的起居活动伴随自然光影变化而进行。另一方面,一楼客厅的空间也变得更为开阔。
【楼梯的改动对空间影响很大。设计师移动了楼梯位置,空间动线更为流畅,透光性增强。】
【楼梯——空间之眼】#楼梯
空间里最有意思的地方是坡道的设计。
设计师通过坡道来组织和活跃整个空间的流线(卧室、图书馆、吧台料理、会客区、麻将室、山水背景),达到了可以“边走边欣赏”的室内空间状态。
【仿水泥艺术涂料、大理石、柚木格栅和仿古黄铜等材质共同营造出一个清雅大气、求实兼蓄的人居空间,胡桃实木家具、灰泥艺术涂料、岩石锈痕纹理壁纸……自然元素映射入室内,厚重质朴和轻盈通透并行。】
#客厅 #茶几 #走廊 #现代 设计手法融入#中式 元素
#玄关 #现代 手法融入#中式 元素
#玄关 #走廊 #收纳 #展示柜
#玄关 #走廊 #收纳 #展示柜
#餐厅 #餐桌 #餐椅 #餐边柜
【主卧。设计师将现代化的居住体验同传统设计元素结合起来,使住宅得以展现出一种理性、精致、和谐的美感。整个空间利用结构、材料、室内外关系激发身体感知,人与建筑在这样一个空间维度里复焕生机。】#卧室 #床 #背景墙 #床头背景墙
#卧室 #床头背景墙 #现代 手法融入#中式 元素
#卧室 #床 #床头柜 #装饰画
#卧室 #床 #床头柜 #装饰画
【奶奶自己做的根雕作品。】
小孩房
小孩房过道
客服
消息
收藏
下载
最近























































