查看完整案例


收藏

下载
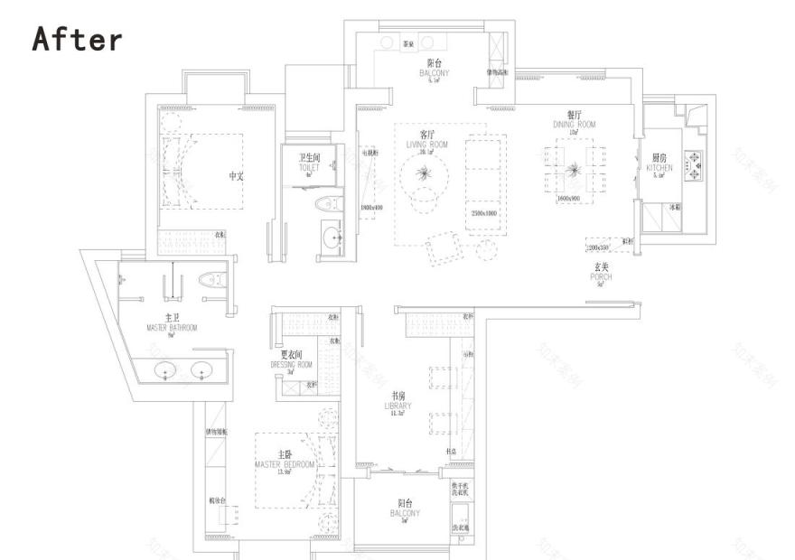
先来一波改造后美图速览~
来到实地进行量房勘测和基础沟通调研后,软装小组为小姐姐梳理出不少精装房Before版的Bug、并针对问题给出After版的改造方向。
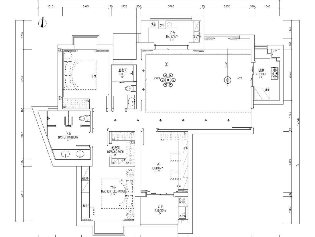
原始户型图
改造后:结合业主出门习惯,缺少一个独立功能玄关 ➡ 利用定制鞋柜、顶天立地全身镜打造2.5㎡实用玄关
走廊略长、大门直对过道墙 ➡ 改造过道墙、增加玄关和端景
2个生活阳台看起来配置有余,实际利用率不高➡ 阳台1改造为会客+休闲+收纳的多功能区
缺乏独立的梳妆空间 ➡ 设计师在主卧预留梳妆区
缺少娱乐室 ➡ 最外的房间改为休闲娱乐室,定制双人使用电脑长桌
服饰、衣帽多,只有一个小衣帽间,全屋储物空间明显不足➡ 定制设计储物区,容量递增3倍
通过对比小姐姐的色彩分析和原始空间色彩构成,最影响空间氛围优化的是原本的红棕门+猪肝红地板,要换掉;
设计师综合考虑后,为业主保留了全屋天花和公共区地面:既满足她的色彩喜好、又符合后续改造的现代风格用色方向、还能控制尽量低的精装房拆改成本。
还有一些精装房固定化设计导致的小毛病,比如插座预留不足、开关点位不合理、灯位不齐等(在后续的细节改造部分,设计师会针对全屋涉及局部硬装的问题做改动设计)。
设计师通过软装需求调研问卷了解用户生活习惯后,发现小姐姐是一个懂追求和享受舒适生活状态的人。她对穿搭时尚颇有心得,体现在生活上,她希望在家能在一个美的环境下得以最大舒展放松,能和朋友一起“开黑”玩游戏、陪猫咪一起窝在沙发上、随时睡个美容觉...
从这些信息里,设计师提取出【时尚、娱乐、舒适、动物】的关键词,结合风格调研中业主色彩喜好的【黑白灰、粉、金属色】跟【时髦、简约、轻奢】审美的把握,最终碰撞出本次软装设计的灵感来源和设计方案。
1938年Schiaparelli时尚插画、1957年奥黛丽赫本主演的以时装界故事背景的经典电影《甜姐儿》,烟灰粉白裙装、黑白灰裤装等穿搭配色在影片上映之后迅速掀起热潮;粉色渐渐和现代女性主义划上等号,到2018IKEA限量系列家居、2019DIOR Croisière度假系列等都作为重要配色出现。
在不少经典时装、文化和艺术作品中的元素,本案软装设计应用到的手法和风格都有迹可循。能充分符合业主审美期待的烟灰粉,配搭意向黑白灰的简约风格,作为本案主要点缀色,将被设计师充分糅合进空间设计中。
公共区,设计师充分利用原始精装房客餐区可保留的大面积的基础色调,天花、地面、墙面中的灰与白,再辅助以关键点缀色烟灰粉,在小体量的家具、窗帘、饰品中融入空间。
↑设计师的客厅效果方案
【客厅】原本地面大面积浅调,因此占地面积最大的沙发选用深灰色、落地电视柜用黑色来压制;粉贝壳珠光单椅、沙发靠枕、金色灯具、以及改造后的墙面金属装饰,都是小面积色彩应用来提亮空间,破掉黑白灰的沉闷。
↑落地客厅实景
【客厅】原有电视背景墙两侧都是猪肝色红木板,又做了一圈显年代感的米黄拱门式石材。改造后用芬琳木器漆1948将两侧木板刷灰,拆除石材,加上木板绷棉麻混纺布艺(很多人用皮质做软包,但考虑到家里有猫咪,因此用棉麻混纺材料可防抓防起球还美观)做浅灰色硬包~
【客厅】电视柜的高度要特别留意开关插座。设计师特意做高柜面,让插座完美隐藏进柜子中。
↑设计师的餐厅效果方案
【餐厅】应用色彩方案配搭爵士白台面和灰色软包餐桌、咖色软包靠背配搭金属色脚餐椅。
↑落地餐厅实景
↑设计师的主卧效果方案【主卧】除了公共空间,卧室部分也用烟灰粉调贯穿。
↑落地主卧实景
↑设计师的次卧效果方案
【次卧】包含挂画、床品、抱枕等搭色,都暗点了色彩方案主题。
↑落地次卧实景
设计师通过用户调研与实地沟通得出生活关键词为【时尚、娱乐、舒适、动物】,对应设计灵感汲取自时装材料中的金属线条造型、肌理感纹理、皮草毛绒、自然感棉麻混纺材料等元素,给小姐姐和她的宠物爱猫共同创造一个柔软不失质感的居家环境。
【主卧】热爱睡眠的小姐姐平时在主卧呆的时间会很长,因此主卧的风格氛围是否契合心意变得格外重要。在床头部分,上方设计为抽象灰调纹理硬包背景墙,塑造粗犷和柔美结合的独特气质。
【主卧】设计师对床头上下做不同处理,按人体工学1.1m高度以下做了靠背绒面软包,这样床头靠背和墙面一体化、能让出更大放床的空间长度。另外,墙面留了个细节设计,对称的间隔式金属线条造型,可以隐晦地呼应下方床和床头柜的位置区块。两侧选自BANLAN的床头柜,特意以造型色调共通但形体各异做趣味对比。
【娱乐室】可能是除了主卧小姐姐待的时间最长的地方,在这里设计师对现代简练造型也进行呈现:黑白灰应用于立面造型。房间红木地板统一更换为大自然灰调地板,然后对应选了比地板原配更搭的德国多利黑色不锈钢踢脚线。
【餐厅】来到公共部分,餐厅作为离入户最近的区域,第一眼的风格塑造非常重要。可以看到大理石餐桌台面和软包皮质餐椅,以及极简金属分子灯。材料质感的冷与暖、刚和柔完美均衡。
【餐厅飘窗】平时,除了餐桌区,飘窗处也可使用,足够4-6人在这里就着浪漫氛围享用美食。(猫主子完美融合进风格调性中~)
↑设计师的过道效果方案
【过道】餐厅旁的过道墙面和电视墙统一使用了深灰棉麻混纺布艺硬包,内嵌黑钛金属装饰条。但金属条过道墙宽度更大,而电视墙中间设计师特意找来极细的1公分黑钛金属线条。就跟身材不一要挑选不同粗细的条纹衫一样,因为电视墙面积相对更小,窄的墙面对应细的线条,才能和谐、强化优雅精致感。
↑落地过道实景
【玄关】利用定制鞋柜从长过道隔出一个2.5㎡的玄关,鞋柜底部留空利于放置拖鞋、常用鞋,配搭墙面umbra的衣帽架收纳架和增加质感的绒面鞋凳使用。
【玄关】门后墙面嵌入金镶边2m*0.6m可映照全身大银镜,出入的一切穿搭准备都可以在此处从容完成。
【多功能区】客厅旁的生活阳台,没有太高使用率、悬挂衣物也影响客厅景观,结合会客需求,直接把此处纳入客厅:原有推拉门改成垭口更不占地,地面抬高规避高低差与客厅地面齐平,无缝衔接避免绊脚。考虑到猫咪活动的安全性和景观欣赏,设计师将原栏杆拆除,改为落地窗+纱窗,此处作为一个单独的休闲吧。无论是独自待着还是与朋友小聚,都很舒服~可移动式置物台,使用也灵活。
【娱乐室】最靠外的房间规划规划为小姐姐的“双人网吧”兼储物室~方便两人同时使用的定制长桌,一侧内嵌搭在也是专门设计配搭的储物柜上,一体化省材料更省空间(在下文收纳优化会对储物柜做更多介绍)。
【生活阳台】娱乐室外侧的阳台,采光通风均宜,因此将功能定位为生活阳台,从提升使用功能品质的考虑,增加了常用的挂墙式单人洗衣机和偶尔清洁大件的洗衣机,外加电动升降挂衣杆。最后,还是考虑猫咪安全,栏杆换为落地窗。
【次卧】主卧旁小房间用来做次卧,方便朋友或家人来使用。由于空间较小,灯具、挂画等配件会更小巧紧凑;床头硬包墙整面棉麻耐磨布料,特意两边留空,让空间不过满。床也是定制的床箱,小房间利用率尽可能up!床头柜只留一个,既是避免过挤也是方便衣柜使用。
经过设计师的收纳分析,帮小姐姐一下子优化出3倍以上的储物容量(猫主子的物品收纳要求也有哦)!以公共区和房间为区分,重点的收纳优化部分如下:【公共收纳】多功能阳台的抽屉式榻榻米座椅,每个座椅抽屉都有超大储物量,连带客餐厅杂物都能放;
【公共收纳】多功能阳台的抽屉式榻榻米座椅,每个座椅抽屉都有超大储物量,连带客餐厅杂物都能放
【公共收纳】另一侧设计师增加了洗手台和收纳柜,泡茶接水各种方便,猫主子的猫粮、小玩具等用品就收纳于此啦。底部细心地留足了20公分高便于安放猫砂盆~
【房间收纳】最靠公共区的娱乐室里,安排了备用衣柜。收纳非当季的或平时不常穿常取用的衣物、服饰、包箱,满足了业主对衣物大储物量的要求。墙上置物架和储物柜收纳取用兼备。
【房间收纳】再往里的两个卧室部分,设计师为主卧和次卧都设置了床箱,是低调的容量高手。主卧本身有衣帽间所以没有增加衣柜。但床尾空间有余因此利用起来,定制设计了梳妆台,方便一口气把各种化妆品、饰品收全。
【房间收纳】次卧里增加了一个定制衣柜。相比主卧衣帽间衣物收纳,次卧衣柜以挂置使用率低的长大衣为主,此外还可收纳行李箱、被芯床品等。
软装设计以软装配搭和生活功能方式优化为主,有时候对于硬装中不合理的地方、或者一些细节使用结构也会做局部改动设计,改造虽小,却能大大提升日常每一次业主使用的便利。设计师就是帮助业主将房子每一处美观和功能都尽可能改善到最适宜状态。
【灯具点位】一开始在帮业主做插座点位方案时,设计师就会联动考虑各个空间、家具之间的关联设计。开发商原预留点位实际严重偏左,前后距离也不合适。经过现场线路条件分析,主案与硬装助理配合设计点位改造图纸,
实现了居中对称和最佳照明效果,让餐厅吊灯和客厅吊灯位置遥相呼应。
【插座点位】设计师会结合实际使用考虑每个空间对应要增加的开关插座设计,或是改造原始不够方便的插座位置。以次卧床头为例,原本床头插座离床过远,设计师注意到这个细节于是将位置往中心左移了10cm。
【细节使用】主卧化妆桌做了隐形设计,需要时抬起加了气压杆的桌面,开启后即可看到化妆镜和妆品置物格,不用时合上即可使用桌面。小璐设计时还参考了业主的身高,对镜面高度、椅子高度都做了定制化设计,使用起来更得心应手。
主卧衣帽间也进行升级改造。门后方留有全身镜,衣帽间内部追加了充电式智能感应灯带,增加照明。
厨房帮小姐姐增设了转角柜怪物拉篮和洗碗机,各个角落便利都无处不在~
【Tips1】改造全屋色调的一个关键点,是把每个空间的第一印象——门的色调,进行优化。全屋的所有门及其门框套,包括从入户门,到公共区厨房、阳台门,以及每个房间门,设计师统一使用芬琳木器漆刷涂为高级灰,色调也用同色号#1948。
以入户门为例,原本为猪肝红木门,改造时不用加水直接刷涂2-4遍芬琳木器漆即可,立刻就改变了气质,刷完漆后门的质感也更细腻(同步换上三星的智能密码锁)。
【Tips2】凡是要安装窗帘的部分,设计师对于拉合使用时轨道宽度预留、窗帘长度、窗户开合方式都会纳入设计中。
【Tips3】全屋隐形地吸,防磕碰。
设计前后总览
像修剪鲜花一样去修剪你的生活,像穿搭服饰一样去设计适合自己的家,是主案小璐这次软装设计始终围绕的理念。家装的软装设计和时尚穿搭一样,永远处在变化中,所以了解自己适合什么,比不做任何思考光追求流行更重要;可以从任何你感兴趣的事物为切入点,让专业的设计师帮你一起探寻什么才是真正适合你的风格,而设计师实现的价值,就是可以让风格和功能都仿佛量身定制般呈现在你的居住空间中。
客服
消息
收藏
下载
最近






























































