查看完整案例


收藏

下载
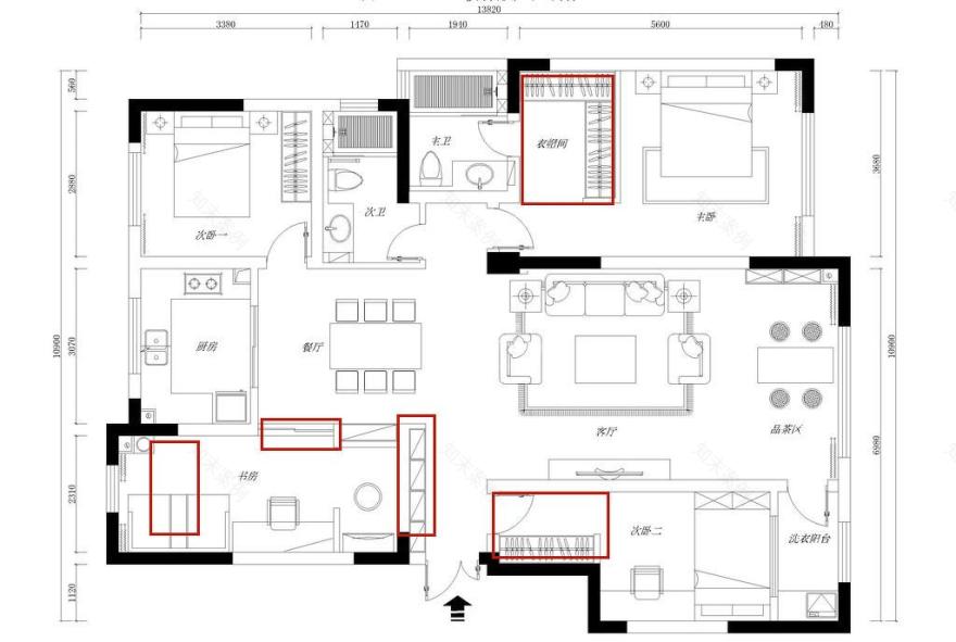
改变入户门左侧次卧室的开门位置,做了内嵌鞋柜,满足一家人使用;
书房的一部分空间需要做佛龛,所以将厨房外的阳台并入书房,这样空间不显局促;
改变入户门右侧次卧室的开门位置,这个房间规划为儿童房,保留阳台做生活阳台,方便晾晒;
合理规划了主卧室的布局,增加衣帽间,完善使用功能。
风格为现代极简风格,以灰色调为主,考虑到灰色系偏冷,所以在软装上选择了核桃木色的家具、咖色皮质沙发来调节空间冷暖度。
客厅的灯带从沙发背景到顶面,再到电视背景墙形成了线型光源,达到了特别的装饰效果,也自然的使空间有了连贯。
亲和的木色调搭配带来安稳温馨的感觉
最大化利用空间完善功能,深色橱柜更有品质感。
书房是现代结合日式的风格,与其他空间相比有些变化,带来不一样的感观感受。
为了增添房间的温馨浪漫感受,并没有按照常规保留简约风格的极简,而在床头背景做了线条,增加了立体感。
两个卫生间都采用了定制的浴室柜,整体性比较好,收纳上考虑了壁龛,也做了镜面柜,充足的储物功能可以让卫生间随时保持整洁清爽。
次卧室主要以舒适清新为主,儿童房考虑了充足的收纳空间,也为小朋友规划了学习空间。
客服
消息
收藏
下载
最近

























