查看完整案例


收藏

下载
客厅区域做了挑空处理,用石材、木饰面、钢板作为装饰,贯穿背景墙立面延伸空间。也让空气在室内封闭的空间里,实现对流。
内凹水吧台,供烧水与煮咖啡使用,收纳杯具、干货。水吧台上灯带结合玻璃镜面起到扩展空间与照明装饰的作用。
进门入户区域左侧,做了六个超大超高的储物柜,为了上下取物方便配置了梯子,梯子则是放到右侧水吧后的更衣室,主人回家换鞋换家居服也方便。
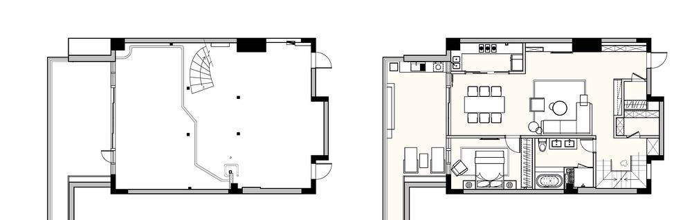
原户型将所有能组成房间的空间全部用墙体隔了起来,这样做的好处是房间够多,但对于单面采光的LOFT户型,能进入室内光线实在太少,空间也就变得压抑。
改造后的房型可以三个区域来看,需要采光的主次卧、老人房和餐厅放置于南侧(左侧),中间部分的客厅可向餐厅借光,同时挑空的设计让这个空间宽敞明亮。而更衣室、盥洗室、楼梯间、杂物间等则是放到了最右侧。
“将客厅南移加大采光,保留顺畅动线”
“软装搭配尽量简洁大方”
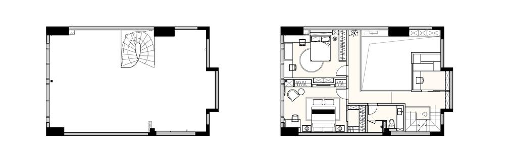
主卧床头背景墙软包运用立面分割方法,去拔高Loft二楼本就不高的空间。
二层空间所有扶手隔断都用上玻璃材质,营造一种四合院回廊的感觉,视觉也无障碍。
为了将功能房营造成一个透明盒子的模样,在玻璃窗上花了太多心思,找了许多厂家才找到这种无边框合页的款式。
儿童房床头做了模型展示柜,同时在房间里做了篆刻与书画的娱乐桌,和学习阅读的书桌。采光最好的飘窗区域,则做了一个可躺可卧的阅读角,午后时光,休息、阅读十分惬意。
楼梯采用悬空设计,扶手用玻璃材质,同时踏板内设置灯带(视频展示)增加悬浮感。
客服
消息
收藏
下载
最近


























