查看完整案例


收藏

下载
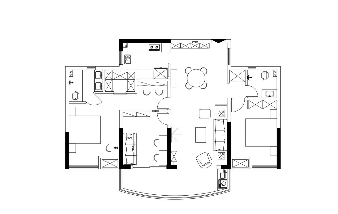
原始结构图
房子建筑面积134平米,净使用面积105平米,格局的改动非常大,非承重墙拆掉了一大半。主卧做成套间的形式,把衣帽间、卫生间、卧室、书房结合为一体,另外两间卧室分别为客房和小孩房【暂时是多功能房】。7米的通长大阳台,作了晾晒与休闲的分区。
量房照
客厅效果图
入户防盗门上装了门帘,女主人找了很久都没有喜欢的,遂选了一幅画订制成门帘。进门左边做了一整墙的鞋柜,把强弱电箱都藏了起来,靠进门位置有换鞋凳跟挂钩,方便换鞋和挂包包外套。空间的照明为无主灯设计,在光线的层次上做了很细腻的处理。不过是白天拍摄的,照片没有体现出来。这种形式并不对所有家庭都适用,因为要做满吊顶,会降低层高,很介意层高的就别考虑了~
量房照
客厅效果图
客厅的沙发旁边设置了竹制隔断,避免进门就得窥全局。剑麻地毯和空间里的木质色系相同,深灰色的水泥砖衬托木材的温润质感。
女业主的眼光极好,一般这种偏日式的风格,选画会考虑线条简单干净的居多。但这套案例搭配的都是油画。和这样宁静的场景,混搭出不一样的感觉。我们经常会想自己家要装成什么“风格”,其实风格这种东西是没有固定式的,风格的定义来自我们自身对生活理念的追求,风格即自我。
厨房的功能动线重新优化,顺时针方向的取洗切炒。洗切区域的台面作了抬高处理,减少疲劳度。左边的地柜空格里预留了插座,放微波炉用。水槽上方装了一盏小吊灯,作为照明补光,消除照明死角。洗碗机盖上加装柜门,效果更统一。台面挡水边是用美缝剂填缝的,打玻璃胶收口容易发霉。
量房照
厨房玻璃移门
餐厅位置已经改的面目全非了,左边两扇分别是小孩房和主卧的隐形门,隐形门分单面/双面门锁两种,我这里用的双面门锁。追求极致效果的可以考虑用单面门锁+液压合页,但以后液压失效,门就可能关不上,需要重新更换合页。右边厨房做的吊轨玻璃移门,几乎不占用空间。整面墙采用木皮涂装板,避免同一立面门太多影响视觉效果。我认为十年后,装修不会再用到木器漆,木皮涂装板相比现场木作喷漆,效果是绝对碾压的。预算相差不大,施工上除了对木工师傅手艺要求较高外,可以说是很完美了。当然木工只会吐槽设计师爱搞事情,业主旁友只需要多掏点工钱就好【手动微笑】
主卫这种格局很少见,为了放下双台盆,卫生间门设计成朝外开。洗手台下水改成墙排,下面做了置物层板,方便放泡脚的盆。吊顶用的防水石膏板,做了反光灯槽,灯光是最好的魔术师,对空间气氛至关重要。
主卧效果国
主卧进门便是双人书桌,谷仓门后面是衣帽间,正对着衣帽间的墙面挂了穿衣镜。主卫门作了45度的调整,避免正对卧室门。
主卧不是很大,床头选用的伸缩壁灯。墨绿色瞬间提升了空间的气质。窗帘都选用的米色,让白色的顶面/立面能够和木质家具与地面自然衔接。
这间是客房,平时不怎么用,简洁好打理就OK。
小孩房先作为书房的第一形态,以后再变回小孩房,壁灯是按以后摆床的尺寸定的位置,将来书柜的位置也会换成衣柜,书柜尺寸是提前考虑好的,以后会放在主卧。其实很多年轻人装修都会有这样的纠结,平时两个人住,暂时没想要孩子,等孩子单独睡一间卧室已经是几年以后了,那这间房就一直空着,也不知道干什么好。我更建议这种功能处理的做法,可以买一些造价不高的家具,几年后用不上了可以闲鱼处理掉,当然先计算好尺寸,以后用在家里其他空间更好,这样就不会有浪费空间的苦恼。
客服
消息
收藏
下载
最近































