查看完整案例


收藏

下载
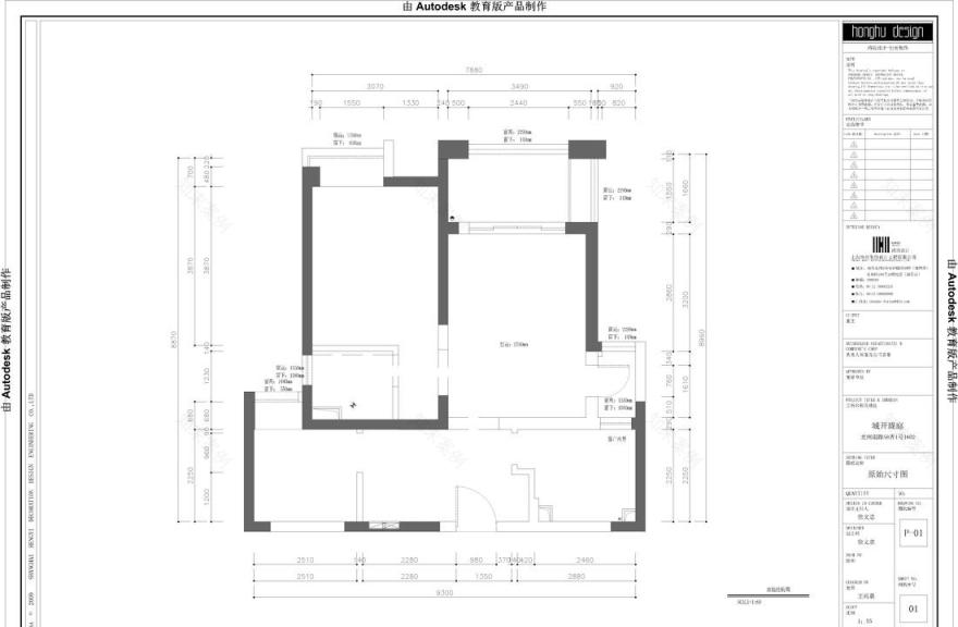
原始户型公共空间很局促,被开发商分割一块一块的。一进门,厨房、餐厅采光很差,而且厨房是一个暗厨房,无任何通风采光而言。原厨房操作台面很小,冰箱放完之后基本没有操作台面。
总结户型特点就是:3小3差
小:厨房小、餐厅小、小孩房间小;
差(浪费):光线差厨房是暗厨、过道浪费、设备间无任何用处;
设计后:
1、厨房打通、自然光线进来
2、餐厅拓出来,把小房间改大,原来是2.5m*2.3m,原来基础上增加了2.3m*2.3m
3、去掉了原有设备间
原始格局的3小3差,在设计师手中妙手回春
本案是两梯四户的中间套户型(入门在中间),这类户型玄关会比较弱,一般是左右两边的布局,如果按照传统的一进门玄关、门厅、鞋柜,整个格局会被压缩划分更琐碎。
综合考虑户型弊端及业主需求,客厅为了增加南北的通透性,把厨房和餐厅打通做开放式厨房 ,增加客厅和餐厅的扩大视野透光感,尽量用自然光点缀空间,这样原来餐厅空间把他划分增加了一个储物间,并且将小孩房空间扩大,尽量都是用自然光点缀空间 。
先生说:这是一个信仰缺失的年代;太多人无所谓相信,也无所谓坚持;然而,他和别人不一样!
先生说:他绝不会拥有越来越浮躁的爱情观,他对太太的感情一如既往,从一而终!
先生说:他的信仰就是“一生只爱一人”,所以他默默的与设计师为太太量身打造了一套皇家代尔夫特蓝的ins北欧小窝!
本案业主是一个幸福美满的两口之家,男业主从事服装行业(店长)管理工作;女业主性格十分开朗,很有主见很有想法,特别喜欢皇家代尔夫特蓝;基于工作的特性,对家的品质有一定的要求。夫妻俩都特别好客,经常约朋友一起喝咖啡;也完全不喜欢做饭,先生猜测太太应该很喜欢喜欢敞开式、通透感透亮的空间。
先生在与设计师初次碰面的时候,他说他自己是服装店的店长,日常对店内的陈列VM相当讲究,而且太太身材很好,也很喜欢买各种各样时髦好看的衣服。他的初心就是将这次秘密装修看作是一个女生挑选衣服的过程,太太特别喜欢ins北欧中的某蓝色,然而先生找了很多很多的参考照片给到设计师,最终设计师推荐了BU2-06色,并为它取个个极有情调的名字“皇家代尔夫特蓝”。
因为太太对于蓝色的特别忠爱以及风格喜好分析,先生果断的和设计师决定了设计风格最终定位北欧,先生最初是特别希望有大面积蓝色,然而在这一点上设计师给出了非常坚持的建议,在普通公寓中使用大面积蓝色会特别突兀,就像穿衣服一身蓝色,再配饰品,饰品就很弱,蓝色反而会变成了主宰;并且在大体量的客餐厅,主宰空间的因素太多,有餐桌、吧台、吊灯等,把蓝色作为点缀色去做,以配件饰品点缀蓝更为精致。而蓝色反而成为了最耐看的那一位主角。
设计师特意在原始厨房旁边开了一个落地窗,能够很好的投射自然光源,厨房更为舒适明亮。窗前摆放咖啡桌椅、手磨咖啡机等,搭配蓝色‘life cafe’字母装饰,在这里休息,享受悠闲的生活,轻松美妙。
开放式厨房与吧台、咖啡灵活又紧密连接在一起,最多可容纳8-10人的咖啡聚会趴。
从入门进入到整个开放式餐厅和客厅的整体动线都很舒服,惬意。
厨房橱柜门板采用双饰面水泥面板,150*150的蒂芬妮小白方砖,错位铺贴,拉开整个空间层次感,在简单的空间里,可以衬托出来。
一般做北欧风会想到小白砖,也就是面包砖,规格有150*75的长条,或者更长条一些的;一般铺贴方法会想到人字、工字或其他铺贴手法。在潜意识公共区块比如卫生间、小区外墙使用工字铺贴法比较常见,如何把这种引入到室内的设计中,而又让人联想不到是公共区块的,需要借用其他手法做一些设计。北欧代表性又特别强,所以这套会特别想到错位铺贴的方式做细节处理。
很多人会很纠结于北欧风格中的灯具,往往无从下手,可是本案设计师帮业主在淘宝上搜到的这一款餐桌灯,客户一眼就觉得很适合,果断下单,毫不犹豫。可见装修有时候也很像谈恋爱,谈对了人,一切就顺理成章。
鞋柜设计从地到顶的,充足的收纳空间,小孩房门原始是高门洞2.1米,去掉原始墙体,全部打通之后从任何一个360度的角度来看,是整体的一面墙,视觉上设计水平线齐平,三洞齐平没有高低差,视觉上会很美观。
卧室简单干净舒服,大面积白色系为主,呈现出一种nature style;搭配18年流行色系—高积粉的抱枕和装饰画,主灯选用温馨的羽毛灯、侧挂衣架,温馨又有情调,充分体现业主的视觉审美和时尚品味。
卧室里的好物单品是一个五斗柜了--‘颜值担当的10层收纳梳妆台’,装饰画下方这个柜子总是被误认为是普通的斗柜。其实展开后收纳性极强。
纯净北欧风中的灯具都不会很复杂,设计师加入了金属色的点缀,增加了好几份高级感。
卧室里还有一个飘窗,女业主喜欢看书,男业主很贴心,买了一块毯子,希望以后老婆可以一边享受阳光,一边坐在上面看书,写意生活。
考虑到实用性,卧室里还是加了一个横挂可移动式衣架,日常更换的衣服也都可以随手挂。
‘组装的台盆柜’
干湿分离的卫生间设计,使用大量现代的元素,将女主喜欢的皇家代尔夫特蓝巧妙运用在干区台盆柜上,与亮白色(谷仓门、小白砖)的结合,加上金色金属拉手和柜脚,整个空间更加饱满。
定制网红白色谷仓门
都说现在北欧风中谷仓门绝对是网红级别了,自然也逃不过先生的眼,选择上好不纠结。而且在居家空间中,谷仓门的这种设计,会让整体看上去更显活泼和年轻化,用一个装饰门都可以丰富整体空间。
有人说,生活就是住出来的,男业主如此费心的和设计师筹谋着未来生活的每一天,在这里,鸿鹄设计也祝福他们生活快乐无忧,幸福美满!
客服
消息
收藏
下载
最近






















